Pronájem bytu, 2+1, 52 m²
Svatováclavská, Uherské Hradiště
14 000 Kč (za měsíc)Pronájem bytu, 2+1, 52 m²
Svatováclavská, Uherské Hradiště
14 000 Kč
(za měsíc)
C
Úsporná
Pronájem bytu 2+1 50 m², Uherské Hradiště
Nabízím Vám k pronájmu světlý a vkusně zrekonstruovaný byt o dispozici 2+1 a celkové ploše 52 m², který se nachází ve zvýšeném 1. NP bytového domu v klidné části Uherského Hradiště. Lokalita nabízí příjemné bydlení v zeleni a zároveň výbornou dostupnost centra města.
Základní informace:
• klidná lokalita v širším centru města
• prosvětlený a vzdušný byt
• moderní kuchyňská linka
• balkon
• sklepní kóje k dispozici
Dispozice a vybavení:
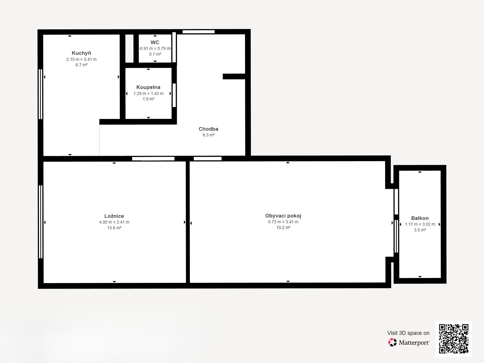
Byt má praktické dispoziční řešení. Po vstupu se po pravé straně nachází koupelna a samostatné WC, po levé straně vestavná skříň poskytující základní úložný prostor. Z chodby je vstup do všech místností bytu.
Kuchyně je vybavena moderní kuchyňskou linkou, plynovým sporákem a lednicí. Vybavení bytu je záměrně střídmé, což dává nájemci volnost zařídit si byt podle vlastního vkusu.
Obývací pokoj je prostorný, světlý a nevybavený. Je z něj vstup na balkon, ideální pro klidné posezení.
Ložnice nabízí dostatek prostoru pro úložné řešení a je orientována směrem do zeleně, s příjemným večerním sluncem.
O tepelný komfort v bytě se starají lokální topná tělesa.
Lokalita a dostupnost:
Dopravní obslužnost je zde výborná – zastávka MHD je v blízkosti domu a autobusy jezdí velmi často, prakticky každých pár minut do různých částí města.
Do centra Uherského Hradiště dojdete pěšky zhruba za 7 minut. V docházkové vzdálenosti se nachází nákupní středisko Morava, školy i nemocnice, což z této lokality dělá velmi pohodlné místo pro každodenní život.
Finanční podmínky:
• nájemné: 14 000 Kč / měsíc
• zálohy na energie: 4 631 Kč / měsíc
• vratná kauce: 19 000 Kč
• provize RK: 19 000 Kč, včetně DPH
• k nastěhování od 1. 3. 2026
Nemovitost si můžete projít už nyní pomocí 3D scanu.
Zaujala vás tato nabídka? Ozvěte se kdykoliv, rád vám poskytnu další informace nebo domluvím prohlídku.
Karel Stehlík
realitní makléř, Explicit Reality
Tento byt je nabízen k podnájmu prostřednictvím služby Explicitní Nájemník.
Díky službě Explicitní Nájemník získáváte jako nájemce vyšší standard podnájemního bydlení a celkově pohodlnější zážitek. Automaticky máte k dispozici tyto výhody:
Pojištění domácnosti a odpovědnosti za škody v běžném životě, včetně non-stop asistenční linky.
Zákaznickou podporu každý pracovní den od 8:00 do 17:00 – pro vaše dotazy, požadavky nebo pomoc s nájemní smlouvou.
Technickou asistenci – např. zajištění zámečníka, havarijní opravy či řešení jiných technických problémů v bytě.
Možnost výměny bytu – kdykoli můžete požádat o změnu na menší, větší nebo v jiné lokalitě z portfolia bytů služby Explicitní Nájemník nebo Explicit Reality.
Podnájem přes Explicitního Nájemníka je jednoduchý, bezpečný a bez zbytečných starostí. Vše potřebné máte zajištěno v rámci jednoho spolehlivého servisu.
Základní informace:
• klidná lokalita v širším centru města
• prosvětlený a vzdušný byt
• moderní kuchyňská linka
• balkon
• sklepní kóje k dispozici
Dispozice a vybavení:
Byt má praktické dispoziční řešení. Po vstupu se po pravé straně nachází koupelna a samostatné WC, po levé straně vestavná skříň poskytující základní úložný prostor. Z chodby je vstup do všech místností bytu.
Kuchyně je vybavena moderní kuchyňskou linkou, plynovým sporákem a lednicí. Vybavení bytu je záměrně střídmé, což dává nájemci volnost zařídit si byt podle vlastního vkusu.
Obývací pokoj je prostorný, světlý a nevybavený. Je z něj vstup na balkon, ideální pro klidné posezení.
Ložnice nabízí dostatek prostoru pro úložné řešení a je orientována směrem do zeleně, s příjemným večerním sluncem.
O tepelný komfort v bytě se starají lokální topná tělesa.
Lokalita a dostupnost:
Dopravní obslužnost je zde výborná – zastávka MHD je v blízkosti domu a autobusy jezdí velmi často, prakticky každých pár minut do různých částí města.
Do centra Uherského Hradiště dojdete pěšky zhruba za 7 minut. V docházkové vzdálenosti se nachází nákupní středisko Morava, školy i nemocnice, což z této lokality dělá velmi pohodlné místo pro každodenní život.
Finanční podmínky:
• nájemné: 14 000 Kč / měsíc
• zálohy na energie: 4 631 Kč / měsíc
• vratná kauce: 19 000 Kč
• provize RK: 19 000 Kč, včetně DPH
• k nastěhování od 1. 3. 2026
Nemovitost si můžete projít už nyní pomocí 3D scanu.
Zaujala vás tato nabídka? Ozvěte se kdykoliv, rád vám poskytnu další informace nebo domluvím prohlídku.
Karel Stehlík
realitní makléř, Explicit Reality
Tento byt je nabízen k podnájmu prostřednictvím služby Explicitní Nájemník.
Díky službě Explicitní Nájemník získáváte jako nájemce vyšší standard podnájemního bydlení a celkově pohodlnější zážitek. Automaticky máte k dispozici tyto výhody:
Pojištění domácnosti a odpovědnosti za škody v běžném životě, včetně non-stop asistenční linky.
Zákaznickou podporu každý pracovní den od 8:00 do 17:00 – pro vaše dotazy, požadavky nebo pomoc s nájemní smlouvou.
Technickou asistenci – např. zajištění zámečníka, havarijní opravy či řešení jiných technických problémů v bytě.
Možnost výměny bytu – kdykoli můžete požádat o změnu na menší, větší nebo v jiné lokalitě z portfolia bytů služby Explicitní Nájemník nebo Explicit Reality.
Podnájem přes Explicitního Nájemníka je jednoduchý, bezpečný a bez zbytečných starostí. Vše potřebné máte zajištěno v rámci jednoho spolehlivého servisu.
| Cena: | 14 000 Kč / (za měsíc) |
| Poznámka: | + služby a energie - měsíční poplatky 4 631 Kč, včetně právního servisu |
| Datum k nastěhování: | 01.02.2026 |
| Dispozice/podlahová plocha: | 2+1/52 m² |
| Číslo zakázky: | REALITYMIX-02596 |
Podrobné informace
- Dispozice bytu: 2+1
- Číslo podlaží v domě: 1
- Počet podlaží objektu: 5
- Celková podlahová plocha: 52 m²
- Druh objektu: panelová
- Stav objektu: po rekonstrukci
- Vlastnictví: osobní
- Výška stropu: 2 m
- Lodžie: 3 m²
- Sklep: 1 m²
- Vybaveno: ano
- Umístění objektu: klidná část obce
- Doprava: vlak, dálnice, silnice, MHD, autobus
- Elektřina: Elektro - 230 V
- Voda: Voda - dálkový vodovod
- Telekomunikace: Internet
- Plyn: Plynovod
- Topení: Ústřední - dálkové
- Odpad: Kanalizace
- Ostatní rozvody: Satelit, Kabelová televize
- Energetická náročnost budovy: C - Úsporná
- Ukazatel energetické náročnosti budovy: 87 kWh/m²
- Energetický ukazatel podle vyhlášky: č. 264/2020 Sb.
Mapa
* Umístění na mapě je na základě GPS informací dodaných realitní kanceláří.
* Pozice na mapě je pouze orientační.
Podobné nemovitosti
Pronájem bytu, 2+kk, 55 m²
Hradišťská, Staré Město, Uherské Hradiště
15 500 Kč za měsíc
Pronájem bytu, 1+kk, 35 m²
Hradišťská, Staré Město, Uherské Hradiště
12 000 Kč za měsíc
Pronájem bytu, 3+1, 77 m²
Na Bělince, Kunovice, Uherské Hradiště
17 900 Kč za měsíc
Pronájem bytu, 1+kk, 29 m²
Babice, Uherské Hradiště
9 500 Kč za měsíc