Pronájem - malý objekt/garáž
Karlova, Varnsdorf, Děčín
4 000 Kč (za měsíc)Pronájem - malý objekt/garáž
Karlova, Varnsdorf, Děčín
4 000 Kč
(za měsíc)
Pronájem garážového stání 120 m², Varnsdorf
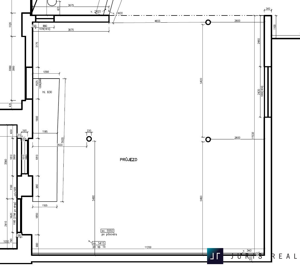
Nabízíme k dlouhodobému pronájmu kryté parkovací stání v ulici Karlova, Varnsdorf. Pod přístřešek se vejde až 6 aut. Zdi jsou cihlové, střecha plechová. Přesné rozměry a umístění sloupků viz. přiložený plánek s výměrou, výška cca 5 metrů. Parkovací stání je umístěno v oploceném areálu, kde se nacházejí výrobní a skladovací prostory.
| Cena: | 4 000 Kč / (za měsíc) |
| Číslo zakázky: | REALITYMIX-202056 |
Podrobné informace
- Druh objektu: cihlová
- Stav objektu: dobrý
Mapa
* Umístění na mapě je na základě GPS informací dodaných realitní kanceláří.
* Pozice na mapě je pouze orientační.