Prodej bytu, 3+kk, 84 m²
Mánesova, Boskovice, Blansko
8 054 000 KčProdej bytu, 3+kk, 84 m²
Mánesova, Boskovice, Blansko
Prodej byty 3+kk, UP 72,6m², lodžie 11 m2 - Boskovice , ul. Mánesova CP 83,6 m2
Představujeme vám byt 3+kk v nově vznikající Rezidenci Mánesova, projektu situovaném v jedné z nejžádanějších lokalit Boskovic.
Rezidence Mánesova vznikne na místě bývalé kotelny, která byla již zdemolována. Na tomto pozemku vyroste zcela nový bytový dům, navržený s důrazem na kvalitu, úspornost a moderní architekturu.
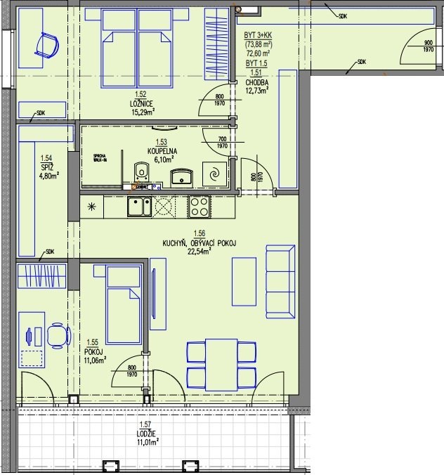
️Dispozice: 3+kk
Předsíň: 12,73 m2
Ložnice: 15,29 m2
Koupelna: 6,10 m2
Spíž: 4,80 m2
Pokoj: 11,60 m2
Pokoj s kuchyňským koutem: 22,54 m2
Lodžie: 11,01 m2
Hlavní přednosti:
Promyšlené dispoziční řešení s důrazem na světlost, funkčnost a dostatek úložného prostoru
Velká okna a orientace na světové strany zajišťují dostatek denního světla
Kvalitní standardy vybavení – podlahy, dveře, obklady, sanita – možnost výběru podle vašeho vkusu
Energeticky úsporný provoz – nízké náklady na bydlení díky moderním technologiím
Lokalita, kde se dobře žije.
Rezidence Mánesova se nachází jen pár minut chůze od centra.
Vše potřebné budete mít po ruce:
Mateřské a základní školy
Obchody, lékaře a další služby
Sportoviště, cyklostezky, dětská hřiště
Městský park a kulturní zařízení
Proč právě tento byt?
Skvělá poloha a dostupnost služeb
Vysoký standard novostavby s možností úprav interiéru
Možnost přikoupení sklepa a parkovacího stání
Ideální pro mladé páry, jednotlivce i seniory
Výborná investice do budoucna
Průběh výstavby a financování:
Zahájení stavby: leden/únor 2026
Předpokládaná kolaudace: prosinec 2027
Financování projektu zajišťuje ČSOB, která zároveň projekt zaštiťuje jako úvěrující instituce.
Splátky jsou ukládány na projektový účet ČSOB, což garantuje bezpečnost a transparentnost celé transakce.
Kontaktujte nás pro více informací a osobní konzultaci.
Rezidence Mánesova – váš nový začátek na skvělé adrese.
| Cena: | 8 054 000 Kč |
| Dispozice/podlahová plocha: | 3+kk/84 m² |
| Číslo zakázky: | REALITYMIX-1.5D |
Podrobné informace
- Dispozice bytu: 3+kk
- Číslo podlaží v domě: 1
- Počet podlaží objektu: 6
- Celková podlahová plocha: 84 m²
- Druh objektu: skeletová
- Stav objektu: projekt
- Vlastnictví: osobní
- Lodžie: 11 m²
- Energetická náročnost budovy: B - Velmi úsporná
- Ukazatel energetické náročnosti budovy: 53 kWh/m²
- Energetický ukazatel podle vyhlášky: č. 78/2013 Sb.
Právní rádce
-
Detail
V tomto článku shrneme nejdůležitější věci, které byste si měli promyslet, pokud se chystáte prodat svou nemovitost a chcete, abyste s kupujícím nemusel následně řešit vzniklé problémy.
Jako prodávající nesete rizika spojená nejen se samotným obchodem, ale i se stavem nemovitosti v době prodeje a pro minimalizaci rizik, je dobré se zamyslet nad uvedenými oblastmi.
-
Detail
Realitní makléř má své nezastupitelné místo v realitním obchodu. Realitním makléřem nemyslím nevzdělané jelito, které absolvovalo dvoudenní školení a ví, jak se nahraje inzerát na inzertní portál.
Realitním makléřem, který se Vám skutečně vyplatí, je zkušený profesionál, který je schopen Vám dobře poradit jak prodat za co nejvíc a s nejmenším rizikem a hlavně je Vás schopen obratně provést celým realitním obchodem.