Prodej - hotel, 69 m²
Boží Dar, Karlovy Vary
7 515 585 KčProdej - hotel, 69 m²
Boží Dar, Karlovy Vary
Apartmán (69 m²) s geniem loci, unikátní bydlení a rekreace v Krušných horách -Boží Dar
Výjimečná investice pro prvního majitele na místě, kde Vám žádná další výstavba nevezme výhled.
Hledáte výjimečné bydlení v srdci Krušných hor? Nabízíme nadstandardní apartmán v komorním domě (pouze 5 jednotek).
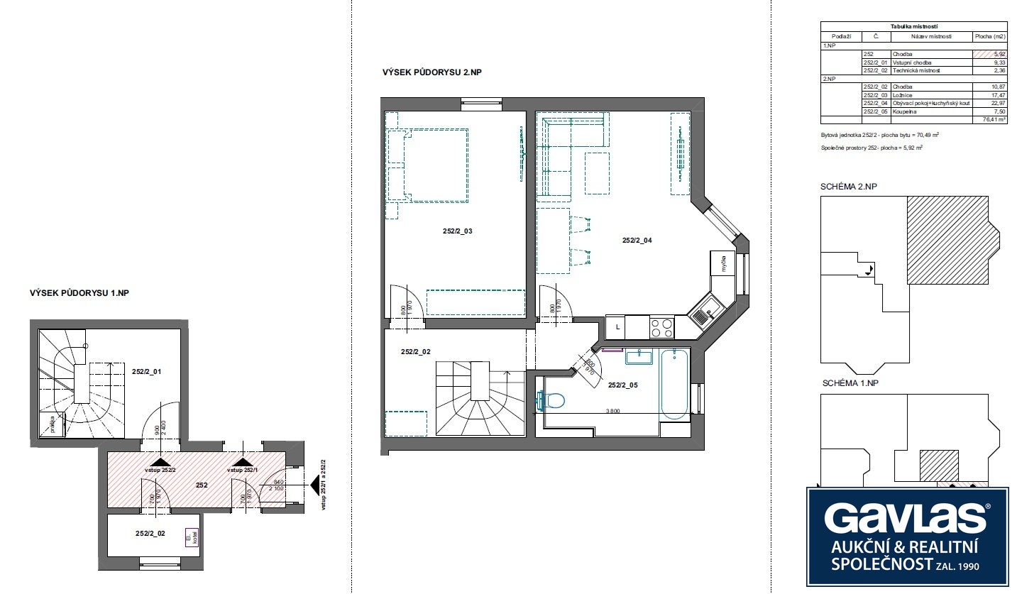
Dispozice: mezonetový 2+kk (69 m²), parkovací stání, technická místnost se skladem. Bezproblémový příjezd po asfaltové komunikaci, velká parkovací plocha. Projděte se bytem 3D prohlídkou na našich stránkách. Celkově v místě jen 5 apartmánů, vybudovány ve vysokém standardu, podlahové vytápění, kvalitní izolace, použity moderní materiály a technologie. Veškeré IS v místě. Boží Dar nabízí restaurace, kavárny, obchody a další občanskou vybavenost.
Ráj zimních sportů, procházek a cyklistiky přímo za dveřmi: pár metrů od domu naběhnete na běžkařskou Krušnohorskou magistrálu (120 km upravovaných tras), když není sníh najedete na stejném místě na cyklostezku, nebo se půjdete projít malebnou stezkou Božídarského rašeliniště. Celoročně můžete vzít své ratolesti na dobrodružnou Ježíškovu cestu. To vše máte pár kroků od domu s nádherným výhledem.
Lokalita nabízí bezkonkurenční vyžití pro lyžaře všech úrovní.
•Skiareál Novako: Přímo v Božím Daru. Naprostá jednička pro výuku dětí a začátečníky (moderní vlek, lyžařská škola, dětské hřiště, večerní lyžování a snowtubing).
•Skiareál Hranice: Menší, klidnější areál na okraji obce. Dvě široké modré sjezdovky ideální pro první obloučky bez davů.
•Za Prahou: Sjezdovka za hotelem Praha. Vstupní brána na Neklid, skvělá i samostatně pro mírně pokročilé.
•Neklid: Legendární areál nad obcí. Nabízí sportovnější sjezdovky, jeden z nejlepších snowparků v ČR a přímé propojení s Klínovcem.
•Skiareál Klínovec: Největší středisko Krušných hor s krytými lanovkami a sjezdovkami všech obtížností (včetně 3 km dlouhé červené do Jáchymova).
•Fichtelberg (Německo): Sousední areál v Oberwiesenthalu (15 min skibusem). Se skipasem na 1,5+ dne platí v rámci celého InterSkiregionu.
•Skiareál Plešivec: Velmi moderní areál s rychlými lanovkami a skvělým zázemím (15 minut autem).
Zaplavat si můžete na české straně v Aquacentru Agricola Jáchymov, na koupališti Ostrov. Na německé straně máte v blízkosti Aquacentrum Geyer (Freizeitbad Greifensteine), Aquacentrum Aqua Marien Marienberg, ELLDUS SPA (Oberwiesenthal)
Předpokládaný termín realizace prodeje: únor 2026. V domě nabízíme další 3 apartmány.
| Cena: | 7 515 585 Kč |
| Číslo zakázky: | REALITYMIX-2IND25-2 |
Podrobné informace
- Zastavěná plocha: 69 m²
- Užitná plocha: 69 m²
- Plocha parcely: 69 m²
- Počet podlaží objektu: 2
- Druh objektu: smíšená
- Stav objektu: po rekonstrukci
- Typ zařízení: Hotel
- Energetická náročnost budovy: G - Mimořádně nehospodárná
Právní rádce
-
Detail
V tomto článku shrneme nejdůležitější věci, které byste si měli promyslet, pokud se chystáte prodat svou nemovitost a chcete, abyste s kupujícím nemusel následně řešit vzniklé problémy.
Jako prodávající nesete rizika spojená nejen se samotným obchodem, ale i se stavem nemovitosti v době prodeje a pro minimalizaci rizik, je dobré se zamyslet nad uvedenými oblastmi.
-
Detail
Realitní makléř má své nezastupitelné místo v realitním obchodu. Realitním makléřem nemyslím nevzdělané jelito, které absolvovalo dvoudenní školení a ví, jak se nahraje inzerát na inzertní portál.
Realitním makléřem, který se Vám skutečně vyplatí, je zkušený profesionál, který je schopen Vám dobře poradit jak prodat za co nejvíc a s nejmenším rizikem a hlavně je Vás schopen obratně provést celým realitním obchodem.