Prodej bytu, 3+1, 66 m²
Havlenova, Brno-střed, Brno, Brno-město
RezervovánoProdej bytu, 3+1, 66 m²
Havlenova, Brno-střed, Brno, Brno-město
Byt 3+1 s lodžií a skvělým potenciálem - určený k rekonstrukci
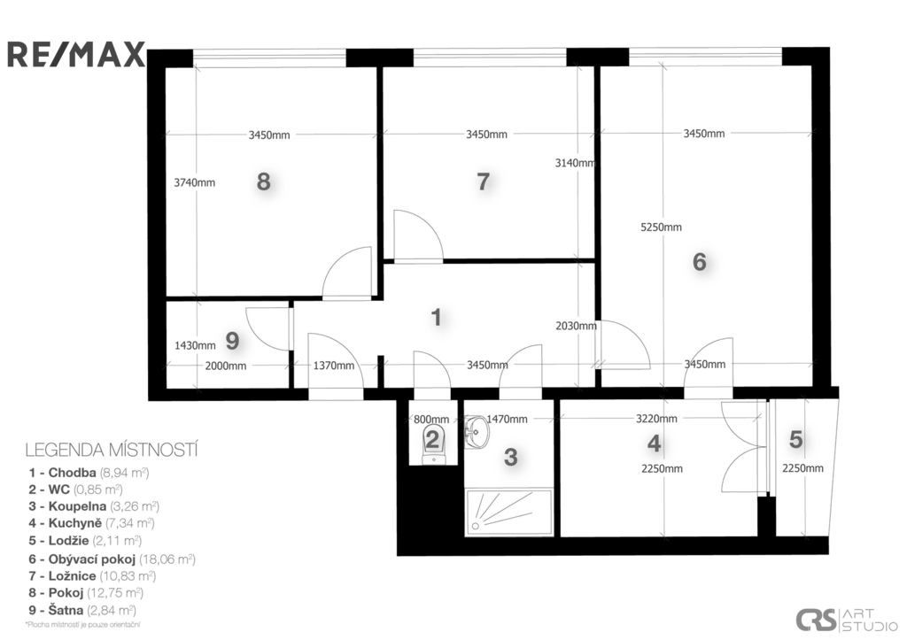
Dispozičně je byt řešen tak, že se zde nacházejí dva samostatné pokoje a jeden pokoj je průchozí do kuchyně. Tuto dispozici je však možné jednoduše upravit vybudováním sádrokartonové příčky a vytvořit tak tři neprůchozí pokoje. Kuchyň je samostatná, koupelna je aktuálně průchozí z chodby i z kuchyně, přičemž zazděním průchodu z kuchyně lze získat plně neprůchozí koupelnu. Toaleta je oddělená. Součástí bytu je také praktická šatna a lodžie, která poskytuje příjemný prostor k odpočinku.
Byt se nachází v 11. nadzemním patře z celkových 13 nadzemních pater v bytovém domě s výtahem. Přístup do bytu je bezbariérový. K bytu náleží sklepní kóje. Dům je zateplený, byt je osazen plastovými okny. V roce 2025 byla v domě vybudována nová vlastní tepelná kotelna, což přispívá k efektivnějšímu a úspornějšímu vytápění.
Velkou výhodou je výborná dopravní dostupnost – v blízkosti domu se nachází několik tramvajových linek, které zajišťují rychlé spojení do centra města, kam se dostanete přibližně za 10 minut. Pěšky je centrum města dostupné zhruba do 30 minut. Lokalita zároveň nabízí rychlé napojení na dálnici D1 a D2.
V bezprostředním okolí je veškerá občanská vybavenost – obchody, školy, školky, zdravotnická zařízení i služby.
Byt je vhodný jak pro vlastní bydlení, tak jako investiční příležitost s potenciálem zhodnocení po rekonstrukci.
Prodávající si vyhrazuje právo vybrat kupujícího na základě jím zvolených kritérií.
| Cena: | Rezervováno |
| Dispozice/podlahová plocha: | 3+1/66 m² |
| Číslo zakázky: | REALITYMIX-429821 |
Podrobné informace
- Dispozice bytu: 3+1
- Číslo podlaží v domě: 11
- Počet podlaží objektu: 13
- Užitná plocha: 66 m²
- Celková podlahová plocha: 66 m²
- Druh objektu: panelová
- Stav objektu: velmi dobrý
- Vlastnictví: osobní
- Lodžie: 2 m²
- Sklep: 1 m²
- Umístění objektu: klidná část obce
- Doprava: dálnice, silnice, MHD, autobus
- Voda: Voda - dálkový vodovod
- Plyn: Plynovod
- Odpad: Kanalizace
- Ostatní rozvody: Kabelová televize
- Energetická náročnost budovy: C - Úsporná
- Ukazatel energetické náročnosti budovy: 79 kWh/m²
- Energetický ukazatel podle vyhlášky: č. 78/2013 Sb.
Právní rádce
-
Detail
V tomto článku shrneme nejdůležitější věci, které byste si měli promyslet, pokud se chystáte prodat svou nemovitost a chcete, abyste s kupujícím nemusel následně řešit vzniklé problémy.
Jako prodávající nesete rizika spojená nejen se samotným obchodem, ale i se stavem nemovitosti v době prodeje a pro minimalizaci rizik, je dobré se zamyslet nad uvedenými oblastmi.
-
Detail
Realitní makléř má své nezastupitelné místo v realitním obchodu. Realitním makléřem nemyslím nevzdělané jelito, které absolvovalo dvoudenní školení a ví, jak se nahraje inzerát na inzertní portál.
Realitním makléřem, který se Vám skutečně vyplatí, je zkušený profesionál, který je schopen Vám dobře poradit jak prodat za co nejvíc a s nejmenším rizikem a hlavně je Vás schopen obratně provést celým realitním obchodem.
Prodáváte nemovitost a potřebujete zjistit její reálnou hodnotu?
Zjistit reálnou cenuVývoj průměrné ceny za m2 v lokalitě Brno-město
Prodáváte nemovitost a potřebujete zjistit její reálnou hodnotu?
Zjistit reálnou cenuMapa
Podobné nemovitosti
Prodej bytu, 3+1, 75 m²
Mikulčická, Brno-Slatina, Brno, Brno-město
7 290 000 Kč
Prodej bytu, 3+1, 59 m²
Cejl, Brno-sever, Brno, Brno-město
6 199 000 Kč
Prodej bytu, 3+1, 48 m²
Cejl, Brno-sever, Brno, Brno-město
5 799 000 Kč
Prodej bytu, 3+1, 70 m²
Jakuba Obrovského, Brno-Bystrc, Brno, Brno-město
7 100 000 Kč