Prodej bytu, 5+kk, 95 m²
Páteřní, okr.Brno-město
11 979 000 KčProdej bytu, 5+kk, 95 m²
Páteřní, okr.Brno-město
Byt 5+kk, 94 m² – Residence Páteřní | přímý prodej od developera, bez provize
Jednotka se prodává ve stavu dokončeného standardu – hotové podlahy, stěny a kompletně obložená koupelna. Kuchyň a další vybavení si majitel dokončí podle svých představ.
Hlavní přednosti:
přímý prodej od developera – žádná provize
možnost dokončit interiér podle vlastních představ
dispozice vhodná pro rodinu i investici
možnost dokoupení garážového stání
Díky čtyřem samostatným pokojům je jednotka vhodná i pro pronájem studentům nebo spolubydlení, což z něj dělá atraktivní investici.
Jednotka stojí v klidné a přitom dobře dostupné lokalitě Bystrc – Páteřní, kde se snoubí příroda s pohodlím města. V okolí jsou služby, obchody, školy i doprava.
Tramvaje a autobusy propojují Bystrc rychle s centrem i dalšími částmi Brna.
Bystrc je atraktivní nejen pro vlastní užívání, ale i jako investice – díky dostupnosti do centra a blízkosti přehrady a zeleně, kde si obyvatelé užijí volný čas a odpočinek.
Předpokladaný termín dokončení stavby 1Q 2027
Pro více informací mě neváhejte kontaktovat.
| Cena: | 11 979 000 Kč |
| Datum k nastěhování: | 01.01.2027 |
| Dispozice/podlahová plocha: | 5+kk/95 m² |
| Číslo zakázky: | REALITYMIX-1769 |
Podrobné informace
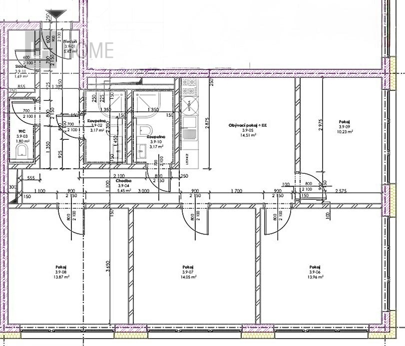
- Dispozice bytu: 5+kk
- Číslo podlaží v domě: 3
- Počet podlaží objektu: 4
- Užitná plocha: 87 m²
- Celková podlahová plocha: 95 m²
- Druh objektu: smíšená
- Stav objektu: ve výstavbě (hrubá stavba)
- Vlastnictví: osobní
- Doprava: vlak, dálnice, silnice, MHD, autobus
- Elektřina: Elektro - 230 V
- Voda: Voda - dálkový vodovod
- Plyn: Plynovod
- Odpad: Kanalizace
- Energetická náročnost budovy: B - Velmi úsporná
- Energetický ukazatel podle vyhlášky: č. 264/2020 Sb.
Právní rádce
-
Detail
V tomto článku shrneme nejdůležitější věci, které byste si měli promyslet, pokud se chystáte prodat svou nemovitost a chcete, abyste s kupujícím nemusel následně řešit vzniklé problémy.
Jako prodávající nesete rizika spojená nejen se samotným obchodem, ale i se stavem nemovitosti v době prodeje a pro minimalizaci rizik, je dobré se zamyslet nad uvedenými oblastmi.
-
Detail
Realitní makléř má své nezastupitelné místo v realitním obchodu. Realitním makléřem nemyslím nevzdělané jelito, které absolvovalo dvoudenní školení a ví, jak se nahraje inzerát na inzertní portál.
Realitním makléřem, který se Vám skutečně vyplatí, je zkušený profesionál, který je schopen Vám dobře poradit jak prodat za co nejvíc a s nejmenším rizikem a hlavně je Vás schopen obratně provést celým realitním obchodem.
Prodáváte nemovitost a potřebujete zjistit její reálnou hodnotu?
Zjistit reálnou cenuVývoj průměrné ceny za m2 v lokalitě Brno-město
Prodáváte nemovitost a potřebujete zjistit její reálnou hodnotu?
Zjistit reálnou cenuMapa
Podobné nemovitosti
Prodej bytu, 2+kk, 58 m²
Ponětovická, Brno-Slatina, Brno, Brno-město
7 900 000 Kč
Prodej bytu, 4+kk, 163 m²
Jehnice, Brno, Brno-město
16 858 500 Kč
Prodej bytu, 4+kk, 126 m²
Elišky Krásnohorské, Brno-Černovice, Brno, Brno-město
11 400 000 Kč
Prodej bytu, 2+kk, 68 m²
Spolková, Brno-sever, Brno, Brno-město
7 400 000 Kč