Prodej bytu, 2+kk, 48 m²
Křepelčí, Brno-Žebětín, Brno, Brno-město
6 990 000 KčProdej bytu, 2+kk, 48 m²
Křepelčí, Brno-Žebětín, Brno, Brno-město
Prodej bytu 2+kk, Křepelčí, Brno- Žebětín, 48 m2
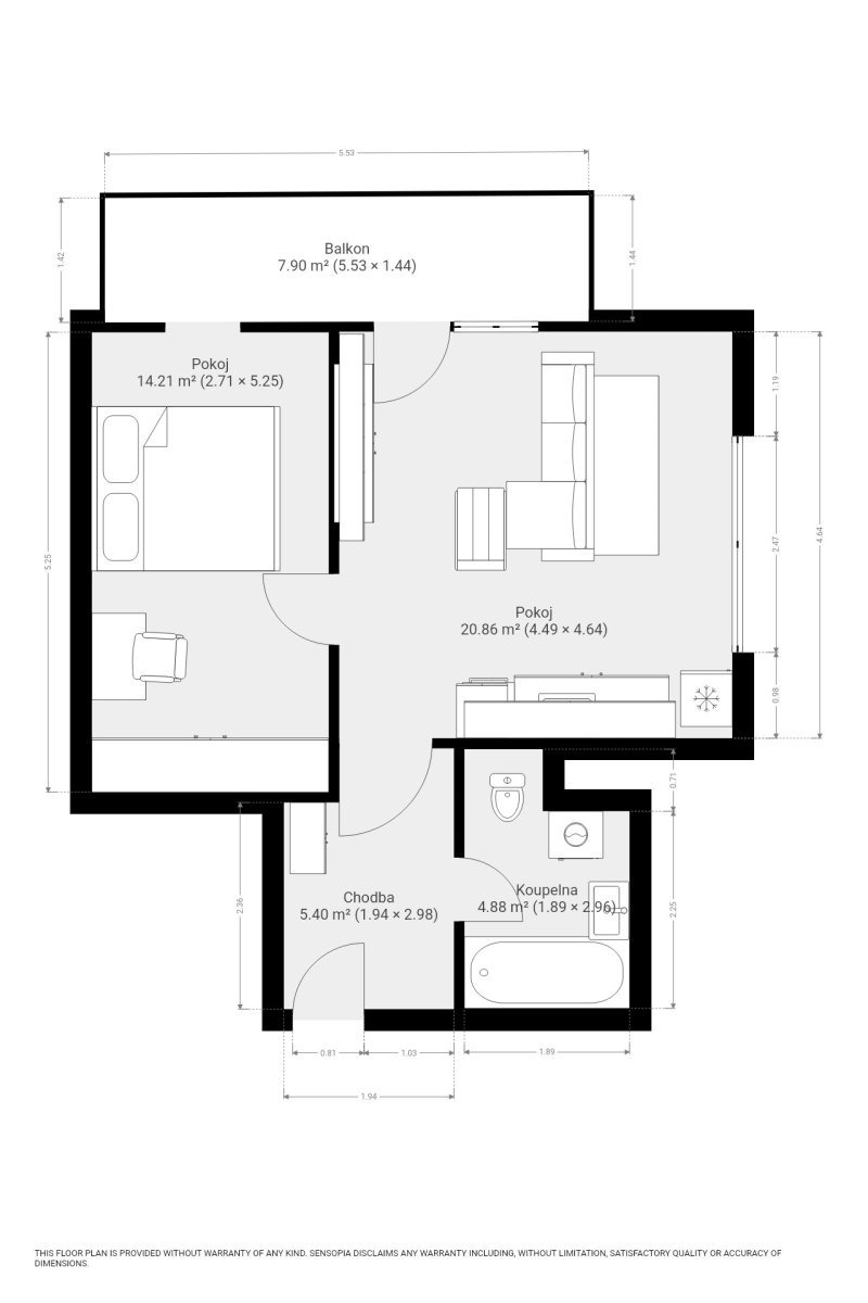
V obytných místnostech je položena plovoucí podlaha.
Chodba a koupelna s toaletou je opatřena keramickou dlažbou.
Kuchyňská část je vybavena moderní kuchyňskou linkou s indukční varnou deskou, troubou, digestoří, lednicí s mrazákem a mikrovlnnou troubou. Součástí prostoru je také jídelní stůl se židlemi.
Obývací část je zařízena rozkládací sedačkou a obývací stěnou.Ložnice disponuje postelí s nočními stolky, pracovním stolem s křeslem a šatní skříní.
V koupelně se nachází vana, umyvadlo s úložnou skříňkou, zrcadlo, toaleta a pračka.
Lokalita nabízí klidné bydlení v blízkosti přírody, zároveň však s výbornou dostupností do centra města. V okolí domu se nachází veškerá občanská vybavenost – restaurace, supermarket Albert, mateřská škola či oblíbený žebětínský rybník.
Dopravní dostupnost zajišťují autobusové zastávky Říčanská a Kamechy vzdálené cca 3 minuty chůze od bytu.
Energetická náročnost budovy je B.
| Cena: | 6 990 000 Kč |
| Dispozice/podlahová plocha: | 2+kk/48 m² |
| Číslo zakázky: | REALITYMIX-7570 |
Podrobné informace
- Bezbariérový byt: ano
- Dispozice bytu: 2+kk
- Číslo podlaží v domě: 3
- Počet podlaží objektu: 7
- Celková podlahová plocha: 48 m²
- Druh objektu: cihlová
- Stav objektu: velmi dobrý
- Vlastnictví: osobní
- Vybaveno: ano
- Umístění objektu: klidná část obce
- Doprava: dálnice, MHD, autobus
- Občanská vybavenost: Škola, Školka, Zdravotnická zařízení, Pošta, Supermarket, Kompletní síť obchodů a služeb
- Voda: Voda - dálkový vodovod
- Topení: Ústřední - dálkové
- Energetická náročnost budovy: B - Velmi úsporná
- Ukazatel energetické náročnosti budovy: 61 kWh/m²
- Energetický ukazatel podle vyhlášky: č. 78/2013 Sb.
Právní rádce
-
Detail
V tomto článku shrneme nejdůležitější věci, které byste si měli promyslet, pokud se chystáte prodat svou nemovitost a chcete, abyste s kupujícím nemusel následně řešit vzniklé problémy.
Jako prodávající nesete rizika spojená nejen se samotným obchodem, ale i se stavem nemovitosti v době prodeje a pro minimalizaci rizik, je dobré se zamyslet nad uvedenými oblastmi.
-
Detail
Realitní makléř má své nezastupitelné místo v realitním obchodu. Realitním makléřem nemyslím nevzdělané jelito, které absolvovalo dvoudenní školení a ví, jak se nahraje inzerát na inzertní portál.
Realitním makléřem, který se Vám skutečně vyplatí, je zkušený profesionál, který je schopen Vám dobře poradit jak prodat za co nejvíc a s nejmenším rizikem a hlavně je Vás schopen obratně provést celým realitním obchodem.
Prodáváte nemovitost a potřebujete zjistit její reálnou hodnotu?
Zjistit reálnou cenuVývoj průměrné ceny za m2 v lokalitě Brno-město
Prodáváte nemovitost a potřebujete zjistit její reálnou hodnotu?
Zjistit reálnou cenuMapa
Podobné nemovitosti
Prodej bytu, 2+kk, 68 m²
Spolková, Brno-sever, Brno, Brno-město
7 400 000 Kč
Prodej bytu, 2+kk, 64 m²
Spolková, Brno-sever, Brno, Brno-město
6 990 000 Kč
Prodej bytu, 2+kk, 66 m²
Křižíkova, Brno-Královo Pole, Brno, Brno-město
7 650 000 Kč
Prodej bytu, 2+kk, 45 m²
Husovice, Brno, Brno-město
6 458 000 Kč