Prodej bytu, 3+1, 55 m²
Krásného, Brno-Židenice, Brno, Brno-město
7 950 000 KčProdej bytu, 3+1, 55 m²
Krásného, Brno-Židenice, Brno, Brno-město
Prodej bytu 3+1 s balkonem v bytovém domě na ulici Krásného v Brně - Juliánově.
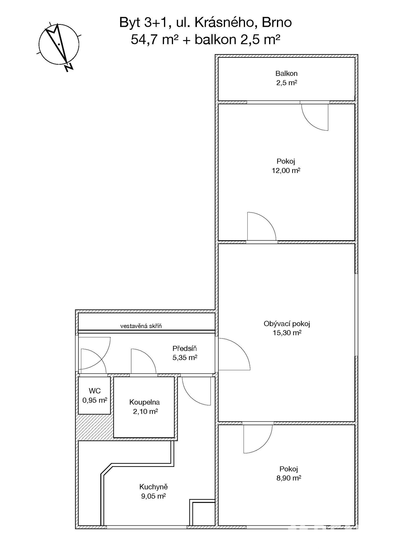
Z předsíně bytu je možné vstoupit do kuchyně (8,7 m2), obývacího pokoje (15,3 m2), do koupelny a na toaletu. Z obývacího pokoje jsou přístupné dvě ložnice (12 m2 a 8,9 m2). K větší z nich přiléhá balkon s hezkým výhledem, orientovaný jižním směrem. Byt je díky své poloze velmi dobře osvětlen.
Byt je po kompletní rekonstrukci, byla provedena nová elektroinstalace, vyměněna okna za plastová, instalovány bezpečnostní vstupní dveře a vnitřní dveře. Byt je vybaven kuchyňskou linkou s plynovou varnou deskou, elektrickou troubou, myčkou, digestoří a mikrovlnnou troubou, vestavěnou šatní skříní v předsíni a horizontálními žaluziemi v oknech. Koupelna je vybavena vanou, umyvadlem se skříňkou a zrcadlem. Toaleta je umístěna samostatně.
Měsíční zálohové platby za služby spojené s užíváním bytu (voda, teplo, fond oprav, společné výdaje domu) činí pro dvě osoby 6.118,- Kč za měsíc. Dále je hrazena spotřeba elektřiny a plynu cca 1.000,-Kč za měsíc. V bytě jsou instalovány veškeré měřiče energií.
Dům, ve kterém se byt nachází, prošel celkovou opravou a revitalizací. Společenství vlastníků jednotek nesplácí žádný úvěr.
Dům je situován v klidné části Juliánova, v blízkosti domu je zastávka MHD. V nejbližším okolí je veškerá občanská vybavenost (nákupní středisko, koupaliště, restaurace, dětské hřiště, sportoviště, základní i mateřská škola). Nedaleko je lesopark Bílá hora, který lze využívat k procházkách a relaxaci.
Nemovitost je vhodná k bydlení i jako investice za účelem pronájmu. Byt je možné použít jako zástavu v případě financování koupě prostřednictvím úvěru.
Pokud Vás tento byt zaujal, domluvte si se mnou osobní prohlídku. Zajištění hypotečního servisu na míru a další služby dle individuálních potřeb klienta jsou samozřejmostí.
| Cena: | 7 950 000 Kč |
| Poznámka: | včetně provize, cena k jednání |
| Datum k nastěhování: | 23.04.2026 |
| Dispozice/podlahová plocha: | 3+1/55 m² |
| Číslo zakázky: | REALITYMIX-01532 |
Podrobné informace
- Dispozice bytu: 3+1
- Číslo podlaží v domě: 4
- Počet podlaží objektu: 7
- Celková podlahová plocha: 55 m²
- Druh objektu: panelová
- Stav objektu: velmi dobrý
- Vlastnictví: osobní
- Balkon: 3 m²
- Sklep: 1 m²
- Umístění objektu: klidná část obce
- Energetická náročnost budovy: D - Méně úsporná
- Ukazatel energetické náročnosti budovy: 117 kWh/m²
- Energetický ukazatel podle vyhlášky: č. 264/2020 Sb.
Právní rádce
-
Detail
V tomto článku shrneme nejdůležitější věci, které byste si měli promyslet, pokud se chystáte prodat svou nemovitost a chcete, abyste s kupujícím nemusel následně řešit vzniklé problémy.
Jako prodávající nesete rizika spojená nejen se samotným obchodem, ale i se stavem nemovitosti v době prodeje a pro minimalizaci rizik, je dobré se zamyslet nad uvedenými oblastmi.
-
Detail
Realitní makléř má své nezastupitelné místo v realitním obchodu. Realitním makléřem nemyslím nevzdělané jelito, které absolvovalo dvoudenní školení a ví, jak se nahraje inzerát na inzertní portál.
Realitním makléřem, který se Vám skutečně vyplatí, je zkušený profesionál, který je schopen Vám dobře poradit jak prodat za co nejvíc a s nejmenším rizikem a hlavně je Vás schopen obratně provést celým realitním obchodem.
Prodáváte nemovitost a potřebujete zjistit její reálnou hodnotu?
Zjistit reálnou cenuVývoj průměrné ceny za m2 v lokalitě Brno-město
Prodáváte nemovitost a potřebujete zjistit její reálnou hodnotu?
Zjistit reálnou cenuMapa
Podobné nemovitosti
Prodej bytu, 3+1, 75 m²
Mikulčická, Brno-Slatina, Brno, Brno-město
7 290 000 Kč
Prodej bytu, 3+1, 93 m²
Provazníkova, Brno-sever, Brno, Brno-město
7 800 000 Kč
Prodej bytu, 3+1, 73 m²
Bezručova, Brno-střed, Brno, Brno-město
8 500 000 Kč
Prodej bytu, 3+1, 69 m²
Vlkova, Brno-Líšeň, Brno, Brno-město
8 200 000 Kč