Prodej bytu, 3+1, 60 m²
Bzenecká, Brno-Vinohrady, Brno, Brno-město
7 741 650 KčProdej bytu, 3+1, 60 m²
Bzenecká, Brno-Vinohrady, Brno, Brno-město
Prodej bytu 3+1 v osobním vlastnictví s balkonem, 60 m2 na ulici Bzenecká v Brně - Židenicích
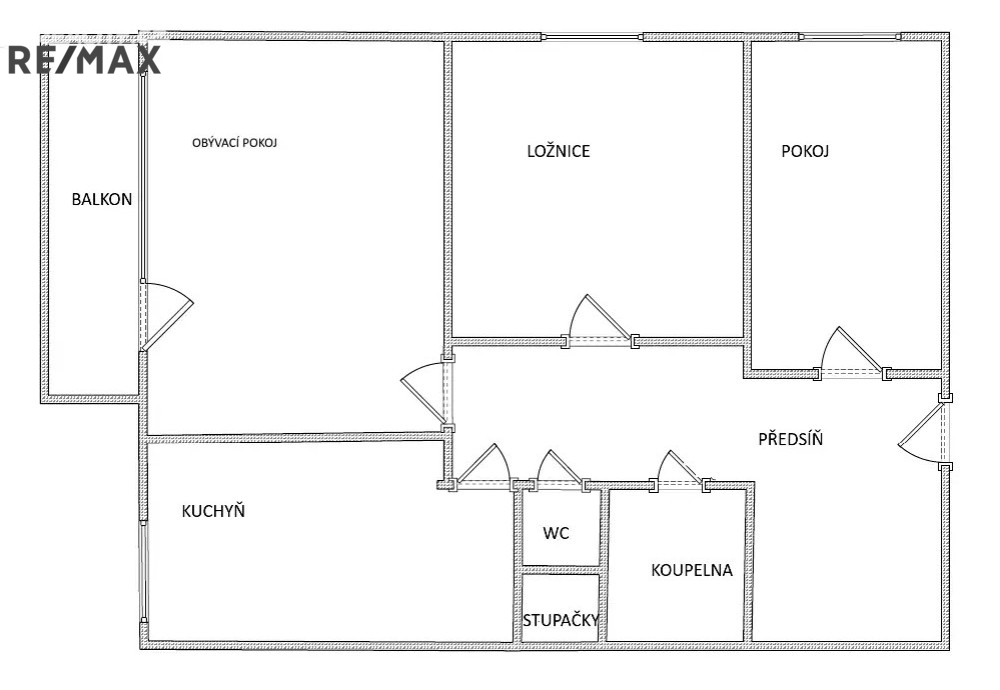
Byt se nachází v 7NP/12NP a jeho dispozice jsou: kuchyně (7,5 m2), obývací pokoj (16 m2) se vstupem na zasklený balkon (4,3 m2) s výhledem na Brno - jihozápad, ložnice (12 m2), pokoj (8,5 m2), koupelna (2,8 m2), samostatné WC (1 m2), předsíň (4 m2), šatna umístěná v předsíni (2,6 m2), chodba (5,7m). Předsíň a chodba je prostorná a vstupuje se z nich do všech místností bytu - žádné pokoje nejsou průchozí.
V bytě je klimatizace, zděné jádro, nová koupelna, plastová okna se žaluziemi, plovoucí podlahy, vinyl, PVC a dlažba. V koupelně a v části kuchyně je nová elektřina. V bytě jsou bezpečnostní vchodové dveře.
K bytu náleží sklepní kóje a na chodbě před bytem je společný prostor (na kola). Dům je po revitalizaci, jsou tu 2 výtahy (úvěr na revitalizaci, balkony, střechu bude splacen v roce 2027). Žádné další velké investice se neočekávají. Parkování možné u domu. V budově jsou umístěny kamery se záznamem.
Náklady na bydlení jsou velmi nízké: elektřina 800,- Kč a měsíční předpis plateb 4.782,- Kč (studená voda, teplá voda, teplo, po uhrazení úvěru bude snížen i FO).
V Brně se nachází veškerá občanská vybavenost, nájezd na dálnici D1, nemocnice, obchody, lékaři, hřiště, ZŠ, MŠ, VŠ, vlakové nádraží, autobusové nádraží, obchodní domy, parky atd.
Financování hypotečním úvěrem pro Vás můžeme zajistit. Pro více informací a termín prohlídky kontaktujte makléře nabídky.
| Cena: | 7 741 650 Kč |
| Poznámka: | včetně provize a právních služeb |
| Datum k nastěhování: | 01.01.2026 |
| Dispozice/podlahová plocha: | 3+1/60 m² |
| Číslo zakázky: | REALITYMIX-428847 |
Podrobné informace
- Dispozice bytu: 3+1
- Číslo podlaží v domě: 7
- Počet podlaží objektu: 12
- Užitná plocha: 60 m²
- Celková podlahová plocha: 60 m²
- Druh objektu: panelová
- Stav objektu: velmi dobrý
- Vlastnictví: osobní
- Lodžie: 4 m²
- Sklep: 1 m²
- Doprava: vlak, dálnice, silnice, MHD, autobus
- Elektřina: Elektro - 230 V
- Telekomunikace: Internet
- Odpad: Kanalizace
- Energetická náročnost budovy: C - Úsporná
- Energetický ukazatel podle vyhlášky: č. 264/2020 Sb.
Právní rádce
-
Detail
V tomto článku shrneme nejdůležitější věci, které byste si měli promyslet, pokud se chystáte prodat svou nemovitost a chcete, abyste s kupujícím nemusel následně řešit vzniklé problémy.
Jako prodávající nesete rizika spojená nejen se samotným obchodem, ale i se stavem nemovitosti v době prodeje a pro minimalizaci rizik, je dobré se zamyslet nad uvedenými oblastmi.
-
Detail
Realitní makléř má své nezastupitelné místo v realitním obchodu. Realitním makléřem nemyslím nevzdělané jelito, které absolvovalo dvoudenní školení a ví, jak se nahraje inzerát na inzertní portál.
Realitním makléřem, který se Vám skutečně vyplatí, je zkušený profesionál, který je schopen Vám dobře poradit jak prodat za co nejvíc a s nejmenším rizikem a hlavně je Vás schopen obratně provést celým realitním obchodem.
Prodáváte nemovitost a potřebujete zjistit její reálnou hodnotu?
Zjistit reálnou cenuVývoj průměrné ceny za m2 v lokalitě Brno-město
Prodáváte nemovitost a potřebujete zjistit její reálnou hodnotu?
Zjistit reálnou cenuMapa
Podobné nemovitosti
Prodej bytu, 3+1, 72 m²
Kremličkova, Brno-Řečkovice a Mokrá Hora, Brno, Brno-město
6 900 000 Kč
Prodej bytu, 3+1, 79 m²
náměstí Svornosti, Brno-Žabovřesky, Brno, Brno-město
7 990 000 Kč
Prodej bytu, 3+1, 93 m²
Provazníkova, Brno-sever, Brno, Brno-město
7 800 000 Kč
Prodej bytu, 3+1, 71 m²
Turgeněvova, Brno-Černovice, Brno, Brno-město
7 100 000 Kč