Prodej bytu, 3+kk, 66 m²
Lišejníková, Brno-Žebětín, Brno, Brno-město
9 250 000 KčProdej bytu, 3+kk, 66 m²
Lišejníková, Brno-Žebětín, Brno, Brno-město
Prodej bytu 3+kk s terasou a parkovacím stáním
Lokalita Kamechy představuje jednu z nejmodernějších a nejžádanějších rezidenčních čtvrtí v Brně, která v sobě spojuje komfort městského bydlení s bezprostředním dotekem přírody.
Jedním z největších benefitů lokality je její těsná blízkost Brněnské přehrady, která je dostupná během několika minut chůze nebo krátké jízdy na kole. Obyvatelé tak mají na dosah ruky široké možnosti sportovního vyžití, od letního koupání a vodních sportů až po procházky v rozlehlých Podkomorských lesích, které přehradu obklopují.
Kamechy jsou právem považovány jako ideální lokalita pro rodiny s dětmi, k čemuž přispívá zejména občanská vybavenost přímo v místě. Klíčovým prvkem je nová velká mateřská škola, která vyrostla přímo v srdci sídliště a nabízí moderní prostory i dostatečnou kapacitu pro místní děti, čímž výrazně usnadňuje každodenní logistiku rodičům.
Aktuálně nejvýznamnějším rozvojovým projektem pro tuto oblast je nově plánovaná tramvajová trať, která propojí Kamechy přímo s centrem Brna. Prodloužení kolejí z Bystrce zajistí obyvatelům rychlou a pohodlnou dopravu, což v budoucnu ještě zvýší atraktivitu i hodnotu nemovitostí v této lokalitě.
| Cena: | 9 250 000 Kč |
| Datum k nastěhování: | 18.04.2026 |
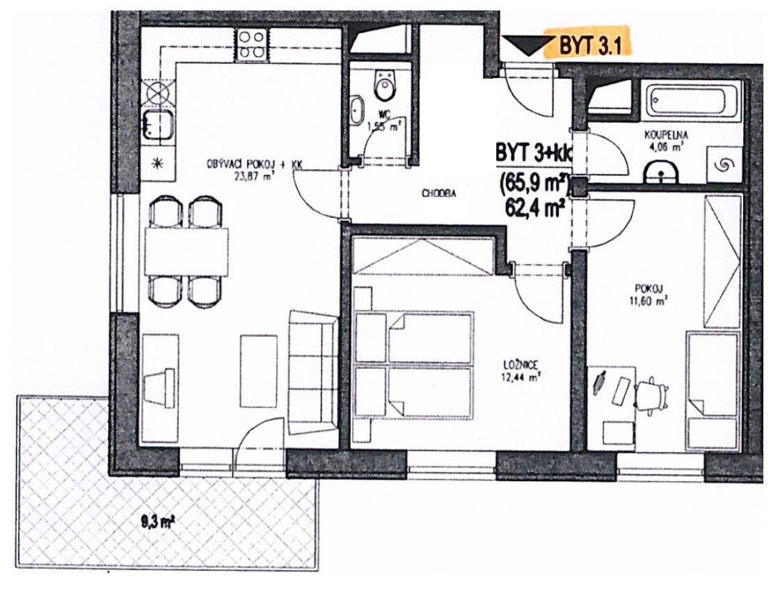
| Dispozice/podlahová plocha: | 3+kk/66 m² |
| Číslo zakázky: | REALITYMIX-977273 |
Podrobné informace
- Dispozice bytu: 3+kk
- Číslo podlaží v domě: 3
- Počet podlaží objektu: 7
- Celková podlahová plocha: 66 m²
- Druh objektu: cihlová
- Stav objektu: novostavba
- Vlastnictví: osobní
- Sklep: 2 m²
- Terasa: 9 m²
- Vybaveno: ano
- Voda: Zdroj pro celý objekt, Voda - dálkový vodovod
- Odpad: Kanalizace
- Energetická náročnost budovy: B - Úsporná
- Popis vybavení: .
Právní rádce
-
Detail
V tomto článku shrneme nejdůležitější věci, které byste si měli promyslet, pokud se chystáte prodat svou nemovitost a chcete, abyste s kupujícím nemusel následně řešit vzniklé problémy.
Jako prodávající nesete rizika spojená nejen se samotným obchodem, ale i se stavem nemovitosti v době prodeje a pro minimalizaci rizik, je dobré se zamyslet nad uvedenými oblastmi.
-
Detail
Realitní makléř má své nezastupitelné místo v realitním obchodu. Realitním makléřem nemyslím nevzdělané jelito, které absolvovalo dvoudenní školení a ví, jak se nahraje inzerát na inzertní portál.
Realitním makléřem, který se Vám skutečně vyplatí, je zkušený profesionál, který je schopen Vám dobře poradit jak prodat za co nejvíc a s nejmenším rizikem a hlavně je Vás schopen obratně provést celým realitním obchodem.
Prodáváte nemovitost a potřebujete zjistit její reálnou hodnotu?
Zjistit reálnou cenuVývoj průměrné ceny za m2 v lokalitě Brno-město
Prodáváte nemovitost a potřebujete zjistit její reálnou hodnotu?
Zjistit reálnou cenuMapa
Podobné nemovitosti
Prodej bytu, 3+kk, 75 m²
Bubeníčkova, Brno-Židenice, Brno, Brno-město
8 890 000 Kč
Prodej bytu, 3+kk, 74 m²
Husovice, Brno, Brno-město
9 486 000 Kč
Prodej bytu, 3+kk, 79 m²
Bubeníčkova, Brno-Židenice, Brno, Brno-město
9 990 000 Kč
Prodej bytu, 3+kk, 132 m²
Plynárenská, Brno-střed, Brno, Brno-město
9 612 000 Kč