Prodej bytu, 4+kk, 138 m²
Křenová, Brno-střed, Brno, Brno-město
Cena na vyžádáníProdej bytu, 4+kk, 138 m²
Křenová, Brno-střed, Brno, Brno-město
Prodej bytu 4+kk, 138 m2 - Křenová, Brno
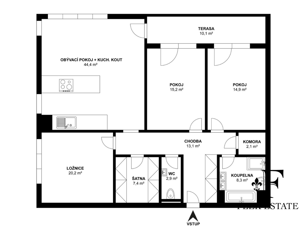
Moderní a nadstandardně vybavený byt 4+kk o ploše 138,6 m² na ulici Křenová nabízí komfortní bydlení s terasou, krásným výhledem a garážovým stáním – ideální pro ty, kteří hledají víc než jen „běžné bydlení“.
Dispozice:
- 4+kk, 138,6 m², 4. NP s výtahem
- prostorný obývací pokoj s kuchyní
- 3 samostatné pokoje
- šatna
- koupelna s WC
- samostatné WC
- technická místnost
Hlavní benefity a vybavení:
- terasa (9,4 m²) se vstupem z obývacího pokoje a dvou pokojů
- krásný výhled na město
- skvělá lokalita v srdci Brna
- podlahové vytápění
- rekuperace
- bezfalcové interiérové dveře na míru
- vestavěné skříně na míru
- kuchyň se spotřebiči Miele
- vnitřní garážové stání
- sklepní kóje
Cena na vyžádání
Pokud hledáte výjimečné bydlení v centru Brna, ráda vám byt osobně představím. Pro domluvení prohlídky mě neváhejte kontaktovat.
| Cena: | Cena na vyžádání |
| Poznámka: | cena u makléře |
| Datum k nastěhování: | 18.03.2026 |
| Dispozice/podlahová plocha: | 4+kk/138 m² |
| Číslo zakázky: | REALITYMIX-0001 |
Podrobné informace
- Dispozice bytu: 4+kk
- Číslo podlaží v domě: 4
- Počet podlaží objektu: 8
- Užitná plocha: 138 m²
- Celková podlahová plocha: 138 m²
- Druh objektu: cihlová
- Stav objektu: novostavba
- Vlastnictví: osobní
- Terasa: 9 m²
- Umístění objektu: centrum obce
- Voda: Voda - dálkový vodovod
- Odpad: Kanalizace
- Energetická náročnost budovy: B - Velmi úsporná
- Energetický ukazatel podle vyhlášky: č. 264/2020 Sb.
Právní rádce
-
Detail
V tomto článku shrneme nejdůležitější věci, které byste si měli promyslet, pokud se chystáte prodat svou nemovitost a chcete, abyste s kupujícím nemusel následně řešit vzniklé problémy.
Jako prodávající nesete rizika spojená nejen se samotným obchodem, ale i se stavem nemovitosti v době prodeje a pro minimalizaci rizik, je dobré se zamyslet nad uvedenými oblastmi.
-
Detail
Realitní makléř má své nezastupitelné místo v realitním obchodu. Realitním makléřem nemyslím nevzdělané jelito, které absolvovalo dvoudenní školení a ví, jak se nahraje inzerát na inzertní portál.
Realitním makléřem, který se Vám skutečně vyplatí, je zkušený profesionál, který je schopen Vám dobře poradit jak prodat za co nejvíc a s nejmenším rizikem a hlavně je Vás schopen obratně provést celým realitním obchodem.
Prodáváte nemovitost a potřebujete zjistit její reálnou hodnotu?
Zjistit reálnou cenuVývoj průměrné ceny za m2 v lokalitě Brno-město
Prodáváte nemovitost a potřebujete zjistit její reálnou hodnotu?
Zjistit reálnou cenuMapa
Podobné nemovitosti
Prodej bytu, 2+kk, 58 m²
Ponětovická, Brno-Slatina, Brno, Brno-město
7 900 000 Kč
Prodej bytu, 4+kk, 163 m²
Jehnice, Brno, Brno-město
16 858 500 Kč
Prodej bytu, 4+kk, 126 m²
Elišky Krásnohorské, Brno-Černovice, Brno, Brno-město
11 400 000 Kč
Prodej bytu, 2+kk, 68 m²
Spolková, Brno-sever, Brno, Brno-město
7 400 000 Kč