Hospodářské noviny
Hledat Přihlásit seMůj účet Předplatné
Přihlásit seMůj účet Předplatné
  • Home
  • Byznys
  • Zprávy
  • Názory
  • Tech
  • Reality
  • Investice
  • Podcasty
  • Hry
  • PročNe
  • Archiv
  • Další
  • Jak nastartovat sever
  • Speciály HN
  • Víkend
  • Magazín Stavba
  • Knihy HN
  • Eventy
  • Green Deal
  • Inovátoři roku
  • Top ženy
  • Nej banka / Nej pojišťovna
  • Předplatné
  • Redakce
  • Inzerce
  • Kontakty
  • Newslettery
  • Ekonom
  • Logistika
  • Právní rádce
  • Hry
  • Economia
  • BeNative
  • Nastavení účtu
  • Moje předplatné
  • Odhlásit se

Reality

  • Reality
  • Vyhledávání nemovitostí
  • Top realitní fondy
  • Magazín Stavba
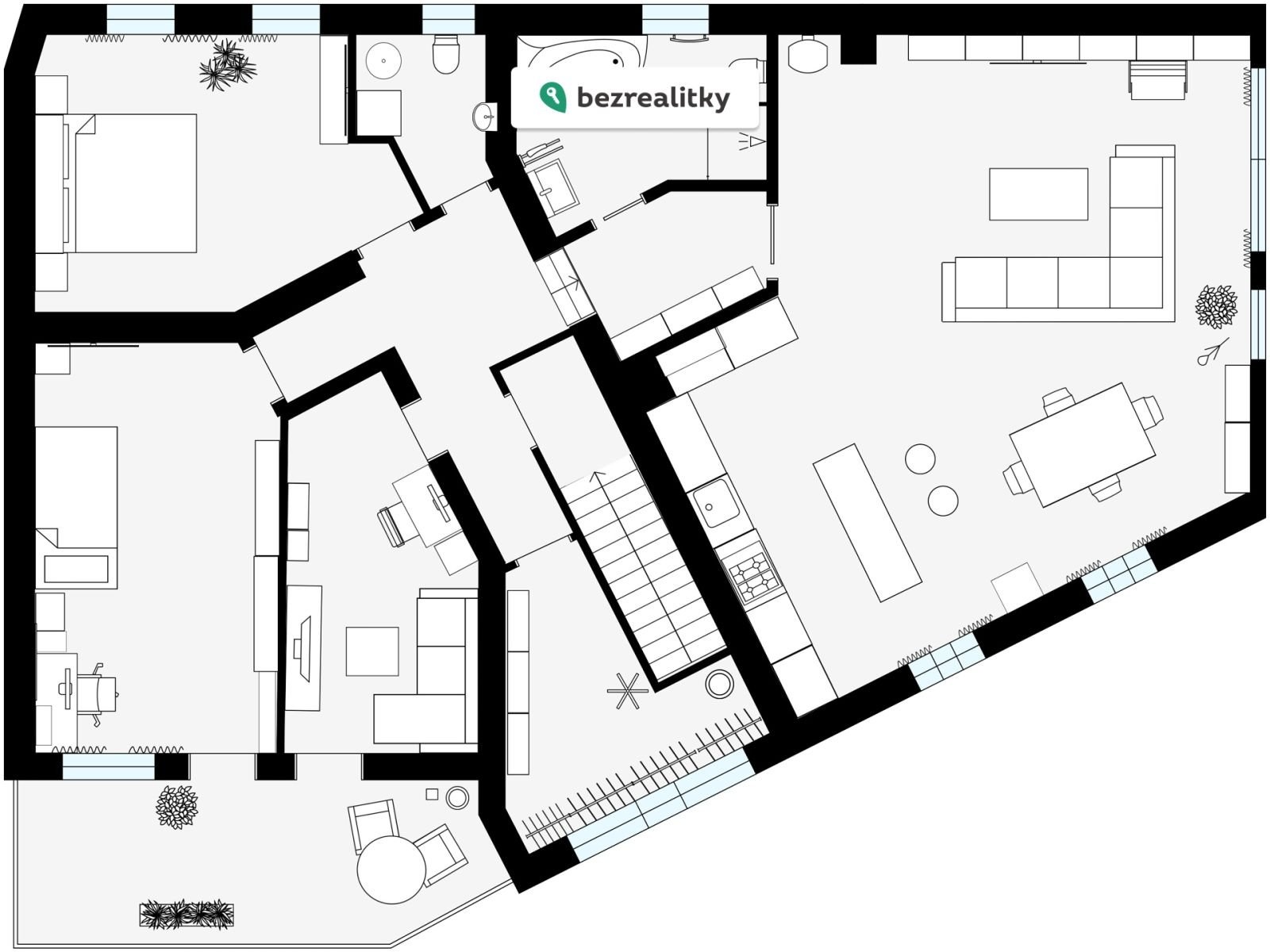
Prodej bytu, 4+kk, 141 m²

Prodej bytu, 4+kk, 141 m²

Podstránská, Brno-Slatina, Brno, Brno-město

12 800 000 Kč
  • RealityMIX
  • Byty
  • Prodej
  • Jihomoravský kraj
  • Brno-město
0 z 5 (0 hodnocení)

Prodej bytu, 4+kk, 141 m²

Podstránská, Brno-Slatina, Brno, Brno-město

12 800 000 Kč
D
Nevyhovující
Výpis
Předchozí inzerát Další inzerát
1775308068-oupafxosjs-bc211124-102
1775308058-gyihabibka-bc211124-104
1775308052-wnmkzylsoy-2d-pudorys-1-np

Prodej bytu 4+kk 141 m²

Prostorný byt 4+kk s garáží, balkónem a zahradou | Brno – Slatina

Nabízíme k prodeji byt o dispozici 4+kk a celkové užitné ploše 140 m², který se nachází v rodinném domě o dvou bytových jednotkách v městské části Brno-Slatina, na ulici Podstránská.
Spodní patro bytu tvoří prostorná garáž o velikosti 43,10 m², technická místnost a chodba se vstupem do obytné části. Samotné bydlení se nachází v 1. nadzemním podlaží.
Byt byl zkolaudován v roce 2019 a nabízí komfortní prostor pro rodinné bydlení. Součástí obytné části je balkón o velikosti 12,22 m², ideální pro posezení a relaxaci.
Velkým benefitem je také půda o ploše cca 50 m², která nabízí široké možnosti využití – ať už jako úložný prostor, nebo potenciál k dalšímu rozšíření obytné plochy. Dále zahrada o výměře 89 m² (bez oplocení) s možností výstavby terasy, a také parkovací místo přímo před domem.
Vytápění i ohřev vody zajišťuje vlastní plynový kotel, což umožňuje efektivní kontrolu provozních nákladů.
Lokalita nabízí výbornou dostupnost do centra Brna, kompletní občanskou vybavenost v docházkové vzdálenosti, zastávky autobusu i tramvaje, dětská hřiště a blízkost přírody – zejména oblíbené lokality Stránská skála.
Nemovitost je vhodná pro rodinné bydlení, kombinaci bydlení a podnikání, případně jako dlouhodobou investici. Prodej je realizován bez provize realitní kanceláře, přímý prodej od majitele. Tato nemovitost je určena výhradně přímým zájemcům o koupi. Na inzerát můžete také reagovat přímo na webu Bezrealitky.
Cena: 12 800 000 Kč  
Dispozice/podlahová plocha: 4+kk/141 m²
Číslo zakázky: REALITYMIX-1008912

Podrobné informace

  • Dispozice bytu: 4+kk
  • Číslo podlaží v domě: 1
  • Počet podlaží objektu: 1
  • Celková podlahová plocha: 141 m²
  • Druh objektu: cihlová
  • Stav objektu: velmi dobrý
  • Vlastnictví: osobní
  • Balkon: 12 m²
  • Vybaveno: ano
  • Umístění objektu: okraj obce
  • Energetická náročnost budovy: D - Nevyhovující

Sdílej na:

Facebook     Twitter

Tisk nabídky (pdf)

  • (A4)
  • (A4)
  • (A4)
  • (A4)
  • (A5)

Poslat odkaz:

Právní rádce

Právní rádce
  • V tomto článku shrneme nejdůležitější věci, které byste si měli promyslet, pokud se chystáte prodat svou nemovitost a chcete, abyste s kupujícím nemusel následně řešit vzniklé problémy.

    Jako prodávající nesete rizika spojená nejen se samotným obchodem, ale i se stavem nemovitosti v době prodeje a pro minimalizaci rizik, je dobré se zamyslet nad uvedenými oblastmi.

    Detail
  • Realitní makléř má své nezastupitelné místo v realitním obchodu. Realitním makléřem nemyslím nevzdělané jelito, které absolvovalo dvoudenní školení a ví, jak se nahraje inzerát na inzertní portál.

    Realitním makléřem, který se Vám skutečně vyplatí, je zkušený profesionál, který je schopen Vám dobře poradit jak prodat za co nejvíc a s nejmenším rizikem a hlavně je Vás schopen obratně provést celým realitním obchodem.

    Detail
  • Detail
Chci vědět víc
Právní rádce

Prodáváte nemovitost a potřebujete zjistit její reálnou hodnotu?

Zjistit reálnou cenu

Vývoj průměrné ceny za m2 v lokalitě Brno-město

Ceny uvedené v grafu, jsou průměrnými cenami ze sledované lokality a nezohledňují stav, stáří ani vybavení nemovitosti.
2Q 2022 111834
2Q 2022
Průměrná nabídková cena 111 834 Kč/m²

Aktuální nabídka: 90 780 Kč/m²
3Q 2022 110414
3Q 2022
Průměrná nabídková cena 110 414 Kč/m²

Aktuální nabídka: 90 780 Kč/m²
4Q 2022 105305
4Q 2022
Průměrná nabídková cena 105 305 Kč/m²

Aktuální nabídka: 90 780 Kč/m²
1Q 2023 100579
1Q 2023
Průměrná nabídková cena 100 579 Kč/m²

Aktuální nabídka: 90 780 Kč/m²
2Q 2023 99405
2Q 2023
Průměrná nabídková cena 99 405 Kč/m²

Aktuální nabídka: 90 780 Kč/m²
3Q 2023 99188
3Q 2023
Průměrná nabídková cena 99 188 Kč/m²

Aktuální nabídka: 90 780 Kč/m²
4Q 2023 103229
4Q 2023
Průměrná nabídková cena 103 229 Kč/m²

Aktuální nabídka: 90 780 Kč/m²
1Q 2024 107908
1Q 2024
Průměrná nabídková cena 107 908 Kč/m²

Aktuální nabídka: 90 780 Kč/m²
2Q 2024 111017
2Q 2024
Průměrná nabídková cena 111 017 Kč/m²

Aktuální nabídka: 90 780 Kč/m²
3Q 2024 114885
3Q 2024
Průměrná nabídková cena 114 885 Kč/m²

Aktuální nabídka: 90 780 Kč/m²
4Q 2024 112959
4Q 2024
Průměrná nabídková cena 112 959 Kč/m²

Aktuální nabídka: 90 780 Kč/m²
1Q 2025 116356
1Q 2025
Průměrná nabídková cena 116 356 Kč/m²

Aktuální nabídka: 90 780 Kč/m²
2Q 2025 116052
2Q 2025
Průměrná nabídková cena 116 052 Kč/m²

Aktuální nabídka: 90 780 Kč/m²
3Q 2025 118705
3Q 2025
Průměrná nabídková cena 118 705 Kč/m²

Aktuální nabídka: 90 780 Kč/m²
4Q 2025 121000
4Q 2025
Průměrná nabídková cena 121 000 Kč/m²

Aktuální nabídka: 90 780 Kč/m²
1Q 2026 123435
1Q 2026
Průměrná nabídková cena 123 435 Kč/m²

Aktuální nabídka: 90 780 Kč/m²

Prodáváte nemovitost a potřebujete zjistit její reálnou hodnotu?

Zjistit reálnou cenu

Mapa

* Umístění na mapě je na základě GPS informací dodaných realitní kanceláří.
* Pozice na mapě je pouze orientační.

Souhlas se zpracováním osobních údajů

Uživatel serveru Reality.hn.cz (dále jen „Server“) dostupného na internetové adrese (URL) https://realitymix.hn.cz, který provozuje společnost DALTEN media s.r.o., se sídlem Na Harfě 916/9a, Praha 9, 190 00, IČO: 271 35 306 (dále jen „Správce“) jako provozovateli tohoto Serveru uděluje svůj výslovný souhlas v souladu s ustanovením § 5 zákona č. 101/2000 Sb. O ochraně osobních údajů a o změně některých zákonů, v platném znění (dále jen „zákon o ochraně osobních údajů“), se zpracováním uživatelem poskytnutých osobních údajů a dalších dat.

Uživatel poskytuje Správci osobní údaje v rozsahu: jméno, příjmení, e-mailová adresa, telefonický kontakt a další data, a to z důvodu projeveného zájmu o nemovitost, kde prostřednictvím služby Serveru Správce osloví Uživatel inzerenta uvedeného v detailu nemovitosti - Bezrealitky s.r.o. (IČ 08063168) se zájmem o jeho služby.

Uživatel tyto osobní údaje poskytuje dobrovolně a bere na vědomí, že součástí služeb Správce, které Správce Uživateli poskytuje, je vyhledání všech Uživateli vyhovujících (dle parametrů - cena, typ nemovitosti, lokalita atd.) nemovitostí. Správce za tímto účelem provozuje aplikace Hlídací pes a newsletter. Tyto služby je možné z každého zaslaného emailu odhlásit. Souhlas se zpracováním osobních údajů Uživatel poskytuje Správci na dobu neurčitou s tím, že svůj udělený souhlas může Uživatel kdykoliv na drese správce info@realitymix.cz odvolat. Správce garantuje Uživateli i další práva uvedené v ustanovení §11 a §21 zákoba č. 101/200 Sb. Ve znění pozdějších předpisů. Více informací o zpracování údajů získáte zde (realitymix.cz/zasady-ochrany-osobnich-udaju)

Podobné nemovitosti

Prodej bytu, 4+kk, 143 m² obrázek

Prodej bytu, 4+kk, 143 m²

Bosonohy, Brno-město

10 300 000 Kč
Prodej bytu, 4+kk, 143 m² obrázek

Prodej bytu, 4+kk, 143 m²

Bosonohy, Brno-město

10 300 000 Kč
RealityMIX placeholder

Prodej bytu, 4+kk, 143 m²

Bartolomějská, Brno-Žebětín, Brno, Brno-město

9 890 000 Kč
Prodej bytu, 4+kk, 109 m² obrázek

Prodej bytu, 4+kk, 109 m²

Plynárenská, Brno-střed, Brno, Brno-město

13 425 000 Kč

Napsat zprávu prodejci

Prodej bytu, 4+kk, 141 m²

Prodej bytu, 4+kk, 141 m²

Podstránská, Brno-Slatina, Brno, Brno-město

12 800 000 Kč

Hospodářské noviny

© 1996-2026 Economia, a.s.

Hospodářské noviny (print)   ISSN 0862-9587
Hospodářské noviny (online) ISSN 2787-950X

Certifikováno
jti
Sledujte nás
Stáhněte si aplikaci HN
  • Kontakty
  • Tiráž redakce HN
  • Economia
  • Kariéra v HN
  • Ceník inzerce
  • Ochrana osobních údajů
  • Prohlášení o cookies
  • Nastavení soukromí
  • Všeobecné smluvní podmínky
  • Koupit / darovat předplatné
  • Eventy
  • Newslettery
  • RSS kanály
Autorská práva vykonává vydavatel. Bez písemného svolení vydavatele je zakázáno jakékoli užití částí nebo celku díla, zejména rozmnožování a šíření jakýmkoli způsobem, mechanickým nebo elektronickým, v českém nebo jiném jazyce. Bez souhlasu vydavatele je zakázáno též rozmnožování obsahu pro účely automatizované analýzy textů nebo dat podle ustanovení § 39c autorského zákona.