Prodej - kanceláře, 65 m²
Mojmírovo náměstí, Brno-Královo Pole, Brno, Brno-město
5 080 000 KčProdej - kanceláře, 65 m²
Mojmírovo náměstí, Brno-Královo Pole, Brno, Brno-město
Prodej moderní kanceláře, ul. Mojmírovo náměstí, Brno-Královo Pole
Tak pro Vás máme tuto moderní zařízenou kancelář se seriózním dlouhodobým nájemníkem.
Představujeme Vám reprezentativní kancelářské prostory po zdařilé kompletní rekonstrukci.
Design interiéru je moderní, s důrazem na funkčnost a pohodlí. Najdete tu inteligentní osvětlení, klimatizační jednotku, kuchyňskou linku na míru a chytře řešený kancelářský nábytek, který disponuje nepřeberným množstvím úložného prostoru.
Pro zviditelnění Vaší firmy je i vymezená reklamní plocha hned při vstupu do domu.
Další velkou výhodou je lokalita samotná. Královo Pole je oblíbené nejen kvůli svému strategickému umístění, ale také díky skvělé dopravní dostupnosti. Zastávky MHD jsou v těsné blízkosti, stejně jako napojení na hlavní dopravní tepny města.
Přidanou hodnotou je i vedlejší parkovací dům, který poskytuje dostatek parkovacích míst pro vás i vaše klienty. A pokud potřebujete skladovací prostory, tak v těsné blízkosti se zároveň nachází skladovací areál, který nabízí flexibilní řešení dle vašich potřeb.
Prostě tu najdete vše co k vašemu podnikání potřebujete.
Přijďte se přesvědčit osobně a uvidíte sami.
V případě více informací se můžete podívat na stránku nemovitosti.
| Cena: | 5 080 000 Kč |
| Poznámka: | včetně všech poplatků |
| Číslo zakázky: | REALITYMIX-0060 |
Podrobné informace
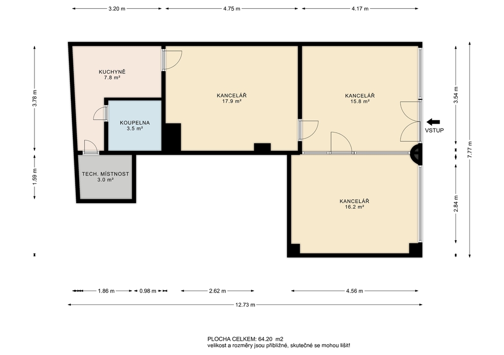
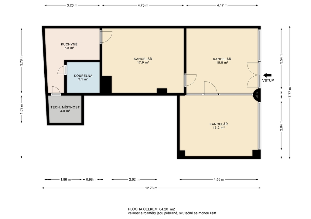
- Plocha kanceláří: 65 m²
- Druh objektu: smíšená
- Stav objektu: velmi dobrý
- Druh prostor: Kanceláře
- Ostatní: Bezbarierový přístup, Výtah
- Doprava: vlak, silnice, MHD
- Komunikace: asfaltová
- Voda: Voda - dálkový vodovod
- Telekomunikace: Internet
- Plyn: Plynovod
- Odpad: Kanalizace
- Energetická náročnost budovy: D - Méně úsporná
- Energetický ukazatel podle vyhlášky: č. 264/2020 Sb.
Právní rádce
-
Detail
V tomto článku shrneme nejdůležitější věci, které byste si měli promyslet, pokud se chystáte prodat svou nemovitost a chcete, abyste s kupujícím nemusel následně řešit vzniklé problémy.
Jako prodávající nesete rizika spojená nejen se samotným obchodem, ale i se stavem nemovitosti v době prodeje a pro minimalizaci rizik, je dobré se zamyslet nad uvedenými oblastmi.
-
Detail
Realitní makléř má své nezastupitelné místo v realitním obchodu. Realitním makléřem nemyslím nevzdělané jelito, které absolvovalo dvoudenní školení a ví, jak se nahraje inzerát na inzertní portál.
Realitním makléřem, který se Vám skutečně vyplatí, je zkušený profesionál, který je schopen Vám dobře poradit jak prodat za co nejvíc a s nejmenším rizikem a hlavně je Vás schopen obratně provést celým realitním obchodem.
Mapa
Podobné nemovitosti
Prodej - výrobní prostor, 6 100 m²
Kulkova, Brno-Maloměřice a Obřany, Brno, Brno-město
Cena na vyžádání
Prodej - obchodní prostor, 178 m²
Trnitá, Brno-střed, Brno, Brno-město
16 056 000 Kč
Prodej - jiné, 2 369 m²
Šámalova, Brno-Židenice, Brno, Brno-město
68 000 000 Kč
Prodej - obchodní prostor, 92 m²
Trnitá, Brno-střed, Brno, Brno-město
9 999 000 Kč