Prodej bytu, 2+kk, 80 m²
Dřevařská, Brno-střed, Brno, Brno-město
4 121 000 KčProdej bytu, 2+kk, 80 m²
Dřevařská, Brno-střed, Brno, Brno-město
4 121 000 Kč
G
Mimořádně nehospodárná
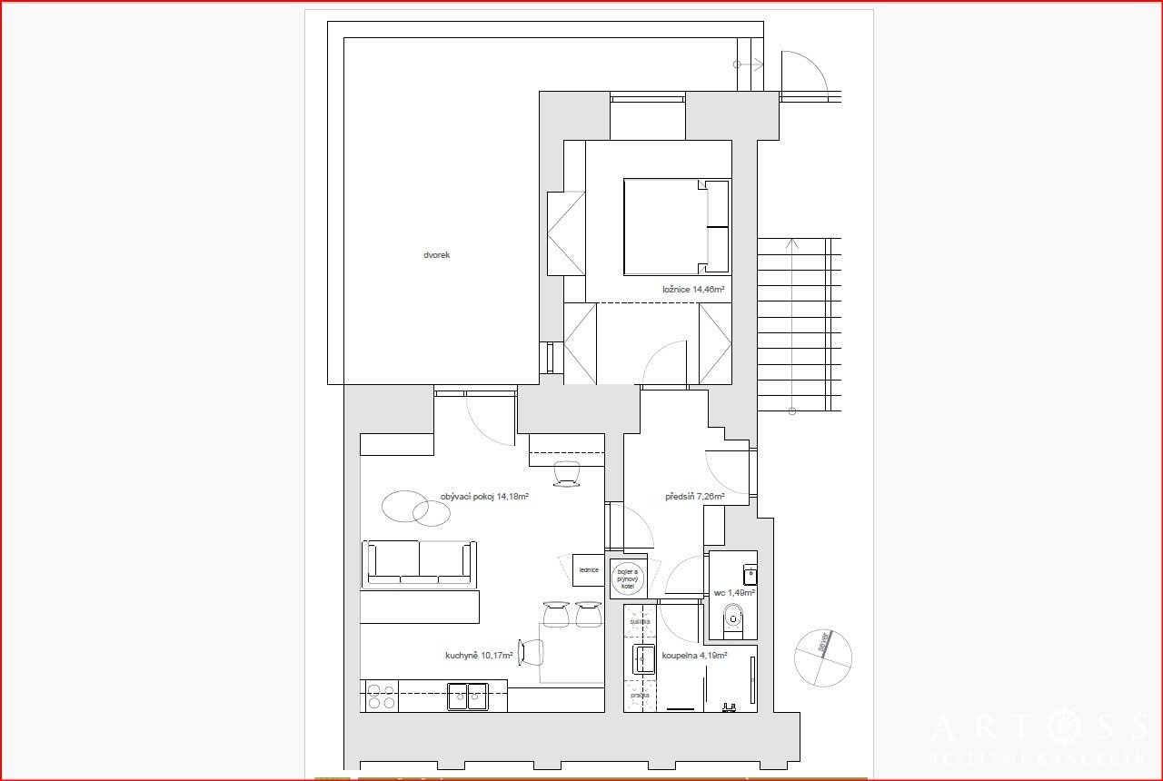
Prodej nebytového prostoru k rekonstrukci 53 m², + terasa 27 m2, Brno - Veveří, ul. Dřevařská
Upozornění - na fotkách je aktuální stav a vedle stav po možné rekonstrukci pro inspiraci
Nabízíme Vám možnost skvělé investice.
V obzvlášť atraktivní lokalitě v Brně - Veveří se nachází tato nemovitost ke kompletní rekonstrukci s užitnou plochou 53 m². K nemovitosti je i nárok k terase cca 27 m2 přilehající přímo k prostoru.
V této chvíli je zapsán na LV jako nebytový prostor a nabízí skvělé možnosti pro vlastní úpravy a přizpůsobení dle vašich představ. Jedná se o nebytový prostor ke kompletní rekonstrukci s možností výstavby ideálně ateliéru, případně bytu, avšak klient si musí sám prověřit .
Dům prochází rekonstrukcí, díky které získává nový život a moderní vzhled.
V současnosti je jednotka v družstevním vlastnictví, avšak po rekonstrukci domu bude možnost převést do osobního vlastnictví. Jedná se o cihlovou budovu s vysokou odolností a dlouhou životností.
Tento prostor nabízí skvělé možnosti pro vlastní úpravy a přizpůsobení dle vašich představ. Díky své poloze a veškeré občanské vybavenosti je to ideální místo pro Vaše záměry.
Klient si vyhrazuje právo výběru zájemce
Nabízíme Vám možnost skvělé investice.
V obzvlášť atraktivní lokalitě v Brně - Veveří se nachází tato nemovitost ke kompletní rekonstrukci s užitnou plochou 53 m². K nemovitosti je i nárok k terase cca 27 m2 přilehající přímo k prostoru.
V této chvíli je zapsán na LV jako nebytový prostor a nabízí skvělé možnosti pro vlastní úpravy a přizpůsobení dle vašich představ. Jedná se o nebytový prostor ke kompletní rekonstrukci s možností výstavby ideálně ateliéru, případně bytu, avšak klient si musí sám prověřit .
Dům prochází rekonstrukcí, díky které získává nový život a moderní vzhled.
V současnosti je jednotka v družstevním vlastnictví, avšak po rekonstrukci domu bude možnost převést do osobního vlastnictví. Jedná se o cihlovou budovu s vysokou odolností a dlouhou životností.
Tento prostor nabízí skvělé možnosti pro vlastní úpravy a přizpůsobení dle vašich představ. Díky své poloze a veškeré občanské vybavenosti je to ideální místo pro Vaše záměry.
Klient si vyhrazuje právo výběru zájemce
| Cena: | 4 121 000 Kč |
| Poznámka: | vč. provize |
| Dispozice/podlahová plocha: | 2+kk/80 m² |
| Číslo zakázky: | REALITYMIX-325251106 |
Podrobné informace
- Dispozice bytu: 2+kk
- Číslo podlaží v domě: 1
- Počet podlaží objektu: 5
- Celková podlahová plocha: 80 m²
- Druh objektu: cihlová
- Stav objektu: před rekonstrukcí
- Vlastnictví: družstevní
- Terasa: 27 m²
- Umístění objektu: centrum obce
- Doprava: silnice, MHD
- Elektřina: Elektro - 230 V
- Voda: Voda - dálkový vodovod
- Odpad: Kanalizace
- Energetická náročnost budovy: G - Mimořádně nehospodárná
Právní rádce
-
Detail
Realitní makléř má své nezastupitelné místo v realitním obchodu. Realitním makléřem nemyslím nevzdělané jelito, které absolvovalo dvoudenní školení a ví, jak se nahraje inzerát na inzertní portál.
Realitním makléřem, který se Vám skutečně vyplatí, je zkušený profesionál, který je schopen Vám dobře poradit jak prodat za co nejvíc a s nejmenším rizikem a hlavně je Vás schopen obratně provést celým realitním obchodem.
Prodáváte nemovitost a potřebujete zjistit její reálnou hodnotu?
Zjistit reálnou cenuVývoj průměrné ceny za m2 v lokalitě Brno-město
Ceny uvedené v grafu, jsou průměrnými cenami ze sledované lokality a nezohledňují stav, stáří ani vybavení nemovitosti.
Prodáváte nemovitost a potřebujete zjistit její reálnou hodnotu?
Zjistit reálnou cenuMapa
* Umístění na mapě je na základě GPS informací dodaných realitní kanceláří.
* Pozice na mapě je pouze orientační.
Podobné nemovitosti
Prodej bytu, 2+kk, 58 m²
Ponětovická, Brno-Slatina, Brno, Brno-město
7 900 000 Kč
Prodej bytu, 4+kk, 163 m²
Jehnice, Brno, Brno-město
16 858 500 Kč
Prodej bytu, 1+kk, 32 m²
Spolková, Brno-sever, Brno, Brno-město
4 700 000 Kč
Prodej bytu, 2+kk, 68 m²
Spolková, Brno-sever, Brno, Brno-město
7 400 000 Kč