Prodej - obchodní prostor, 98 m²
Antonínská, Brno-střed, Brno, Brno-město
8 425 000 KčProdej - obchodní prostor, 98 m²
Antonínská, Brno-střed, Brno, Brno-město
Prodej prostor bývalé provozovny (dříve byt 3+1) v širším centru Brna na ul. Antonínská, 1. NP
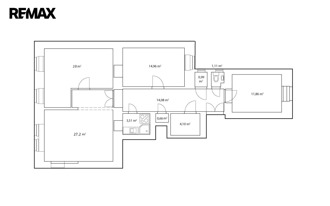
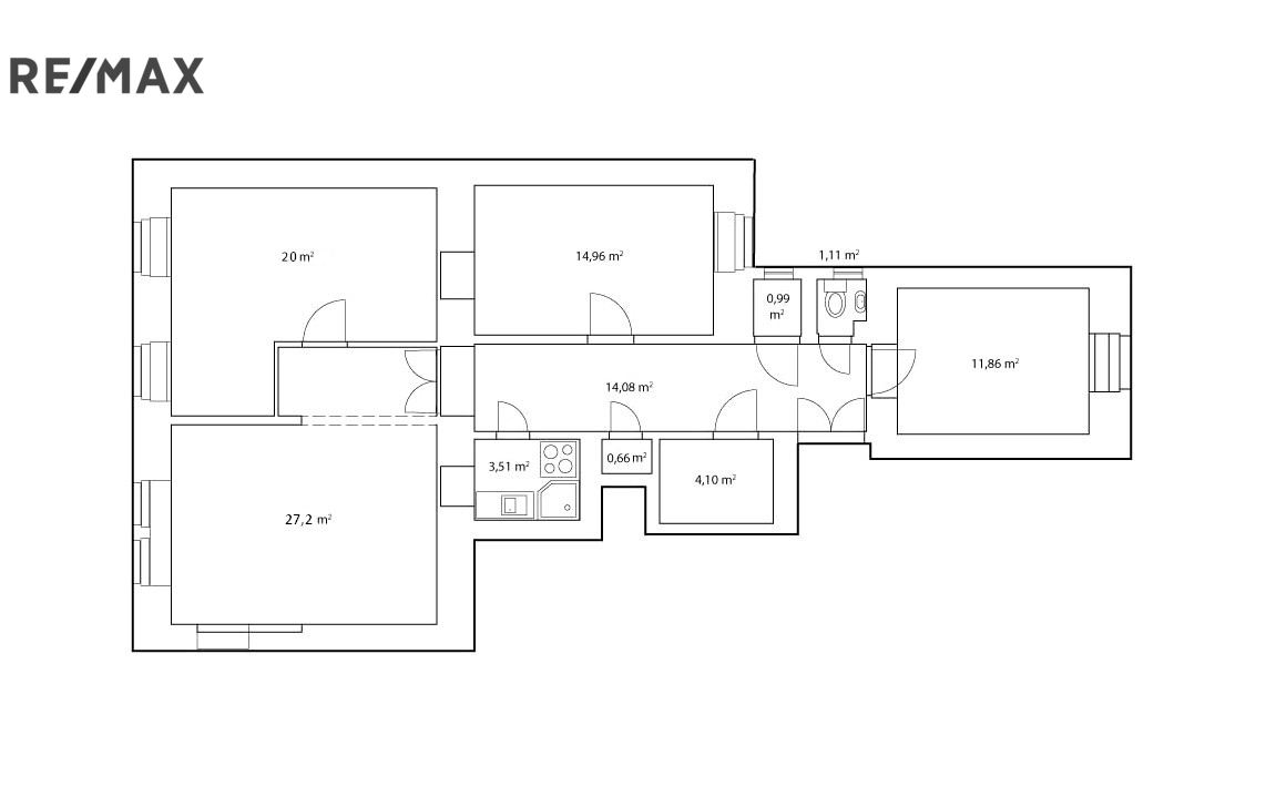
Jednotka nabízí užitnou plochu 98,6 m2, k dispozici je navíc sklep o velikosti 8,95 m2, celková plocha tak činí 107,55 m2. Velkým benefitem je přímý vstup z ulice, který zajišťuje skvělou dostupnost pro klienty či zákazníky, zároveň je možné využívat i klasický vstup z chodby domu. Dispozice tvoří čtyři místnosti, chodba, koupelna, WC a dvě komory. Prostory jsou v původním stavu a jsou ideální k celkové rekonstrukci dle vlastních představ a potřeb – ať už pro podnikání, kanceláře, služby nebo přestavbu na bydlení. Elektroinstalace je již v mědi, vytápění zajišťuje plynový kotel napojený na ústřední topení.
Jedním z hlavních lákadel je samotná poloha – samotné centrum Brna máte doslova na dosah ruky. Ulice Česká je vzdálena přibližně 500 metrů, tedy zhruba 7 minut chůze. Zastávka MHD se nachází pouhých 120 metrů od domu (trolejbusy 32, 34, 36), případně tramvajová zastávka Antonínská na ulici Lidická je vzdálena asi 320 metrů. Skvělá dostupnost zaručuje pohodlí pro vás i vaše klienty.
Pokud hledáte prostor s potenciálem, výbornou polohou a možností přizpůsobení přesně podle vašich představ, tahle nabídka rozhodně stojí za pozornost. Pro více informací a domluvení prohlídky neváhejte kontaktovat makléře. Prodávající si vyhrazuje právo vybrat kupujícího na základě jím zvolených kritérií.
| Cena: | 8 425 000 Kč |
| Poznámka: | včetně provize a právních služeb |
| Číslo zakázky: | REALITYMIX-419631 |
Podrobné informace
- Plocha kanceláří: 98 m²
- Plocha parcely: 301 m²
- Druh objektu: smíšená
- Stav objektu: dobrý
- Druh prostor: Obchodní
- Umístění objektu: centrum obce
- Doprava: silnice, MHD
- Komunikace: asfaltová
- Elektřina: Elektro - 230 V
- Voda: Voda - dálkový vodovod
- Telekomunikace: Internet
- Plyn: Plynovod
- Odpad: Kanalizace
- Ostatní rozvody: Kabelová televize
- Energetická náročnost budovy: F - Velmi nehospodárná
- Energetický ukazatel podle vyhlášky: č. 264/2020 Sb.
Právní rádce
-
Detail
V tomto článku shrneme nejdůležitější věci, které byste si měli promyslet, pokud se chystáte prodat svou nemovitost a chcete, abyste s kupujícím nemusel následně řešit vzniklé problémy.
Jako prodávající nesete rizika spojená nejen se samotným obchodem, ale i se stavem nemovitosti v době prodeje a pro minimalizaci rizik, je dobré se zamyslet nad uvedenými oblastmi.
-
Detail
Realitní makléř má své nezastupitelné místo v realitním obchodu. Realitním makléřem nemyslím nevzdělané jelito, které absolvovalo dvoudenní školení a ví, jak se nahraje inzerát na inzertní portál.
Realitním makléřem, který se Vám skutečně vyplatí, je zkušený profesionál, který je schopen Vám dobře poradit jak prodat za co nejvíc a s nejmenším rizikem a hlavně je Vás schopen obratně provést celým realitním obchodem.
Mapa
Podobné nemovitosti
Prodej - obchodní prostor, 85 m²
Merhautova, Brno-sever, Brno, Brno-město
5 990 000 Kč
Prodej - obchodní prostor, 172 m²
Lidická, Brno-střed, Brno, Brno-město
7 880 000 Kč
Prodej - obchodní prostor, 78 m²
Mojmírovo náměstí, Brno-Královo Pole, Brno, Brno-město
8 590 000 Kč
Prodej - obchodní prostor, 68 m²
Pražákova, Brno-střed, Brno, Brno-město
8 500 000 Kč