Prodej bytu, 3+kk, 69 m²
Horácké náměstí, Brno-Řečkovice a Mokrá Hora, Brno, Brno-město
7 900 000 KčProdej bytu, 3+kk, 69 m²
Horácké náměstí, Brno-Řečkovice a Mokrá Hora, Brno, Brno-město
Zrekonstruovaný byt 3+kk v Řečkovicích
Byt se nachází ve třetím patře vyhledávané a dlouhodobě stabilní lokalitě Brno – Řečkovice, přímo na Horáckém náměstí.
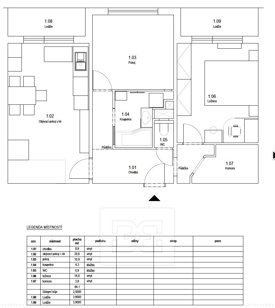
Dispozice a vybavení bytu
• prostorná vstupní předsíň se šatnou
• samostatná ložnice se zasklenou lodžií
• menší neprůchozí pokoj, vhodný jako dětský pokoj, pracovna nebo pokoj pro hosty
• samostatné WC
• koupelna s vanou, umyvadlem, topným tělesem a přípojkou na pračku
• obývací pokoj s kuchyňským koutem na míru, vybaveným všemi spotřebiči
• na obývací část navazuje druhá lodžie
K bytu náleží sklepní kóje.
Další informace
• zálohové platby okolo 6tis + elektřina.
• byt nabízí variabilitu dispozice dle potřeb budoucího majitele
• vhodné jak pro rodinné bydlení, tak pro dlouhodobý pronájem
• Bytový dům v roce 2016 kompletně revitalizován
• 3-fázová elektřina
Lokalita
Horácké náměstí patří mezi velmi oblíbené části Řečkovic. Lokalita nabízí kompletní občanskou vybavenost, dostatek zeleně, dobré parkování v okolí domu a výbornou dostupnost do centra Brna městskou hromadnou dopravou.
| Cena: | 7 900 000 Kč |
| Poznámka: | + provize RK |
| Dispozice/podlahová plocha: | 3+kk/69 m² |
| Číslo zakázky: | REALITYMIX-N08739 |
Podrobné informace
- Dispozice bytu: 3+kk
- Číslo podlaží v domě: 3
- Počet podlaží objektu: 12
- Celková podlahová plocha: 69 m²
- Druh objektu: panelová
- Stav objektu: velmi dobrý
- Vlastnictví: osobní
- Balkon: 3 m²
- Lodžie: 3 m²
- Sklep: 2 m²
- Vybaveno: ano
- Umístění objektu: klidná část obce
- Doprava: MHD
- Energetická náročnost budovy: C - Úsporná
- Ukazatel energetické náročnosti budovy: 92 kWh/m²
- Energetický ukazatel podle vyhlášky: č. 264/2020 Sb.
Právní rádce
-
Detail
V tomto článku shrneme nejdůležitější věci, které byste si měli promyslet, pokud se chystáte prodat svou nemovitost a chcete, abyste s kupujícím nemusel následně řešit vzniklé problémy.
Jako prodávající nesete rizika spojená nejen se samotným obchodem, ale i se stavem nemovitosti v době prodeje a pro minimalizaci rizik, je dobré se zamyslet nad uvedenými oblastmi.
-
Detail
Realitní makléř má své nezastupitelné místo v realitním obchodu. Realitním makléřem nemyslím nevzdělané jelito, které absolvovalo dvoudenní školení a ví, jak se nahraje inzerát na inzertní portál.
Realitním makléřem, který se Vám skutečně vyplatí, je zkušený profesionál, který je schopen Vám dobře poradit jak prodat za co nejvíc a s nejmenším rizikem a hlavně je Vás schopen obratně provést celým realitním obchodem.
Prodáváte nemovitost a potřebujete zjistit její reálnou hodnotu?
Zjistit reálnou cenuVývoj průměrné ceny za m2 v lokalitě Brno-město
Prodáváte nemovitost a potřebujete zjistit její reálnou hodnotu?
Zjistit reálnou cenuMapa
Podobné nemovitosti
Prodej bytu, 3+kk, 64 m²
Křižíkova, Brno-Královo Pole, Brno, Brno-město
7 750 000 Kč
Prodej bytu, 3+kk, 56 m²
Kuldova, Brno-Židenice, Brno, Brno-město
6 990 000 Kč
Prodej bytu, 3+kk, 95 m²
Merhautova, Brno-sever, Brno, Brno-město
8 199 000 Kč
Prodej bytu, 3+kk, 70 m²
Netušilova, Brno-sever, Brno, Brno-město
8 490 000 Kč