Prodej - chata/rekreační objekt, 127 m²
Sokolská, Čerčany, Benešov
RezervovánoProdej - chata/rekreační objekt, 127 m²
Sokolská, Čerčany, Benešov
RD 4+1/137m2 + terasa + jídelna + šatna, pozemek 796 m2. Čerčany, okr. Benešov
Rodinný dům 4+1 / 137 m2, se nachází na pozemku o celkové výměře 796 m2 v klidné a vyhledávané části obce Čerčany. Dům je ideálním domovem pro rodinu nebo kohokoli, kdo touží po životě mimo ruch velkoměsta.
Dispozice domu
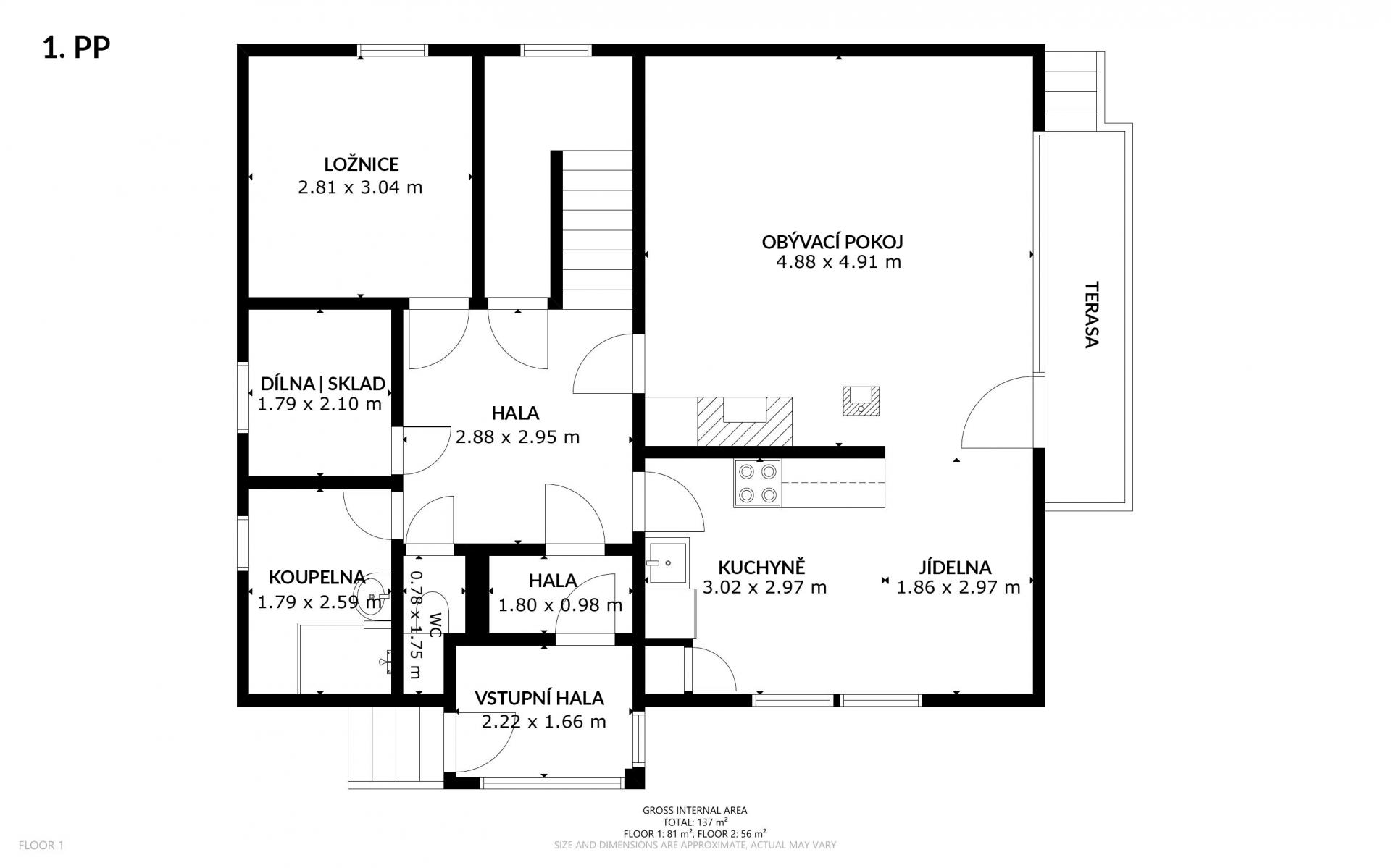
Dům má velmi praktické dispoziční řešení, rozložené do dvou nadzemních podlaží:
Přízemí (81 m2) zahrnuje prostorný obývací pokoj 24 m2 , na který navazuje jídelní kout a kuchyně 14,5 m2, samostatnou ložnici 8,50 m2, koupelnu, samostatné WC a vstupní halu s chodbami. Praktickou součástí je také menší místnost využitelná jako sklad nebo dílna.
V patře (56 m2) se nachází dvě prostorné ložnice 20 m2 a 15 m2, druhé WC, hala a půdní prostor, který lze využít k dalšímu rozšíření obytné plochy nebo jako úložný prostor.
Dům je z větší části podsklepený, napojený na obecní vodovod i kanalizaci a připravený k okamžitému nastěhování.
Technické informace
Typ stavby: montovaná
Fasáda: zateplená
Okna: plastová výborné termoizolační vlastnosti
Vytápění: kombinace přímotopů a vytápění tuhými palivy
Stav domu: dobrý, dům je ihned obyvatelný
Voda a kanalizace: napojení na obecní řad
Elektřina: 230/400 V
Orientace: zahrada a terasa orientovány na jihozápad
Na pozemku se dále nachází samostatná dílna a kůlna, které nabízí široké možnosti využití ať už pro kutily, skladování sportovního vybavení, nebo jako menší domácí dílna.
Zahrada je svažitá, plně oplocená, udržovaná, se vzrostlými stromy a keři. K dispozici je i zpevněná terasa ideální pro letní grilování nebo odpočinek.
Lokalita, kterou si zamilujete
Čerčany jsou malebnou středočeskou obcí rozkládající se přímo u řeky Sázavy. Okolí je vyhledávané pro rybaření, vodní sporty, turistiku i cykloturistiku. Lesy, louky a říční zákoutí v okolí nabízí nespočet příležitostí k aktivnímu i pasivnímu odpočinku.
Obec je zároveň plně občansky vybavená najdete zde např.:
Zdravotní středisko a lékárnu
Mateřskou i základní školu
Obchody, restaurace, kavárny
Poštu, knihovnu, kino
Výborné vlakové spojení do Prahy každých 30 minut
Rychlé napojení na D1 (exit Mirošovice) do Prahy autem cca 25 minut
Tento dům je ideální volbou pro rodinu, která hledá prostorné a klidné bydlení v přírodě, a přitom s výbornou dostupností do hlavního města.
| Cena: | Rezervováno |
| Číslo zakázky: | REALITYMIX-121 |
Podrobné informace
- Zastavěná plocha: 120 m²
- Užitná plocha: 127 m²
- Plocha parcely: 796 m²
- Druh objektu: montovaná
- Stav objektu: dobrý
- Počet podlaží objektu: 1
- Umístění objektu: klidná část obce
- Doprava: vlak, dálnice, silnice, autobus
- Elektřina: Elektro - 230 V, Elektro - 400 V
- Voda: Zdroj pro celý objekt
- Telekomunikace: Internet
- Topení: Lokální - tuhá paliva
- Odpad: Kanalizace
- Ostatní rozvody: Kabelová televize
Právní rádce
-
Detail
V tomto článku shrneme nejdůležitější věci, které byste si měli promyslet, pokud se chystáte prodat svou nemovitost a chcete, abyste s kupujícím nemusel následně řešit vzniklé problémy.
Jako prodávající nesete rizika spojená nejen se samotným obchodem, ale i se stavem nemovitosti v době prodeje a pro minimalizaci rizik, je dobré se zamyslet nad uvedenými oblastmi.
-
Detail
Realitní makléř má své nezastupitelné místo v realitním obchodu. Realitním makléřem nemyslím nevzdělané jelito, které absolvovalo dvoudenní školení a ví, jak se nahraje inzerát na inzertní portál.
Realitním makléřem, který se Vám skutečně vyplatí, je zkušený profesionál, který je schopen Vám dobře poradit jak prodat za co nejvíc a s nejmenším rizikem a hlavně je Vás schopen obratně provést celým realitním obchodem.