Prodej bytu, 3+1, 176 m²
Alšova, Česká Lípa
RezervovánoProdej bytu, 3+1, 176 m²
Alšova, Česká Lípa
Byt 3+1 90m2, se zahradou a garáží
Dům je již na katastru rozdělen na samostatné bytové jednotky.
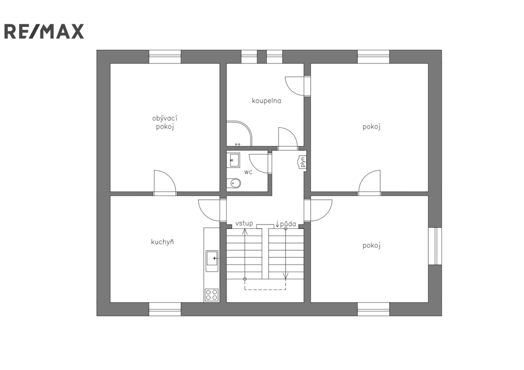
Byt je v udržovaném stavu, nově vymalovaný a vybavený plastovými okny. Je kompletně vyklizen, včetně odstranění starých koberců, a je tak připraven jak k okamžitému zabydlení, tak k případné rekonstrukci podle představ nového majitele. Součástí vybavení je kuchyňská linka včetně sporáku.K dispozici je sprchový kout, samostatné WC v bytě a další WC v rámci soukromého schodiště. Dispozice nabízí dostatek prostoru i pro rodinné bydlení.
Sklep o výměře 56 m² je rozdělen do několika místností, což umožňuje jeho využití jak pro pohodlné uskladnění věcí, tak i pro vybudování dílny či jiného praktického zázemí.
Velkou přidanou hodnotou je celý půdní prostor patřící k bytu. Díky přístupu po schodech je možné po rekonstrukci podkroví výrazně zvětšit obytnou plochu a vytvořit další pokoje.
K bytu náleží oddělená, oplocená část zahrady, která poskytuje absolutní soukromí pro relaxaci, posezení či pěstování. Na pozemku je dále samostatná garáž pro jedno vozidlo.
Ve vile se nacházejí pouze dvě bytové jednotky a panují zde velmi dobré sousedské vztahy. Druhý spolumajitel je ochotný spolupracovat na údržbě domu, například na budoucí realizaci nové fasády. Díky zcela samostatným vstupům, které jsou umístěny na opačných stranách domu, však není nutné se s druhým sousedem vůbec potkávat, pokud si to nový majitel nebude přát.
Hlavní přednosti nemovitosti
- 3+1, 90 m² ve vile
- samostatný vstup a soukromé schodiště
- sklep 56 m²
- vlastní oplocená zahrada
- garáž na pozemku
- celý půdní prostor náležející k bytu – možnost rozšíření obytné plochy
- nová plastová okna, nová výmalba
- dům je na katastru již rozdělen na bytové jednotky
- výborné sousedské vztahy
Tato nemovitost je ideální pro ty, kteří hledají bydlení v klidné lokalitě nedaleko centra, se skvělou dostupností do města, a chtějí užívat komfort bytu, ale zároveň získat životní styl srovnatelný s rodinným domem – a to vše za cenu běžných bytů. Prodávající si vyhrazuje právo vybrat kupujícího na základě jím zvolených kritérií.
| Cena: | Rezervováno |
| Dispozice/podlahová plocha: | 3+1/176 m² |
| Číslo zakázky: | REALITYMIX-428664 |
Podrobné informace
- Dispozice bytu: 3+1
- Číslo podlaží v domě: 2
- Počet podlaží objektu: 2
- Užitná plocha: 90 m²
- Celková podlahová plocha: 176 m²
- Druh objektu: smíšená
- Stav objektu: dobrý
- Vlastnictví: osobní
- Sklep: 56 m²
- Umístění objektu: klidná část obce
- Doprava: vlak, silnice, MHD, autobus
- Elektřina: Elektro - 230 V
- Voda: Voda - dálkový vodovod
- Plyn: Plynovod
- Odpad: Kanalizace
- Energetická náročnost budovy: G - Mimořádně nehospodárná
- Energetický ukazatel podle vyhlášky: č. 264/2020 Sb.
Právní rádce
-
Detail
V tomto článku shrneme nejdůležitější věci, které byste si měli promyslet, pokud se chystáte prodat svou nemovitost a chcete, abyste s kupujícím nemusel následně řešit vzniklé problémy.
Jako prodávající nesete rizika spojená nejen se samotným obchodem, ale i se stavem nemovitosti v době prodeje a pro minimalizaci rizik, je dobré se zamyslet nad uvedenými oblastmi.
-
Detail
Realitní makléř má své nezastupitelné místo v realitním obchodu. Realitním makléřem nemyslím nevzdělané jelito, které absolvovalo dvoudenní školení a ví, jak se nahraje inzerát na inzertní portál.
Realitním makléřem, který se Vám skutečně vyplatí, je zkušený profesionál, který je schopen Vám dobře poradit jak prodat za co nejvíc a s nejmenším rizikem a hlavně je Vás schopen obratně provést celým realitním obchodem.