Prodej bytu, 1+kk, 48 m²
Rudolfovská tř, České Budějovice
4 683 160 KčProdej bytu, 1+kk, 48 m²
Rudolfovská tř, České Budějovice
Investiční byty v nové cihlové rezidenci!
Prodej bytů v novém komorním projektu. Nabízíme vám jedinečnou příležitost vybrat si z nových bytů umístěných v 1. patře a zajistit si tak investici s vysokým potenciálem zhodnocení ještě před dokončením stavby. Výstavba je v plném proudu a předpokládaný termín dokončení je stanoven do konce dubna 2026 (v případě, že nenastanou nepředvídatelné komplikace).
Pro koho jsou byty ideální?
Pro investory: byt je ideální pro uložení financí s následným pronájmem.
Pro páry i jednotlivce: byty (48 a 56 m²) nabízejí dostatek prostoru pro komfortní život, stále však s nízkými provozními náklady novostavby.
Startovací bydlení: Skvělá příležitost pořídit si první vlastní nemovitost v kvalitním cihlovém domě.
Aktuální nabídka volných bytů v 1. patře:
Buďte první, kdo si vybere dispozici, která nejlépe odpovídá vašim představám:
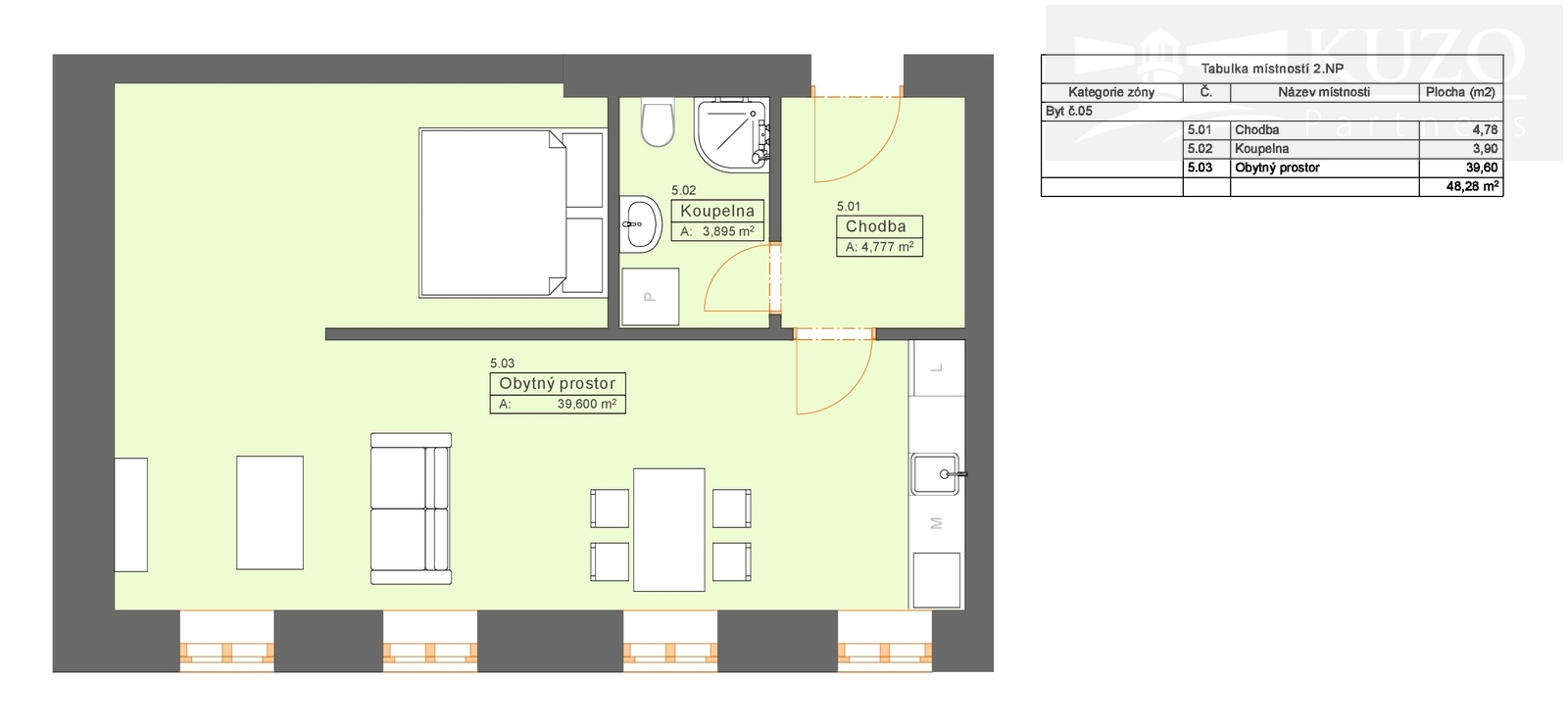
Byt č. 5 – výměra 48,28 m² – cena 4.683.160 Kč
(k dispozici také byt v prvním patře č. 6 – výměra 56,29 m² (výměra obsahuje terasu 14m2) a byty v podkroví 2+kk byt č.9 (42,83m2) ,. 1+kk byt č. 11 (32,57 m2) a byt č. 10 – dispozice 1+kk s velkou ložnicí v nice téměř 2+kk (41,36 m2).)
Všechny ceny jsou konečné a zahrnují kompletní právní servis i provizi RK.
Platební podmínky: 30 % ceny splatných po rezervaci, 70 % po podpisu Kupní smlouvy (lze individuálně domluvit podmínky).
Klíčové parametry projektu:
Konstrukce: Poctivý cihlový dům zaručující skvělé tepelně-izolační vlastnosti a dlouhou životnost.
PENB: Energetická náročnost budovy: Třída C – Úsporná.
Parkování: Možnost dokoupení parkovacího stání na soukromém parkovišti u domu (celkem 5 míst). Platí do vyprodání volných míst.
Lokalita, která má vše:
Byty se nachází ve strategicky výhodné lokalitě, která kombinuje klid s perfektní dostupností.
Centrum obce: Pouhých 500 metrů, tedy pár minut chůze.
Dopravní dostupnost: Vlakové nádraží vzdálené jen 400 metrů.
Proč investovat právě teď?
Koupě nemovitosti ve fázi výstavby s sebou přináší nejlepší výběr a jistotu zhodnocení investice ihned po kolaudaci. Buďte o krok napřed.
Získejte kompletní informace:
Zaujala Vás tato nabídka? Pro bližší informace, detailní podklady k jednotlivým bytům a domluvení osobní schůzky neváhejte kontaktovat naši realitní kancelář.
Domluvte si schůzku a vyberte si ten nejlepší byt pro své plány!
________________________________________
Upozornění: Fotografie označené hvězdičkou (*) v pravém dolním rohu jsou vizualizovány pomocí umělé inteligence a slouží pouze pro ilustraci možného budoucího stavu.
| Cena: | 4 683 160 Kč |
| Poznámka: | včetně služeb RK a právního servisu |
| Datum k nastěhování: | 01.01.2026 |
| Dispozice/podlahová plocha: | 1+kk/48 m² |
| Číslo zakázky: | REALITYMIX-22108 |
Podrobné informace
- Dispozice bytu: 1+kk
- Číslo podlaží v domě: 2
- Počet podlaží objektu: 3
- Užitná plocha: 48 m²
- Celková podlahová plocha: 48 m²
- Druh objektu: smíšená
- Stav objektu: ve výstavbě (hrubá stavba)
- Vlastnictví: osobní
- Umístění objektu: centrum obce
- Elektřina: Elektro - 230 V
- Voda: Voda - dálkový vodovod
- Energetická náročnost budovy: C - Úsporná
- Energetický ukazatel podle vyhlášky: č. 264/2020 Sb.
Právní rádce
-
Detail
V tomto článku shrneme nejdůležitější věci, které byste si měli promyslet, pokud se chystáte prodat svou nemovitost a chcete, abyste s kupujícím nemusel následně řešit vzniklé problémy.
Jako prodávající nesete rizika spojená nejen se samotným obchodem, ale i se stavem nemovitosti v době prodeje a pro minimalizaci rizik, je dobré se zamyslet nad uvedenými oblastmi.
-
Detail
Realitní makléř má své nezastupitelné místo v realitním obchodu. Realitním makléřem nemyslím nevzdělané jelito, které absolvovalo dvoudenní školení a ví, jak se nahraje inzerát na inzertní portál.
Realitním makléřem, který se Vám skutečně vyplatí, je zkušený profesionál, který je schopen Vám dobře poradit jak prodat za co nejvíc a s nejmenším rizikem a hlavně je Vás schopen obratně provést celým realitním obchodem.
Prodáváte nemovitost a potřebujete zjistit její reálnou hodnotu?
Zjistit reálnou cenuVývoj průměrné ceny za m2 v lokalitě České Budějovice
Prodáváte nemovitost a potřebujete zjistit její reálnou hodnotu?
Zjistit reálnou cenuMapa
Podobné nemovitosti
Prodej bytu, 1+kk, 746 m²
Branišovská, České Budějovice 2, České Budějovice
3 593 400 Kč
Prodej bytu, 1+kk, 32 m²
Branišovská, České Budějovice 2, České Budějovice
3 310 000 Kč
Prodej bytu, 1+kk, 33 m²
Lipenská, České Budějovice 3, České Budějovice
4 499 000 Kč
Prodej bytu, 1+kk, 36 m²
Rudolfovská tř, České Budějovice
3 672 000 Kč