Prodej bytu, 2+kk, 66 m²
České Vrbné, České Budějovice 2, České Budějovice
6 450 000 KčProdej bytu, 2+kk, 66 m²
České Vrbné, České Budějovice 2, České Budějovice
Prodej 2+kk 52 m² + lodžie 11 m² + parkování
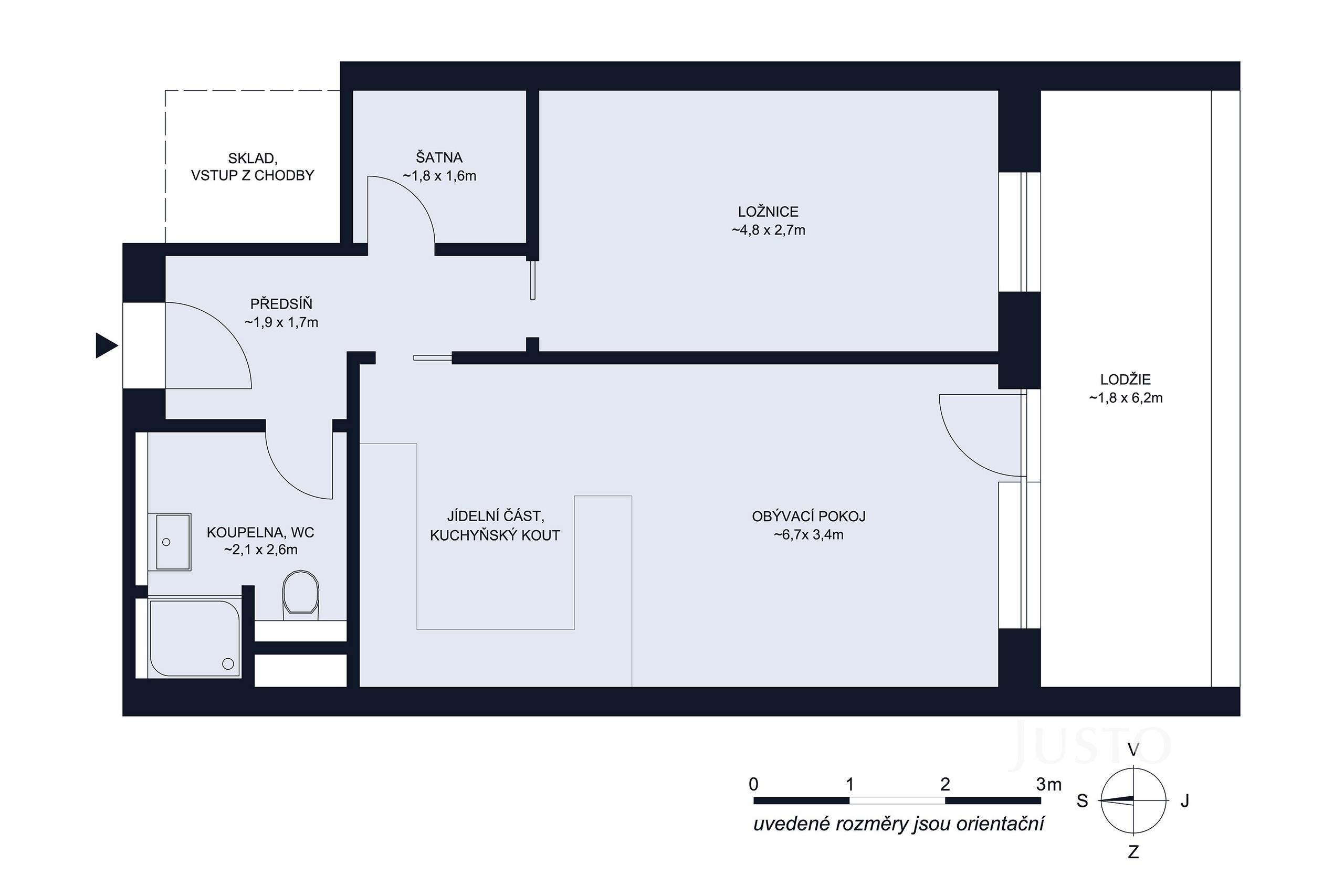
Ve výhradním zastoupení majitelky nabízíme k prodeji moderní byt 2+kk o ploše 52,4 m² (49,15 m² má byt, 3,25 m² sklep), navíc s prostornou lodžií 11,15 m² a vlastním parkovacím stáním v klidné části Českých Budějovic - v Českém Vrbném.
Byt se nachází v posledním, tedy 6. podlaží novostavby cihlového domu zkolaudovaného v roce 2023. Dispozice bytu klade důraz na úložné prostory – obývací pokoj s kuchyňským koutem a jídelní částí tvoří centrální prostor pro odpočinek. Z předsíně navazuje ložnice, samostatná šatna a koupelna se sprchovým koutem a toaletou. V předsíni si odložíte kabáty, boty a využijete praktické sezení s úložnými prostory na míru.
Moderní kuchyňská linka je kompletně vybavena všemi spotřebiči – lednicí, indukční varnou deskou, troubou, mikrovlnkou a myčkou. Interiér dává důraz na dřevěné dekory a kvalitní provedení detailů. Majitelka byt vybavila vestavěným nábytkem. V obývací části můžete své oblíbené pořady sledovat na velké TV. Z obýváku vedou dveře na jižně orientovanou lodžii s výhledem na okolní zástavbu.
Pro uskladnění sezónních věcí nebo sportovního vybavení slouží sklep přímo na patře. Auto zaparkujete na vlastním parkovacím stání u domu. Výhodou je také bezbariérový přístup a moderní výtah.
V docházkové vzdálenosti od bytu najdete hypermarket Globus s nákupním centrem Géčko, další obchody jako Bauhaus či Kaufland, restaurace, lékařský dům, ale i zastávky MHD. Výborné dopravní spojení do centra města i na hlavní tahy zaručuje pohodlný životní styl jak pro jednotlivce, tak pro páry. Na procházku můžete k oblíbeným Vrbenským rybníkům.
Chcete se přijít podívat na prohlídku bytu? Potřebujete doplnit informace a zodpovědět dotazy? Vyplňte prosím formulář u inzerátu. Dostanete odpověď s veškerými informacemi do 20 minut na e-mail, který uvedete. (Zkontrolujte si, prosím, i složky "Spam" a "Nevyžádaná pošta". Občas se tam e-mail může zatoulat.)
| Cena: | 6 450 000 Kč |
| Datum k nastěhování: | 01.05.2026 |
| Dispozice/podlahová plocha: | 2+kk/66 m² |
| Číslo zakázky: | REALITYMIX-J12434 |
Podrobné informace
- Bezbariérový byt: ano
- Dispozice bytu: 2+kk
- Číslo podlaží v domě: 6
- Počet podlaží objektu: 6
- Užitná plocha: 52 m²
- Celková podlahová plocha: 66 m²
- Druh objektu: cihlová
- Stav objektu: novostavba
- Stáří objektu: 2023
- Vlastnictví: osobní
- Lodžie: 11 m²
- Sklep: 3 m²
- Umístění objektu: klidná část obce
- Doprava: vlak, silnice, MHD, autobus
- Elektřina: Elektro - 230 V, Elektro - 400 V
- Topení: Ústřední - dálkové
- Energetická náročnost budovy: B - Velmi úsporná
- Ukazatel energetické náročnosti budovy: 78 kWh/m²
- Energetický ukazatel podle vyhlášky: č. 264/2020 Sb.
Právní rádce
-
Detail
V tomto článku shrneme nejdůležitější věci, které byste si měli promyslet, pokud se chystáte prodat svou nemovitost a chcete, abyste s kupujícím nemusel následně řešit vzniklé problémy.
Jako prodávající nesete rizika spojená nejen se samotným obchodem, ale i se stavem nemovitosti v době prodeje a pro minimalizaci rizik, je dobré se zamyslet nad uvedenými oblastmi.
-
Detail
Realitní makléř má své nezastupitelné místo v realitním obchodu. Realitním makléřem nemyslím nevzdělané jelito, které absolvovalo dvoudenní školení a ví, jak se nahraje inzerát na inzertní portál.
Realitním makléřem, který se Vám skutečně vyplatí, je zkušený profesionál, který je schopen Vám dobře poradit jak prodat za co nejvíc a s nejmenším rizikem a hlavně je Vás schopen obratně provést celým realitním obchodem.