Prodej bytu, 4+kk, 186 m²
Ant. Barcala, České Budějovice 2, České Budějovice
12 375 000 KčProdej bytu, 4+kk, 186 m²
Ant. Barcala, České Budějovice 2, České Budějovice
Prodej bytu 4KK České Budějovice , dvě garažová parkovací stání.
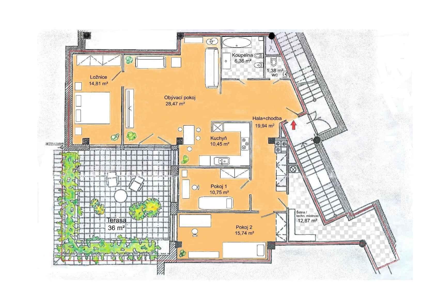
Dům je orientován na jihozápad a na každém patře je pouze jeden byt. Byt se nachází ve třetím nadzemním podlaží ze čtyř. Obývací pokoj o rozměru 28,47 m², kuchyně a jídelna o rozměru 10,45 m², ložnice 14,81 m², dva dětské pokoje 10,75 a 15,74 m², prostorná chodba s vestavenou skříni 19,94 m2, samostatné WC 1,38 m2 s umyvadlem a ruční sprškou, koupelna 6,36 m2 s možnosti zapnout podlahové vytápění. Byt má dále velkou šatnu/technickou místnost 12,87 m² s přípravou pro pračku a sušičku. Dva dětské pokoje se nacházejí v rohové části bytu, vzdálené od ložnice, což poskytuje vzájemné soukromí.
Z obývacího pokoje i ložnice je přímý vstup na terasu 36 m². Terasa má vodu a elektřinu. Je ideální pro pohodlné posezení a grilování a vytváří tak prostorný obytný prostor. Všechna okna nabízejí krásný výhled do vnitrobloku a přírodu. Není slyšet žádný městský hluk.
K bytu náleží dvě garážové parkovací stání 14,4 m2 a 15,6 m2.
V mezipatře, v blízkosti bytu, je umístěn sklep (3 m2), v přízemí je kočárkárna/kolárna.
Ideální pro rodinu, která preferuje prostorné bydlení, klid a blízkost přírody.
Byt prošel kompletní rekonstrukcí, která zahrnovala novou koupelnu, výměnu všech oken s novými vnitřními žaluzii, nové radiátory v celém bytě, nové dveře a kompletně vyměněná podlaha.
V blízkosti najdete zastávku veřejné dopravy, mateřskou školku a školu, obchody (Norma, Penny, Albert, Billa) a další služby. Okolí nabízí klidné prostředí s možnosti procházek v lesoparku, volnočasových aktivit a cyklostezek. Vynikající okolní infrastruktura činí tuto nabídku mimořádně atraktivní.
| Cena: | 12 375 000 Kč |
| Dispozice/podlahová plocha: | 4+kk/186 m² |
| Číslo zakázky: | REALITYMIX-N00919 |
Podrobné informace
- Dispozice bytu: 4+kk
- Číslo podlaží v domě: 3
- Počet podlaží objektu: 4
- Užitná plocha: 120 m²
- Celková podlahová plocha: 186 m²
- Druh objektu: cihlová
- Stav objektu: velmi dobrý
- Vlastnictví: osobní
- Sklep: 3 m²
- Terasa: 36 m²
- Umístění objektu: klidná část obce
- Doprava: MHD
- Elektřina: Elektro - 230 V
- Energetická náročnost budovy: C - Úsporná
- Energetický ukazatel podle vyhlášky: č. 264/2020 Sb.
Právní rádce
-
Detail
V tomto článku shrneme nejdůležitější věci, které byste si měli promyslet, pokud se chystáte prodat svou nemovitost a chcete, abyste s kupujícím nemusel následně řešit vzniklé problémy.
Jako prodávající nesete rizika spojená nejen se samotným obchodem, ale i se stavem nemovitosti v době prodeje a pro minimalizaci rizik, je dobré se zamyslet nad uvedenými oblastmi.
-
Detail
Realitní makléř má své nezastupitelné místo v realitním obchodu. Realitním makléřem nemyslím nevzdělané jelito, které absolvovalo dvoudenní školení a ví, jak se nahraje inzerát na inzertní portál.
Realitním makléřem, který se Vám skutečně vyplatí, je zkušený profesionál, který je schopen Vám dobře poradit jak prodat za co nejvíc a s nejmenším rizikem a hlavně je Vás schopen obratně provést celým realitním obchodem.
Prodáváte nemovitost a potřebujete zjistit její reálnou hodnotu?
Zjistit reálnou cenuVývoj průměrné ceny za m2 v lokalitě České Budějovice
Prodáváte nemovitost a potřebujete zjistit její reálnou hodnotu?
Zjistit reálnou cenuMapa
Podobné nemovitosti
Prodej bytu, 4+kk, 151 m²
Vrbenská, České Budějovice 4, České Budějovice
11 690 000 Kč
Prodej bytu, 4+kk, 746 m²
Branišovská, České Budějovice 2, České Budějovice
8 957 000 Kč
Prodej bytu, 4+kk, 96 m²
Bohumila Böhma, České Budějovice 7, České Budějovice
9 900 000 Kč
Prodej bytu, 4+kk, 96 m²
Bohumila Böhma, České Budějovice 7, České Budějovice
9 700 000 Kč