Prodej bytu, 3+1, 98 m²
Ropická, Dolní Žukov, Karviná
Cena na vyžádáníProdej bytu, 3+1, 98 m²
Ropická, Dolní Žukov, Karviná
Byt 3+1 98 m², pozemek 416 m², Dolní Žukov, Český Těšín
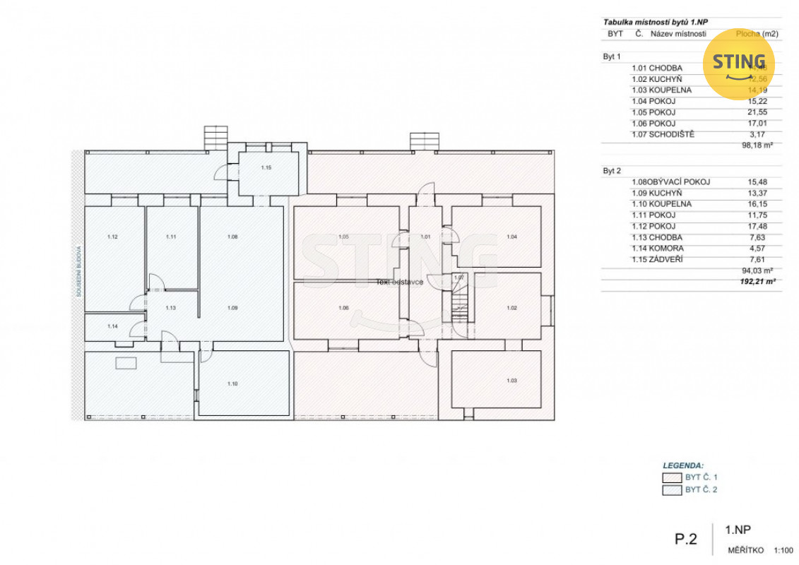
Nabízíme k prodeji nadstandardně prostorný byt o dispozici 3+1 a užitné ploše 98 m², umístěný v rodinném domě, ve kterém se nacházejí pouze dvě bytové jednotky. Nemovitost je situována v klidné a vyhledávané části Dolní Žukov.
Byt disponuje dvěma samostatnými vchody, což zajišťuje maximální pohodlí a flexibilitu využití. K jednotce náleží dvě terasy, ideální pro relax i posezení s rodinou, dále garáž a parkovací stání, které výrazně zvyšují komfort každodenního bydlení. Součástí nabídky je pozemek o výměře 416 m² určený k užívání k tomuto bytu a zároveň společný podíl na pozemku o celkové výměře 866 m².
Dispozice 3+1 je řešena velmi prakticky a nabízí prostornou vstupní chodbu, tři samostatné neprůchozí pokoje, samostatnou kuchyni a velmi prostornou koupelnu, která poskytuje nadstandardní pohodlí.
Rodinný dům i bytová jednotka prošly kompletní rekonstrukcí, díky které je nemovitost připravena k okamžitému užívání bez nutnosti dalších investic. Byt má samostatné měření energií.
Tato nemovitost je ideální volbou pro ty, kteří hledají byt s parametry rodinného domu, dostatek prostoru, vlastní venkovní zázemí, soukromí a parkování, a zároveň chtějí zůstat v dosahu města a veškeré občanské vybavenosti.
Pro více informací nebo domluvení prohlídky mě neváhejte kontaktovat.
| Cena: | Cena na vyžádání |
| Poznámka: | cena v kanceláři |
| Datum k nastěhování: | 05.01.2026 |
| Dispozice/podlahová plocha: | 3+1/98 m² |
| Číslo zakázky: | REALITYMIX-134276 |
Podrobné informace
- Bezbariérový byt: ano
- Dispozice bytu: 3+1
- Číslo podlaží v domě: 1
- Počet podlaží objektu: 2
- Užitná plocha: 98 m²
- Celková podlahová plocha: 98 m²
- Druh objektu: cihlová
- Stav objektu: po rekonstrukci
- Vlastnictví: osobní
- Druh bytu: Byt v rodinném domě
- Umístění objektu: klidná část obce
- Energetická náročnost budovy: G - Mimořádně nehospodárná
- Energetický ukazatel podle vyhlášky: č. 148/2007 Sb.
Právní rádce
-
Detail
V tomto článku shrneme nejdůležitější věci, které byste si měli promyslet, pokud se chystáte prodat svou nemovitost a chcete, abyste s kupujícím nemusel následně řešit vzniklé problémy.
Jako prodávající nesete rizika spojená nejen se samotným obchodem, ale i se stavem nemovitosti v době prodeje a pro minimalizaci rizik, je dobré se zamyslet nad uvedenými oblastmi.
-
Detail
Realitní makléř má své nezastupitelné místo v realitním obchodu. Realitním makléřem nemyslím nevzdělané jelito, které absolvovalo dvoudenní školení a ví, jak se nahraje inzerát na inzertní portál.
Realitním makléřem, který se Vám skutečně vyplatí, je zkušený profesionál, který je schopen Vám dobře poradit jak prodat za co nejvíc a s nejmenším rizikem a hlavně je Vás schopen obratně provést celým realitním obchodem.