Prodej - nájemní dům, 350 m²
Soukenická, Chrudim II, Chrudim
32 250 000 KčProdej - nájemní dům, 350 m²
Soukenická, Chrudim II, Chrudim
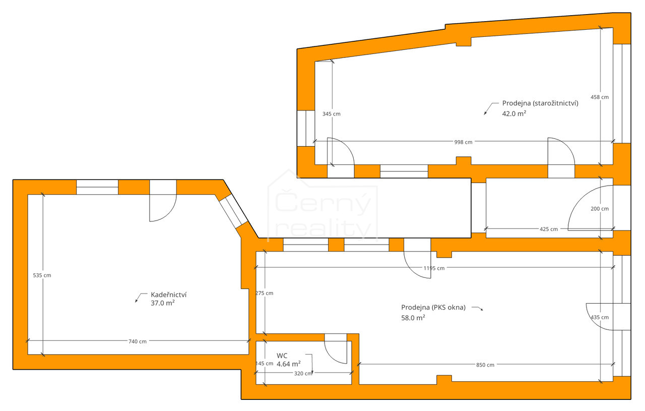
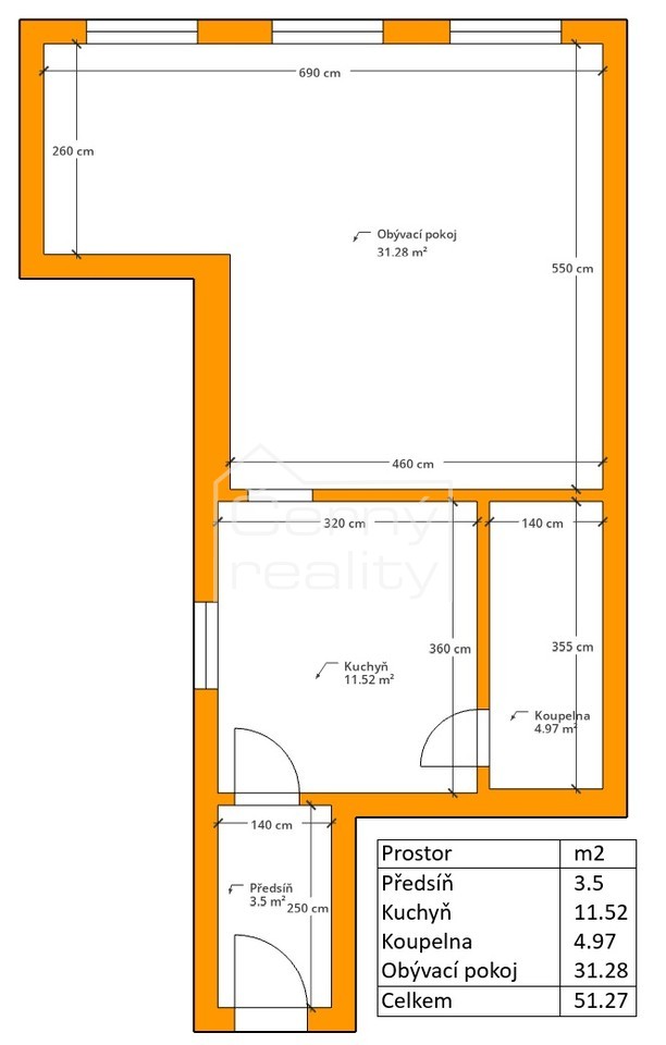
Prodej komerčního objektu - nájemního domu v centru Chrudimi, 3 byty (210 m2), 3 nebyty (140 m2)
| Cena: | 32 250 000 Kč |
| Datum k nastěhování: | 01.04.2026 |
| Číslo zakázky: | REALITYMIX-660 |
Podrobné informace
- Plocha parcely: 380 m²
- Terasa: 60 m²
- Umístění objektu: centrum obce
- Doprava: vlak, dálnice, MHD, autobus
- Občanská vybavenost: Škola, Školka, Zdravotnická zařízení, Pošta, Supermarket, Kompletní síť obchodů a služeb
- Elektřina: Elektro - 230 V
- Voda: Voda - dálkový vodovod
- Topení: Ústřední - plynové
- Odpad: Kanalizace
- Energetická náročnost budovy: E - Nehospodárná
- Ukazatel energetické náročnosti budovy: 258 kWh/m²
- Energetický ukazatel podle vyhlášky: č. 148/2007 Sb.
Právní rádce
-
Detail
V tomto článku shrneme nejdůležitější věci, které byste si měli promyslet, pokud se chystáte prodat svou nemovitost a chcete, abyste s kupujícím nemusel následně řešit vzniklé problémy.
Jako prodávající nesete rizika spojená nejen se samotným obchodem, ale i se stavem nemovitosti v době prodeje a pro minimalizaci rizik, je dobré se zamyslet nad uvedenými oblastmi.
-
Detail
Realitní makléř má své nezastupitelné místo v realitním obchodu. Realitním makléřem nemyslím nevzdělané jelito, které absolvovalo dvoudenní školení a ví, jak se nahraje inzerát na inzertní portál.
Realitním makléřem, který se Vám skutečně vyplatí, je zkušený profesionál, který je schopen Vám dobře poradit jak prodat za co nejvíc a s nejmenším rizikem a hlavně je Vás schopen obratně provést celým realitním obchodem.