Prodej - malý objekt/garáž
Dobelice, Znojmo
1 100 000 KčProdej - malý objekt/garáž
Dobelice, Znojmo
Prodej mobilheimu, mobilního domu 57 m2, Dobelice
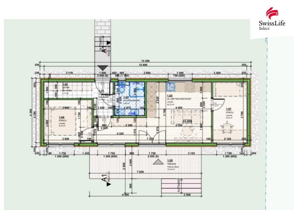
Nabízíme k prodeji modulový dům o dispozici 3+kk - šířka domu 4,3 m, délka 13,2 m. Dispozice: chodba, obývací pokoj s kuchyňským koutem, ložnice, dětský pokoj, šatna, koupelná s WC. Obývací pokoj a ložnice disponuje francouzským oknem, které slouží jako vstup na terasu nebo do zahrady. V domě jsou kvalitní okna s trojskly, rozvody elektřiny, vody a odpadu, příčky. Vnitřní dodělávky: podlahové krytiny, koupelna a WC, dveře a zárubně. Vnitřek domu je zateplený, zvenku zateplení chybí - polystyren k dodělání v ceně.
Dopravu + jeřáb můžeme zajistit (levně).
Dům je uskladněný v obci Dobelice, okr. Znojmo.
V případě zájmu můžeme doporučit vyzkoušené řemeslníky.
Neváhejte nás kontaktovat pro více informací či prohlídku.
| Cena: | 1 100 000 Kč |
| Číslo zakázky: | REALITYMIX-25133 |
Podrobné informace
- Druh objektu: montovaná
- Stav objektu: novostavba
- Energetická náročnost budovy: B - Úsporná
Právní rádce
-
Detail
V tomto článku shrneme nejdůležitější věci, které byste si měli promyslet, pokud se chystáte prodat svou nemovitost a chcete, abyste s kupujícím nemusel následně řešit vzniklé problémy.
Jako prodávající nesete rizika spojená nejen se samotným obchodem, ale i se stavem nemovitosti v době prodeje a pro minimalizaci rizik, je dobré se zamyslet nad uvedenými oblastmi.
-
Detail
Realitní makléř má své nezastupitelné místo v realitním obchodu. Realitním makléřem nemyslím nevzdělané jelito, které absolvovalo dvoudenní školení a ví, jak se nahraje inzerát na inzertní portál.
Realitním makléřem, který se Vám skutečně vyplatí, je zkušený profesionál, který je schopen Vám dobře poradit jak prodat za co nejvíc a s nejmenším rizikem a hlavně je Vás schopen obratně provést celým realitním obchodem.