Prodej bytu, 3+kk, 78 m²
Unhošťská, Hostivice, Praha-západ
8 790 000 KčProdej bytu, 3+kk, 78 m²
Unhošťská, Hostivice, Praha-západ
Prodej bytu 3+kk, 78m2, terasa, parkovací stání, zahrádka (SVJ), Unhošťská - Hostivice
Hledáte byt, kde je každý metr využitý s rozumem, světlo hraje hlavní roli a bydlení dává dlouhodobý smysl? Tento moderně řešený byt v Hostivici nabízí kombinaci pohodlí bytu a benefitů rodinného domu terasu, možnost užívání zahrádky, vlastní parkovací stání a klidné prostředí v jedné z nejžádanějších lokalit západně od Prahy.
Slunné obytné místnosti orientované na jih, promyšlené úložné prostory, dvě toalety, technická místnost, elektrické venkovní rolety i důraz na soukromí to vše vytváří harmonický domov pro páry i pro rodiny.
HLAVNÍ BENEFITY BYTU:
- Prostorný obývací pokoj s kuchyňským koutem o velikosti 30,8 m2 prostorný, vzdušný a přirozeně prosvětlený.
- Jižní orientace hlavních obytných místností dostatek denního světla po celý den.
- Terasa o velikosti 13,8 m2 ideální pro ranní kávu, posezení s přáteli i grilování.
- Možnost užívání zahrádky: k terase navazuje zahrada ve vlastnictví SVJ, kterou můžete využívat, aniž byste za zahradu hradili samostatné poplatky.
- Byt po povrchové rekonstrukci, připravený k okamžitému nastěhování nové podlahy a čerstvá výmalba.
- Elektrické venkovní rolety na všech oknech komfort, stínění, bezpečí i soukromí.
- Samostatná technická místnost (2,7 m2) s přívodem vody a odpadem pro pračku a sušičku.
- Dvě toalety praktické řešení pro rodinu i návštěvy.
- Připravené výklenky na vestavné skříně v ložnici, pokoji i předsíni.
- Vlastní parkovací místo přímo u domu + další parkovací možnosti v ulici nebo na velkém parkovišti přes ulici.
- Odhlučňovací stěna mezi domem a hlavní komunikací klidné bydlení bez ruchu.
- Nadstandardní sanita, kvalitní materiály a koupelna vybavená vířivkou.
TECHNICKÉ INFORMACE:
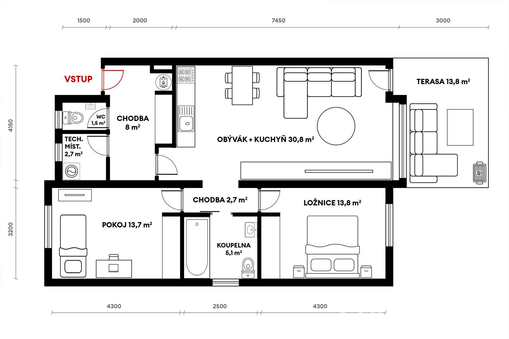
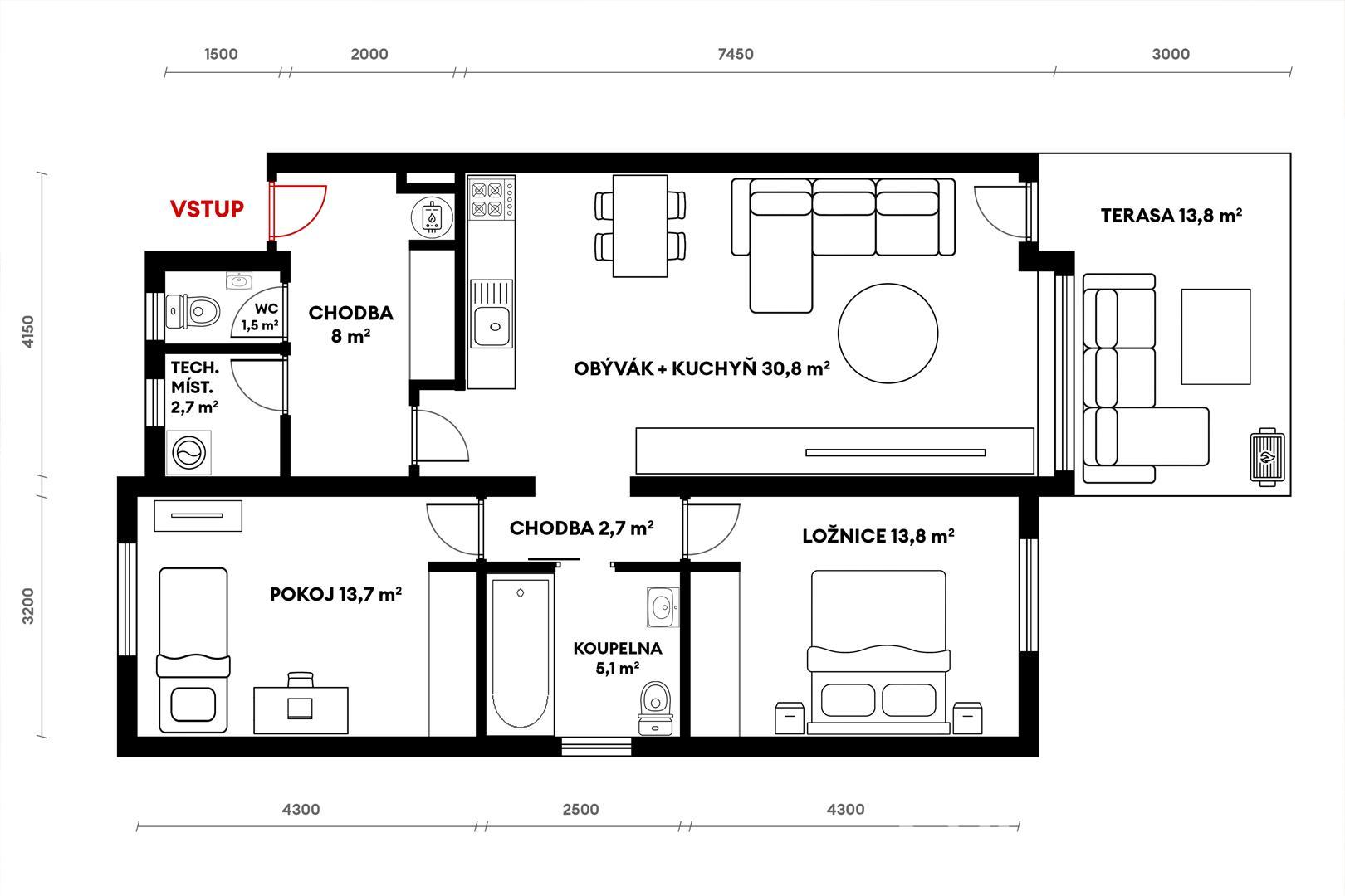
- Dispozice: 3+kk
- Podlahová plocha bytu: cca 78 m2
- Obývací pokoj s kuchyní: 30,8 m2
- Ložnice: 13,8 m2
- Pokoj: 13,7 m2
- Koupelna: 5,1 m2
- WC: 1,5 m2
- Technická místnost: 2,7 m2
- Chodby celkem: 10,7 m2
- Terasa: 13,8 m2
- Parkovací stání: 1 parkovací stání v ceně
- Zahrada: volně k dispozici
- Bezpečnostní čidla v bytě
- Sítě: elektřina, plyn, voda, kanalizace
- Vytápění a ohřev vody: kombinovaný plynový kotel s akumulační nádrží
- Měsíční domovní náklady včetně fondu oprav: 2.715,-Kč
Byt se prodává nezařízený. Součástí prezentace jsou však realistické vizualizace obývacího pokoje, ložnice, dětského pokoje i technické místnosti, které pomohou s představou finálního zařízení.
ŽIVOT V HOSTIVICI:
Hostivice dlouhodobě patří mezi nejoblíbenější města v okolí Prahy a nabízí ideální kombinaci klidu, bezpečí, přírody a kompletní občanské vybavenosti. Ráno si můžete vychutnat kávu na terase, děti mají možnost pobytu venku přímo u domu, a přitom jste během několika minut na Zličíně, v centru Prahy nebo naopak v lese či u Hostivických rybníků. Každodenní život zde přináší dostatek světla, prostoru a soukromí, společné chvíle v obývacím pokoji, klidné večery na terase a víkendové výlety do přírody, která je doslova na dosah. Lokalita zároveň nabízí školy, školky, obchody, restaurace i sportoviště v pěší dostupnosti, výbornou dopravní dostupnost autobusem i vlakem a bezpečné, klidné prostředí s přátelskou komunitou.
| Cena: | 8 790 000 Kč |
| Dispozice/podlahová plocha: | 3+kk/78 m² |
| Číslo zakázky: | REALITYMIX-133 |
Podrobné informace
- Dispozice bytu: 3+kk
- Číslo podlaží v domě: 1
- Počet podlaží objektu: 3
- Užitná plocha: 78 m²
- Celková podlahová plocha: 78 m²
- Druh objektu: cihlová
- Stav objektu: po rekonstrukci
- Vlastnictví: osobní
- Umístění objektu: klidná část obce
- Doprava: vlak, dálnice, silnice, MHD, autobus
- Elektřina: Elektro - 230 V, Elektro - 400 V
- Voda: Zdroj pro celý objekt
- Plyn: Individuální, Plynovod
- Topení: Ústřední - plynové
- Odpad: Kanalizace
- Energetická náročnost budovy: D - Nevyhovující
Právní rádce
-
Detail
V tomto článku shrneme nejdůležitější věci, které byste si měli promyslet, pokud se chystáte prodat svou nemovitost a chcete, abyste s kupujícím nemusel následně řešit vzniklé problémy.
Jako prodávající nesete rizika spojená nejen se samotným obchodem, ale i se stavem nemovitosti v době prodeje a pro minimalizaci rizik, je dobré se zamyslet nad uvedenými oblastmi.
-
Detail
Realitní makléř má své nezastupitelné místo v realitním obchodu. Realitním makléřem nemyslím nevzdělané jelito, které absolvovalo dvoudenní školení a ví, jak se nahraje inzerát na inzertní portál.
Realitním makléřem, který se Vám skutečně vyplatí, je zkušený profesionál, který je schopen Vám dobře poradit jak prodat za co nejvíc a s nejmenším rizikem a hlavně je Vás schopen obratně provést celým realitním obchodem.