Prodej - penzion, 778 m²
Hraběšice, Šumperk
7 500 000 KčProdej - penzion, 778 m²
Hraběšice, Šumperk
Prodej pensionu s restaurací - Hraběšice
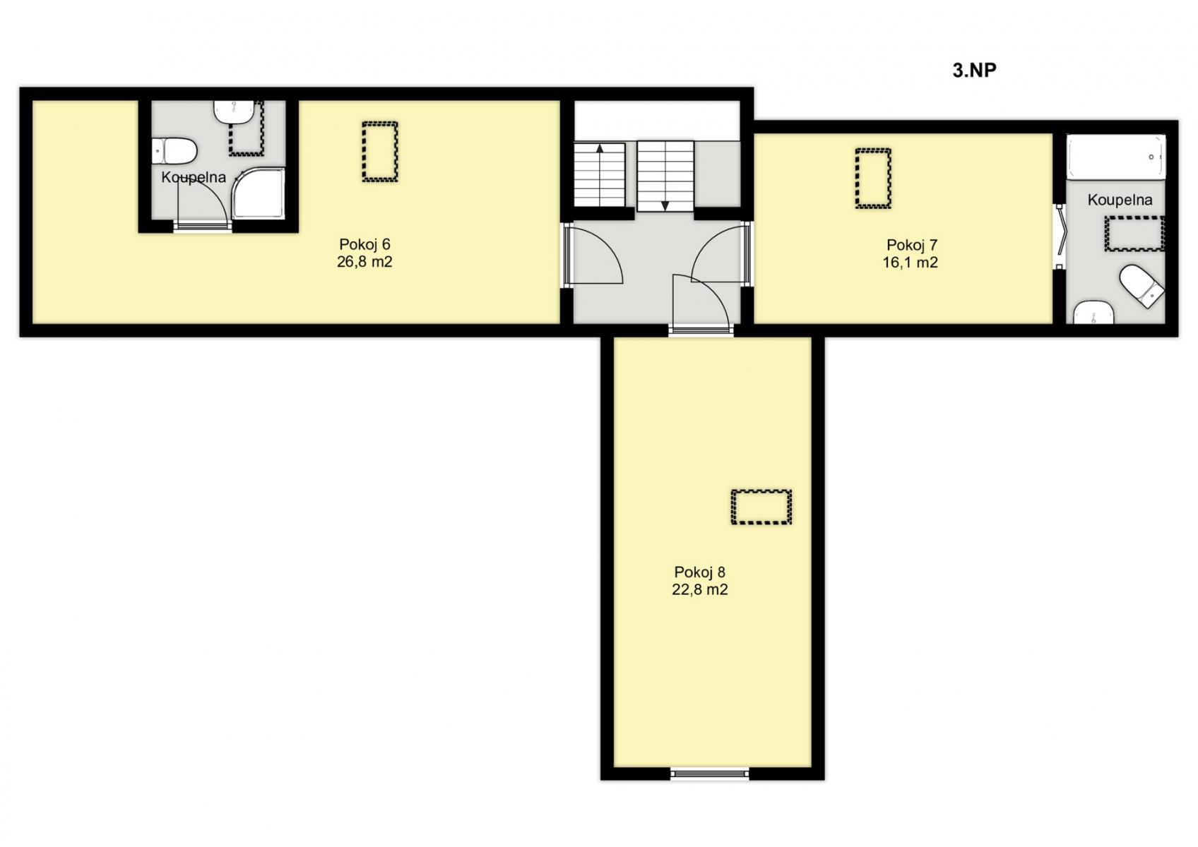
dovoluji si Vám nabídnout ke koupi stylový horský pension U Jelena, který se nachází na okraji malebné vesnice Hraběšice. Pension nabízí 9 pokojů s celkovou ubytovací kapacitou 35 pevných lůžek s možností 8 přistýlek. Všechny pokoje mají vlastní sociální zázemí, TV, Wi-fi.
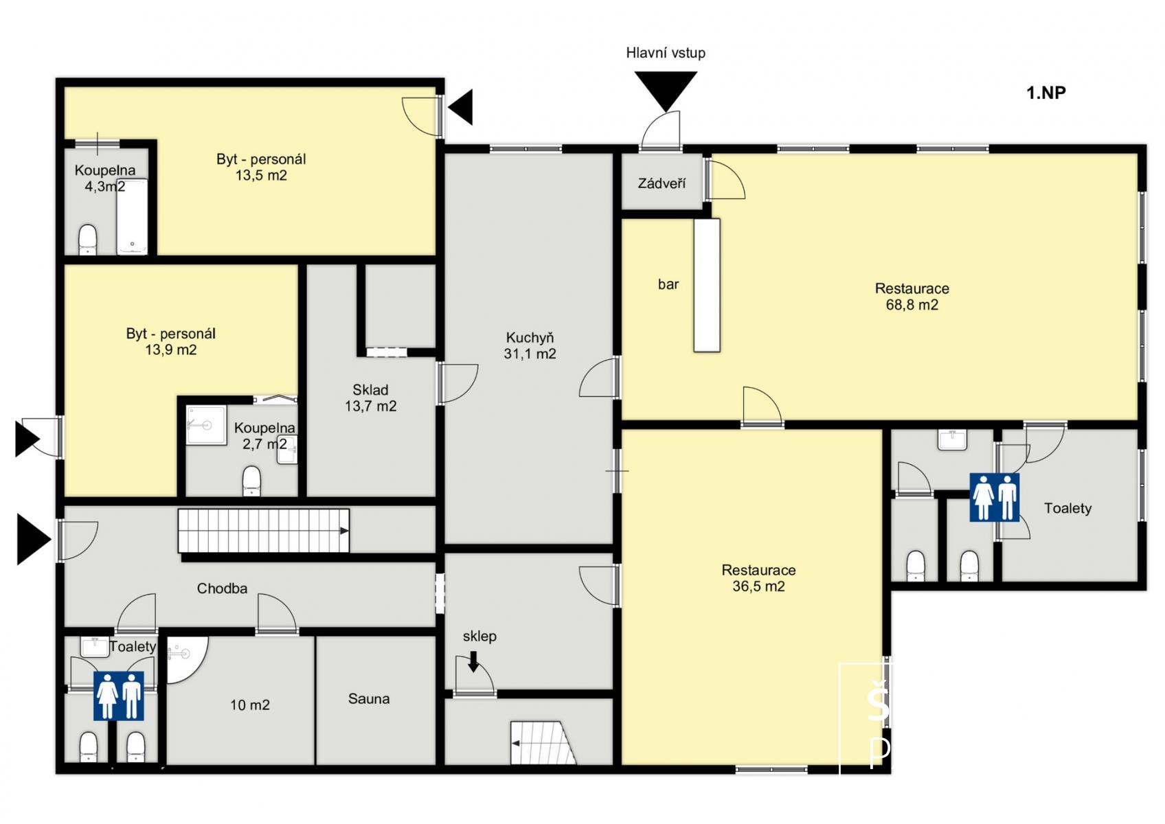
K penzionu náleží i restaurace s velkými prostory pro usazení ubytovaných hostů i kolemjdoucích zákazníků. Součástí restaurace je vybavená kuchyně a bar. Do dalšího vybavení objektu spadá také finská sauna, hřiště s umělým povrchem, venkovní posezení, ohniště, gril a parkoviště. Kromě zázemí pro hosty nemovitost disponuje také ubytováním pro zaměstnance, stodolou a sklepením.
Venkovní prostory pensionu skýtají nepřeberné možnosti vyžití a to v letních i zimních měsících. Na dohled je Skipark Hraběšice se čtyřmi sjezdovkami. V dojezdové vzdálenosti jsou pak další skirareály, například Kouty nad Desnou, Klepáčov nebo Branná. Okolí je přímo pohádkové s ideálním terénem pro cyklistiku či turistiku. Zdejší lesy jsou plné hub a zážitkem je rovněž koupání ve 4km vzdálené přehradě Na Krásném.
Ze zajímavých míst v okolí stojí za to navštívit například 7km vzdálené malebné město Šumperk, zámek Sobotní, zříceninu hradu Rabštejn, Veterán muzeum a ZOO v Rapotíně, zámek Velké Losiny apod.
Pro prohlídku, či více informací mě neváhejte kontaktovat.
| Cena: | 7 500 000 Kč |
| Poznámka: | včetně právního servisu, s provizí RK |
| Číslo zakázky: | REALITYMIX-989 |
Podrobné informace
- Zastavěná plocha: 778 m²
- Užitná plocha: 778 m²
- Plocha parcely: 2996 m²
- Počet podlaží objektu: 2
- Druh objektu: cihlová
- Stav objektu: dobrý
- Typ zařízení: Penzion
- Umístění objektu: klidná část obce
- Elektřina: Elektro - 230 V
- Topení: Lokální - elektrické
- Energetická náročnost budovy: G - Mimořádně nehospodárná
Právní rádce
-
Detail
V tomto článku shrneme nejdůležitější věci, které byste si měli promyslet, pokud se chystáte prodat svou nemovitost a chcete, abyste s kupujícím nemusel následně řešit vzniklé problémy.
Jako prodávající nesete rizika spojená nejen se samotným obchodem, ale i se stavem nemovitosti v době prodeje a pro minimalizaci rizik, je dobré se zamyslet nad uvedenými oblastmi.
-
Detail
Realitní makléř má své nezastupitelné místo v realitním obchodu. Realitním makléřem nemyslím nevzdělané jelito, které absolvovalo dvoudenní školení a ví, jak se nahraje inzerát na inzertní portál.
Realitním makléřem, který se Vám skutečně vyplatí, je zkušený profesionál, který je schopen Vám dobře poradit jak prodat za co nejvíc a s nejmenším rizikem a hlavně je Vás schopen obratně provést celým realitním obchodem.