Prodej bytu, 2+kk, 51 m²
Pražská třída, Kukleny, Hradec Králové
6 014 027 KčProdej bytu, 2+kk, 51 m²
Pražská třída, Kukleny, Hradec Králové
Prodej bytu 2+kk, 51,3 m2, Pražská třída, Hradec Králové - Kukleny
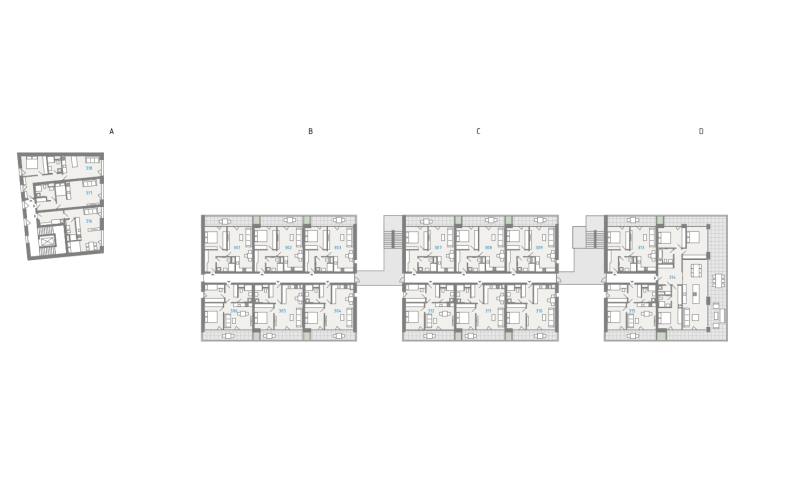
Nabízíme k prodeji zcela nový byt 2+kk v nově realizovaném developerském projektu Rezidence Praž ská 84, který vzniká v atraktivní části Hradce Králové.
Velikost bytu je 53,1 m2, byt je orientovaný na jih a nachází se ve 3.nadzemním podlaží.
Projekt je výsledkem práce renomovaného ateliéru Žárovka Architekti a celkem nabízí 52 bytových jednotek. Od běžného projektu se odlišuje především nízkopodlažní zástavbou, menším počtem bytů v jednotlivých domech a uzavřeným, klidným konceptem bydlení.
Soukromí, bezpečí a technologie budoucnosti
Celá rezidence je navržena s důrazem na komfort, bezpečí a dlouhodobou udržitelnost. Obyvatelé mají k dispozici:
sprinklerový systém jako aktivní protipožární ochranu,
přípravu pro dobíjení elektromobilů u parkovacích stání.
Díky těmto prvkům projekt nabízí nejen moderní bydlení, ale i nižší provozní náklady a vyšší míru bezpečí.
Lokalita, která funguje
Poloha projektu umožňuje rychlé a pohodlné spojení jak do centra města, tak mimo Hradec Králové.
MHD je dostupná 1 minutu chůze,
nájezd na dálnici D11 je vzdálený přibližně 2 minuty jízdy,
do Prahy (Černý Most) se dostanete zhruba za hodinu autem.
V bezprostředním okolí najdete lékaře, školy, školky i nákupní centrum Aupark, což dělá z lokality ideální místo pro každodenní život.
Možnost klientských úprav
Do určité fáze výstavby je možné:
upravit standardy interiéru,
u vybraných bytů měnit dispozici či podlahovou plochu,
přizpůsobit bydlení vlastním představám ještě před dokončením.
Parkování a společné prostory
Veškerá parkovací stání jsou řešena v krytých prostorech pod budovou, takže okolí domů zůstává klidné, čisté a bez rušivých prvků. Na projekt navazuje komunitní zahrada, která vytváří přirozený prostor pro setkávání rezidentů i relax.
Kvalitní standard bydlení
Byty jsou navrženy s důrazem na funkční dispozice a nadčasový design. Standard zahrnuje kvalitní podlahy, dveře a obklady v souladu s aktuálními trendy, přičemž je možné zvolit i prémiové materiály.
Financování bez starostí
V případě potřeby vám zajistíme kompletní hypoteční servis a výhodné podmínky financování napříč bankovním trhem - od prvního návrhu až po podpis úvěrové smlouvy.
| Cena: | 6 014 027 Kč |
| Dispozice/podlahová plocha: | 2+kk/51 m² |
| Číslo zakázky: | REALITYMIX-232975 |
Podrobné informace
- Dispozice bytu: 2+kk
- Číslo podlaží v domě: 3
- Počet podlaží objektu: 4
- Celková podlahová plocha: 51 m²
- Druh objektu: cihlová
- Stav objektu: ve výstavbě (hrubá stavba)
- Stáří objektu: 1
- Vlastnictví: osobní
- Doprava: vlak, silnice, autobus
- Voda: Voda - dálkový vodovod
- Odpad: Kanalizace
- Energetická náročnost budovy: B - Úsporná
Právní rádce
-
Detail
V tomto článku shrneme nejdůležitější věci, které byste si měli promyslet, pokud se chystáte prodat svou nemovitost a chcete, abyste s kupujícím nemusel následně řešit vzniklé problémy.
Jako prodávající nesete rizika spojená nejen se samotným obchodem, ale i se stavem nemovitosti v době prodeje a pro minimalizaci rizik, je dobré se zamyslet nad uvedenými oblastmi.
-
Detail
Realitní makléř má své nezastupitelné místo v realitním obchodu. Realitním makléřem nemyslím nevzdělané jelito, které absolvovalo dvoudenní školení a ví, jak se nahraje inzerát na inzertní portál.
Realitním makléřem, který se Vám skutečně vyplatí, je zkušený profesionál, který je schopen Vám dobře poradit jak prodat za co nejvíc a s nejmenším rizikem a hlavně je Vás schopen obratně provést celým realitním obchodem.
Prodáváte nemovitost a potřebujete zjistit její reálnou hodnotu?
Zjistit reálnou cenuVývoj průměrné ceny za m2 v lokalitě Hradec Králové
Prodáváte nemovitost a potřebujete zjistit její reálnou hodnotu?
Zjistit reálnou cenuMapa
Podobné nemovitosti
Prodej bytu, 2+kk, 50 m²
Pod Zámečkem, Hradec Králové
6 510 000 Kč
Prodej bytu, 2+kk, 53 m²
Pražská třída, Kukleny, Hradec Králové
6 545 000 Kč
Prodej bytu, 2+kk, 61 m²
Petra Jilemnického, Plotiště nad Labem, Hradec Králové
4 550 000 Kč
Prodej bytu, 2+kk, 46 m²
Oskara Nedbala, Pražské Předměstí, Hradec Králové
4 400 000 Kč