Prodej bytu, 1+1, 59 m²
Hradec nad Svitavou, Svitavy
2 690 000 KčProdej bytu, 1+1, 59 m²
Hradec nad Svitavou, Svitavy
Prodej bytu v OV ve zděném domě v Hradci nad Svitavou
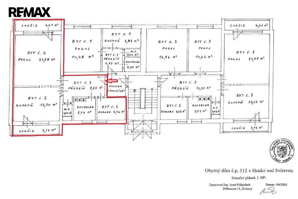
Byt se sestává z velké vstupní chodby, velké kuchyně s lodžií, pokoje s lodžií, koupelny, WC a velké komory (šatny).
Vzhledem k prostornému bytu, by se dal byt upravit i na dispozici 2+kk a komora se dá využít i na malý pokoj nebo pracovnu, protože tento prostor dříve už sloužil jako malý studentský pokoj.
Celková užitná plocha bytu s příslušenstvím (sklepem a 2 lodžiemi) činí 66,91 m2, samotná plocha bytu 55,13 m2. K bytu patří sklep v suterénu domu o výměře 5 m2.
Byt má nová plastová okna, včetně balkónových dveří, v bytě dále proběhla modernizace sociální zařízení se sprchovým koutem.
Byt má vlastní plynové vytápění včetně ohřevu teplé vody.
Dům prošel revitalizací, je zateplený s novou omítkou. Ve společných prostorách je k dispozici kolárna/kočárkárna, sušárna a dílna.
Dům se nachází v klidné lokalitě s možností parkovat na parkovišti před domem.
Příjezd k domu je bezproblémový z nového obchvatu sjezdem směrem na Kamennou Horku.
Do centra Svitav trvá cesta autem necelé 4 km asi 5 až 6 minut cesty. Lze dobře cestovat i veřejnou dopravou, bezproblémové spojení je vlakem i autobusem ze zastávky (Svitavy-Lány) v dosahu 5 minut chůze od domu.
Nabídka je příležitostí pro zájemce, kteří neradi bydlí na velkém rušném sídlišti a preferují polosamotu a klid. V blízkosti cca do 1,3 km se nachází les, možnost krásných procházek, projížděk na kole, houbaření apod.
MŠ ve Svitavách - Lánech je cca 2 minuty autem, ŽS a MŠ v Hradci nad Svitavou 5 minut autem.
Na byt jsou nízké náklady (vodné a el.ve spol. prostorách + FO) cca 1.560,- Kč měsíčně, dále náklady na elektřinu a plyn v bytě (dle faktické spotřeby). Dům je napojený na samostatnou ČOV s ročním nákladem 100,- Kč.
Dům je nově zateplený s novou omítkou, hodnota PENB je „D 153“. Prodávající si vyhrazuje právo vybrat kupujícího na základě jím zvolených kritérií.
| Cena: | 2 690 000 Kč |
| Dispozice/podlahová plocha: | 1+1/59 m² |
| Číslo zakázky: | REALITYMIX-429591 |
Podrobné informace
- Dispozice bytu: 1+1
- Číslo podlaží v domě: 1
- Počet podlaží objektu: 3
- Užitná plocha: 59 m²
- Celková podlahová plocha: 59 m²
- Druh objektu: cihlová
- Stav objektu: velmi dobrý
- Vlastnictví: osobní
- Lodžie: 6 m²
- Sklep: 5 m²
- Umístění objektu: okraj obce
- Doprava: vlak, autobus
- Odpad: ČOV pro celý objekt
- Energetická náročnost budovy: D - Méně úsporná
- Ukazatel energetické náročnosti budovy: 153 kWh/m²
- Energetický ukazatel podle vyhlášky: č. 264/2020 Sb.
Právní rádce
-
Detail
V tomto článku shrneme nejdůležitější věci, které byste si měli promyslet, pokud se chystáte prodat svou nemovitost a chcete, abyste s kupujícím nemusel následně řešit vzniklé problémy.
Jako prodávající nesete rizika spojená nejen se samotným obchodem, ale i se stavem nemovitosti v době prodeje a pro minimalizaci rizik, je dobré se zamyslet nad uvedenými oblastmi.
-
Detail
Realitní makléř má své nezastupitelné místo v realitním obchodu. Realitním makléřem nemyslím nevzdělané jelito, které absolvovalo dvoudenní školení a ví, jak se nahraje inzerát na inzertní portál.
Realitním makléřem, který se Vám skutečně vyplatí, je zkušený profesionál, který je schopen Vám dobře poradit jak prodat za co nejvíc a s nejmenším rizikem a hlavně je Vás schopen obratně provést celým realitním obchodem.