Prodej - chata/rekreační objekt, 45 m²
Pikovice, Praha-západ
2 900 000 KčProdej - chata/rekreační objekt, 45 m²
Pikovice, Praha-západ
Prodej chaty 36m², pozemek 474m² Pikovice - Hradišťko pod Medníkem
Nabízíme k prodeji částečně zděnou chatu o velikosti zastavěné plochy 36 m² v jedné z nejkrásnějších lokalit středních Čech – v Hradištku pod Medníkem, v těsné blízkosti vyhlášených Pikovic, kousek od soutoku Vltavy a Sázavy.
Nemovitost se nachází na vlastním lesním pozemku o velikosti 474 m², který zajišťuje naprosté soukromí a stín v horkých letních dnech.
Částečně zděná stavba je konstrukčně v pořádku, ale čeká na celkovou rekonstrukci vnitřních prostor.
Chata je připojena na rozvod elektřiny, má vlastní septik.
Voda: Aktuálně pouze dešťová. Pro plnohodnotný komfort je nutné vybudovat vlastní vrt (v okolí běžné řešení).
Naprosto bezproblémový příjezd po asfaltové obecní komunikaci až na pozemek – vzácnost v této lesní lokalitě!
Jen 30 km z Prahy. Za půl hodiny z centra vyměníte hluk města za ticho lesa. Pikovice jsou rájem pro vodáky, turisty i milovníky historie (Posázavský pacifik, stezka Medník).
V Pikovicích se od vyznačeného místa v ulici Pod Medníkem nachází nejdůležitější body zájmu v následujících vzdálenostech:
Řeka Sázava je vzdušnou čarou zhruba 300 metrů směrem na sever. K veřejnému tábořišti u břehu dojdete po cestě za cca 5–7 minut.
Přímo v centru obce (cca 350 metrů daleko) je Restaurace U Dolejších, kde sídlí i místní pivovar Pikovar. V samotných Pikovicích je menší sezónní prodejna potravin u tábořiště. Celoroční větší obchod (Můj obchod) se nachází v sousedním Hradištku, což je přibližně 3 km cesty autem nebo autobusem.
Chata se nachází v klidné části na úpatí vrchu Medník, přičemž veškerá základní vybavenost obce je v docházkové vzdálenosti do 5–10 minut chůze.
Pro bližší informace či prohlídku kontakujte makléřku nabídky.
| Cena: | 2 900 000 Kč |
| Plocha: | 45 m² |
| Číslo zakázky: | REALITYMIX-N00276 |
Podrobné informace
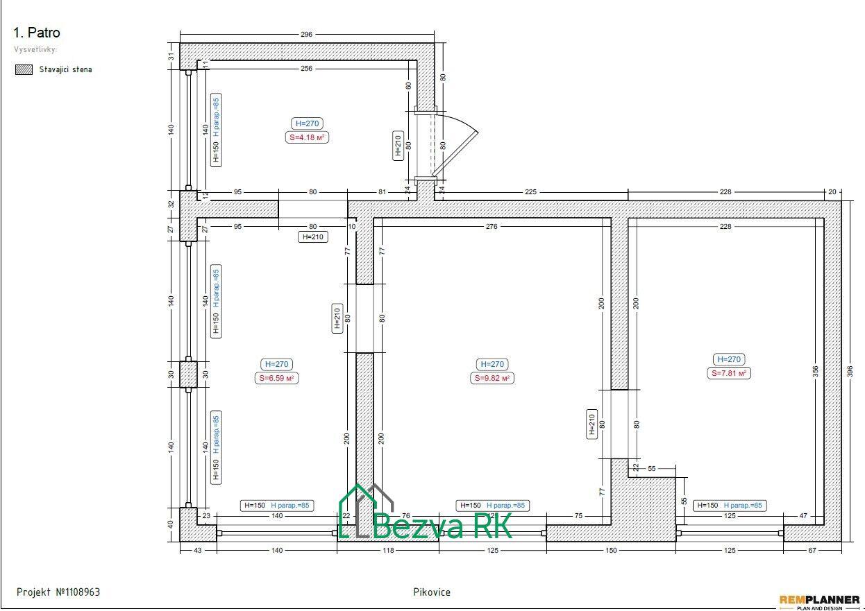
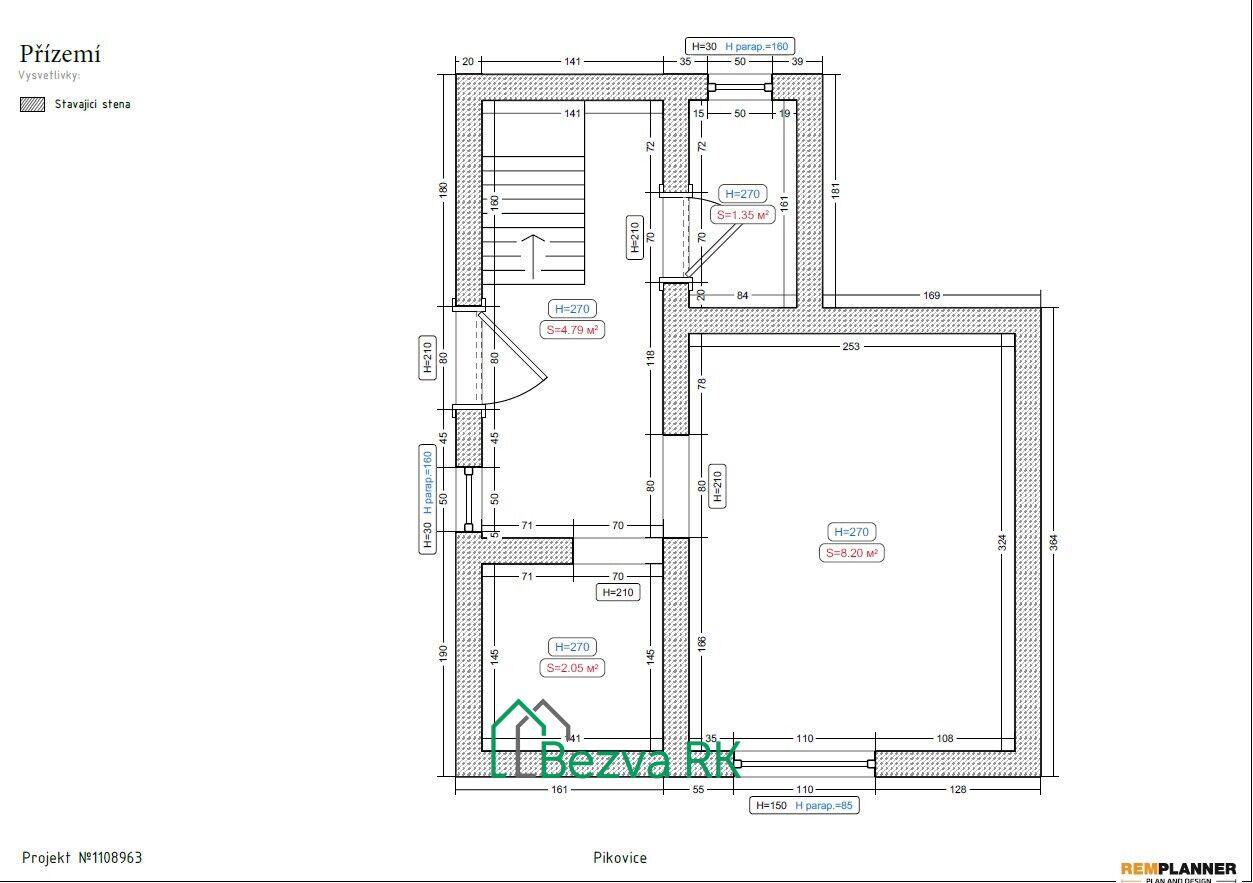
- Celková plocha: 45 m²
- Zastavěná plocha: 36 m²
- Užitná plocha: 45 m²
- Plocha parcely: 474 m²
- Druh objektu: smíšená
- Stav objektu: před rekonstrukcí
- Počet podlaží objektu: 1
- Umístění objektu: polosamota
- Elektřina: Elektro - 230 V
Právní rádce
-
Detail
V tomto článku shrneme nejdůležitější věci, které byste si měli promyslet, pokud se chystáte prodat svou nemovitost a chcete, abyste s kupujícím nemusel následně řešit vzniklé problémy.
Jako prodávající nesete rizika spojená nejen se samotným obchodem, ale i se stavem nemovitosti v době prodeje a pro minimalizaci rizik, je dobré se zamyslet nad uvedenými oblastmi.
-
Detail
Realitní makléř má své nezastupitelné místo v realitním obchodu. Realitním makléřem nemyslím nevzdělané jelito, které absolvovalo dvoudenní školení a ví, jak se nahraje inzerát na inzertní portál.
Realitním makléřem, který se Vám skutečně vyplatí, je zkušený profesionál, který je schopen Vám dobře poradit jak prodat za co nejvíc a s nejmenším rizikem a hlavně je Vás schopen obratně provést celým realitním obchodem.
Mapa
Podobné nemovitosti
Prodej - chata/rekreační objekt, 40 m²
Kabáty, Praha-západ
2 490 000 Kč
Prodej - chata/rekreační objekt, 64 m²
Hradištko, Praha-západ
2 100 000 Kč
Prodej - chata/rekreační objekt, 70 m²
K Dubné, Vrané nad Vltavou, Praha-západ
2 990 000 Kč
Prodej - chata/rekreační objekt, 100 m²
Luka pod Medníkem, Jílové u Prahy, Praha-západ
2 900 000 Kč