Prodej - hotel, 400 m²
Hranice, České Budějovice
9 990 000 KčProdej - hotel, 400 m²
Hranice, České Budějovice
Prodej penzionu, ubytování Hranice u Nových Hradů
Tento dům sloužil v minulosti jako hostinec, cca před 22 lety byl opraven a přestavěn. Dnes slouží objekt k trvalému bydlení (bytová jednotka o dispozici 3+1). Část domu je využívána ke komerčnímu pronájmu. Nachází se zde 3 bytové k dlouhodobému pronájmu a 3 bytové jednotky ke krátkodobému pronájmu přes cestovatelské portály.
K nemovitosti náleží rozlehlý pozemek o rozloze 2.783 m2, kde je k dispozici přírodní jezírko- rybník, velký výběh pro chov slepic, altánek, pergola, udírna a garáž či dílna. Je zde dostatek prostoru pro pěstování plodin, či výstavbu dětského hřiště nebo bazénu. Rozloha pozemku nabízí v tomto směru široké využití.
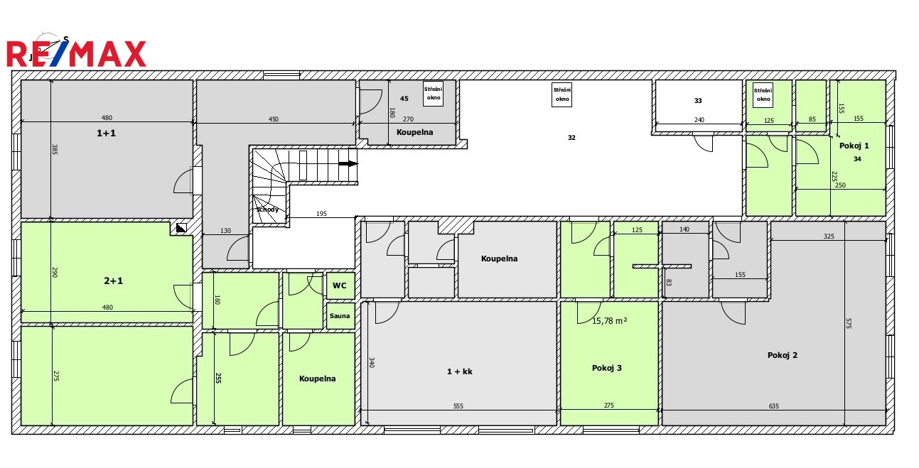
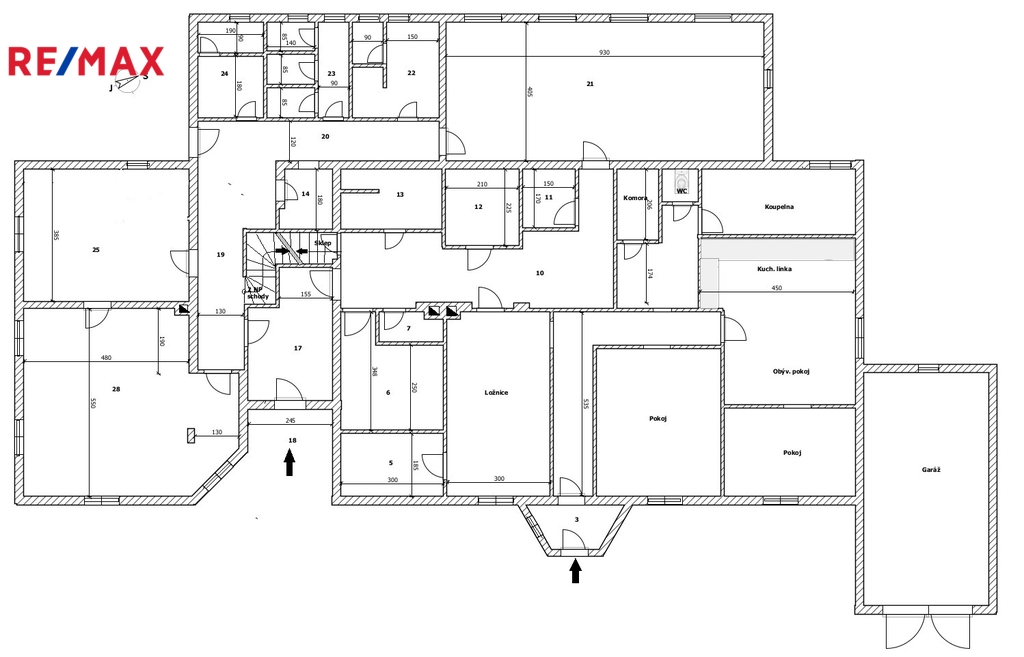
Dům má 2 podlaží a dispozici 400 m2.
1. patro
V přízemí, vedle hlavního vchodu se nachází společenská místnost, která dříve sloužila jako restaurace. Některé původní prvky tohoto využití zde byly zachovány a tak je možné takový provoz obnovit či využít k různým společenským akcím a teambuildingům. Dominantou této místnosti je krb, který v chladnějších měsících navozuje jak teplo, tak příjemnou atmosféru. K dobré obslužnosti napomáhá menší, částečně vybavená kuchyň, která na tuto místnost navazuje.
Dále jsou v přízemí oddělené toalety a další společenská místnost - klubovna, kde je dominantou velký pingpongový stůl a vstup na rozlehlou venkovní terasu, kde je dostatek prostoru pro společenské posezení či relax.
Nachází se zde i sklep se vstupem na zahradu, který je možno využít jako kolárnu a dále je zde kotelna - dům je vytápěn kotlem na tuhá paliva.
Samostatný vchod vedle hlavního vstupu má v přízemí i bytová jednotka, která je momentálně využívaná k trvalému bydlení. Tato jednotka má dispozici 3+1.
2.patro
Ve druhém patře se nachází 3 bytové jednotky, 2x 1+kk a 2+kk - tyto byty momentálně obývají trvalí nájemníci. Dále jsou zde 3 samostatné pokoje jako ubytování pro hosty, určené ke krátkodobým pobytům, provozované přes portál Airbnb. Tyto pokoje jsou vybaveny vlastní koupelnou a manželskou postelí či samostatnými lůžky.
Tyto prostory propojuje společná místnost, která je v tuto chvíli zaměřená na dětské aktivity - postýlka, přebalovací pult, hračky, knihovna a je zde i menší úložný prostor - komora.
Výhodou tohoto objektu je jeho široká možnost využití a investiční příležitost - ať už jako stávající ubytovací zařízení nebo i jako rekreační objekt pro vícečlennou rodinu či blízké a známé. Je možnost provoz rozšířit o pohostinství, restauraci, teambuildingové účely, firemní večírky. Nebo i objekt využít jako firemní prostor - výrobnu, sklad, dílnu a ubytovací zázemí pro zaměstnance.
Lokalita je ideální svou dobrou dopravní obslužností, v blízkosti jsou Nové Hrady, Suchdol nad Lužnicí i České Velenice, zároveň je v okolí klid a malebná příroda CHKO Třeboňska. Místo si najde hojné turistické využití díky dostatku cyklostezek. V dojezdové vzdálenosti jsou také oblíbené Novohradské hory.
V případě zájmu nás neváhejte kontaktovat.
| Cena: | 9 990 000 Kč |
| Číslo zakázky: | REALITYMIX-427674 |
Podrobné informace
- Zastavěná plocha: 416 m²
- Užitná plocha: 400 m²
- Plocha parcely: 3199 m²
- Počet podlaží objektu: 2
- Druh objektu: cihlová
- Stav objektu: dobrý
- Typ zařízení: Hotel
- Doprava: silnice, autobus
- Komunikace: asfaltová
- Elektřina: Elektro - 230 V
- Voda: Voda - dálkový vodovod
- Energetická náročnost budovy: G - Mimořádně nehospodárná
- Energetický ukazatel podle vyhlášky: č. 264/2020 Sb.
Právní rádce
-
Detail
V tomto článku shrneme nejdůležitější věci, které byste si měli promyslet, pokud se chystáte prodat svou nemovitost a chcete, abyste s kupujícím nemusel následně řešit vzniklé problémy.
Jako prodávající nesete rizika spojená nejen se samotným obchodem, ale i se stavem nemovitosti v době prodeje a pro minimalizaci rizik, je dobré se zamyslet nad uvedenými oblastmi.
-
Detail
Realitní makléř má své nezastupitelné místo v realitním obchodu. Realitním makléřem nemyslím nevzdělané jelito, které absolvovalo dvoudenní školení a ví, jak se nahraje inzerát na inzertní portál.
Realitním makléřem, který se Vám skutečně vyplatí, je zkušený profesionál, který je schopen Vám dobře poradit jak prodat za co nejvíc a s nejmenším rizikem a hlavně je Vás schopen obratně provést celým realitním obchodem.
Mapa
Podobné nemovitosti
Prodej - restaurace, 297 m²
Na Výši, Poříčí, České Budějovice
9 990 000 Kč
Prodej - restaurace, 103 m²
nám. Přemysla Otakara II, České Budějovice 1, České Budějovice
3 199 000 KčProdej - restaurace, 48 m²
nám. Přemysla Otakara II, České Budějovice 1, České Budějovice
1 500 000 Kč
Prodej - hotel, 800 m²
České Budějovice
25 000 000 Kč