Prodej - výrobní prostor, 1 924 m²
Nádražní, Humpolec, Pelhřimov
Cena na vyžádáníProdej - výrobní prostor, 1 924 m²
Nádražní, Humpolec, Pelhřimov
K prodeji komerční areál v Humpolci, ul. Nádražní
celkové rekonstrukci s nákladním výtahem (nosnost 750 kg) do všech podlaží o celkové užitné ploše 1924,2 m² a o celkové zastavěné výměře 1061 m² v průmyslové zóně v Humpolci (D1 EXIT 90).
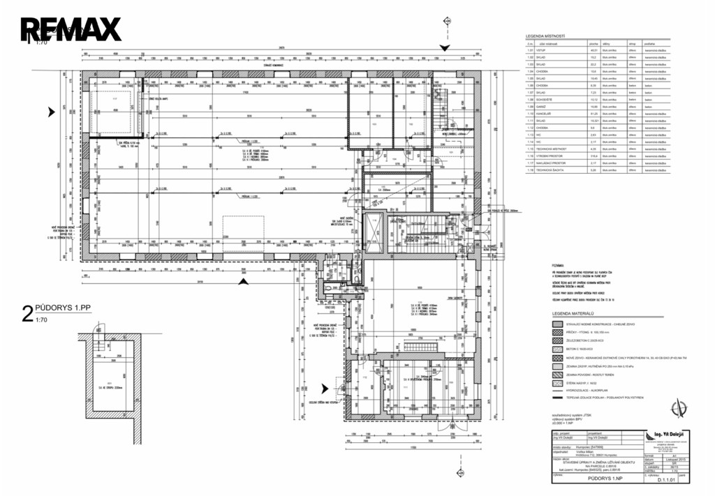
Komerční budova se skládá: Dispozice 1.NP (627,7 m2) – výrobní či skladový prostor
přístupný přes sekční vrata z parkoviště a se vstupem na zpevněný pozemek přes sekční vrata a
vstupní dveře o celkové výměře 418 m2, sociální zázemí pro výrobní prostor (WC, sprcha, šatna) o
výměře 11,1 m2, recepce + vstup z ulice Nádražní o výměře 45 m2, schodiště do 2.NP o výměře 22
m2, kancelář č. 1 o výměře 75 m2, kuchyňka o výměře 7,7 m2, WC o výměře 2,2 m2, zadní vstupní
chodba se vstupem přes dveře o výměře 12 m2, kancelář č. 2 o výměře 20 m2, zadní garáž přístupná
přes sekční vrata o výměře 14,7 m2.
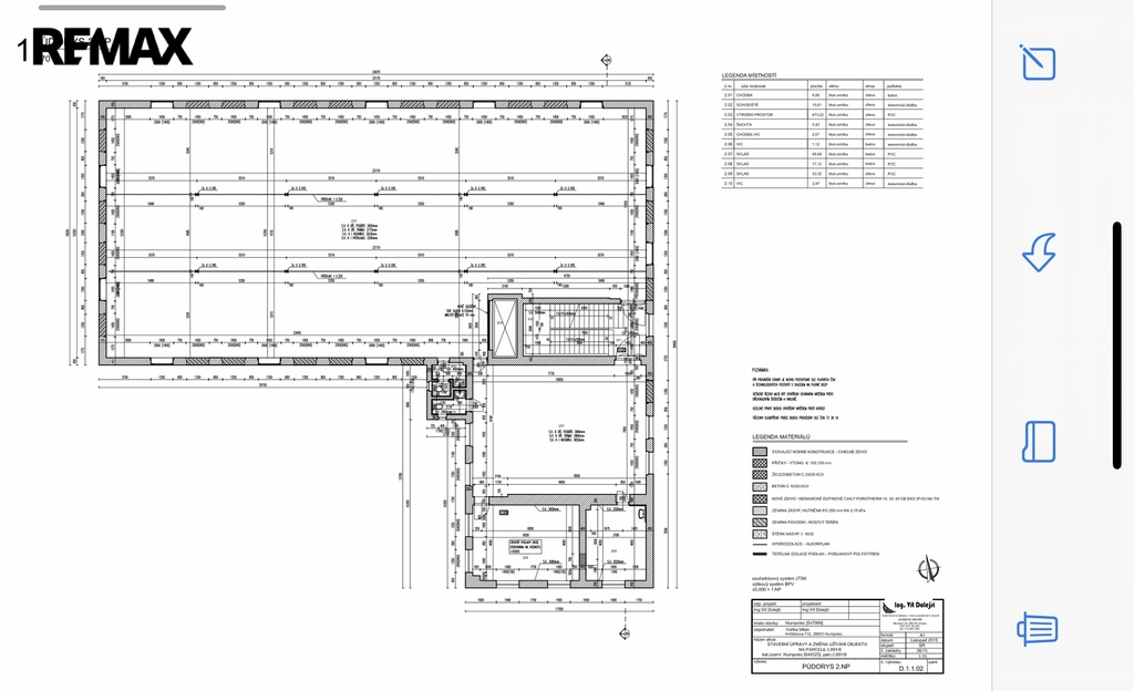
Dispozice 2.NP (635,8 m2) - výrobní či skladový prostor
se zatížením 500 kg/m2 o výměře 472 m2, schodiště o výměře 24 m2, kancelář č. 1 o výměře 58 m2,
koupelna + WC o výměře 6,3 m2, kancelář č. 2 o výměře 31 m2, kancelář č. 3 o výměře 17,5 m2.
Celková užitná plocha – 1924,2 m2
1.NP – 627,7 m2
2.NP – 635,8 m2
3.NP – 647,2 m2
1.PP – 13,5 m2
Zastavěná plocha 735 m2
Parkoviště o velikosti – 176 m2
Manipulační pozemek o velikosti – 150 m2.
1.NP
Výrobní prostor – 418 m2
Sociální zázemí výrobní prostor – 11,1 m2
Vstup + recepce – 45 m2
Schodiště – 22 m2
Kancelář č. 1 – 75 m2
Kuchyňka – 7,7 m2
WC – 2,2 m2
Zadní vstup – 12 m2
Kancelář č. 2 – 20 m2
Zadní garáž – 14,7 m2
Celkem užitná plocha 1.NP 627,7 m2.
2.NP
Výrobní prostor – 472 m2
Schodiště – 24 m2
Kancelář č. 1 – 85 m2
Koupelna + WC – 6,3 m2
Kancelář č. 2 – 31 m2
Kancelář č. 3 – 17,5 m2
Celkem užitná plocha 2.NP 635,8 m2.
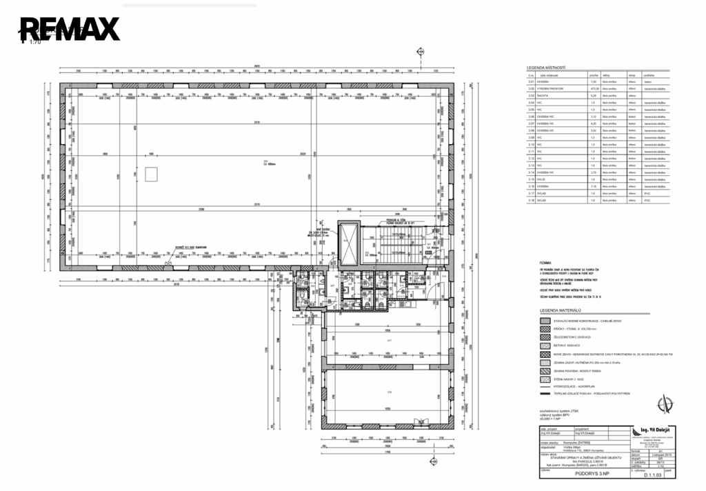
3.NP
Výrobní prostor – 472 m2
Schodiště – 24 m2
Kancelář č. 1 – 7,2 m2
Terasa – 58 m2
Koupelna + WC – 7,2 m2
Strojovna výtahu – 8 m2
Celkem užitná plocha 3.NP 647,2 m2.
1.PP
sklep – 13,5 m2
Celkem užitná plocha 1.PP 13,5 m2.
Veškeré inženýrské sítě napojené.
V případě zájmu vám rádi pomůžeme s vyřízením financování této nemovitosti.
Kompletní projektová dokumentace bude k nahlédnutí při osobní prohlídce na nemovitosti.
Pro bližší informace mě neváhejte kontaktovat. Prodávající si vyhrazuje právo vybrat kupujícího na základě jím zvolených kritérií.
| Cena: | Cena na vyžádání |
| Poznámka: | cena včetně provize RK |
| Číslo zakázky: | REALITYMIX-418162 |
Podrobné informace
- Plocha kanceláří: 1924 m²
- Plocha parcely: 731 m²
- Druh objektu: cihlová
- Stav objektu: dobrý
- Druh prostor: Výrobní
- Energetický ukazatel podle vyhlášky: č. 264/2020 Sb.
Právní rádce
-
Detail
V tomto článku shrneme nejdůležitější věci, které byste si měli promyslet, pokud se chystáte prodat svou nemovitost a chcete, abyste s kupujícím nemusel následně řešit vzniklé problémy.
Jako prodávající nesete rizika spojená nejen se samotným obchodem, ale i se stavem nemovitosti v době prodeje a pro minimalizaci rizik, je dobré se zamyslet nad uvedenými oblastmi.
-
Detail
Realitní makléř má své nezastupitelné místo v realitním obchodu. Realitním makléřem nemyslím nevzdělané jelito, které absolvovalo dvoudenní školení a ví, jak se nahraje inzerát na inzertní portál.
Realitním makléřem, který se Vám skutečně vyplatí, je zkušený profesionál, který je schopen Vám dobře poradit jak prodat za co nejvíc a s nejmenším rizikem a hlavně je Vás schopen obratně provést celým realitním obchodem.