Prodej bytu, 2+kk, 46 m²
Lesní stezka, Jablonec nad Nisou
4 099 000 KčProdej bytu, 2+kk, 46 m²
Lesní stezka, Jablonec nad Nisou
Prodej bytu 2+kk 46m2 + terasa 12,6m2 Jablonec nad Nisou - zahrada, sklep
Ve výhradním zastoupení prodáváme byt v osobním vlastnictví v ideální lokalitě - kousek do přírody a přitom 15 minut chůze od centra.
Zastávka MHD poblíž, pravidelné linky i do Liberce. Dobré napojení na hlavní silniční tah na Prahu i Trutnov.
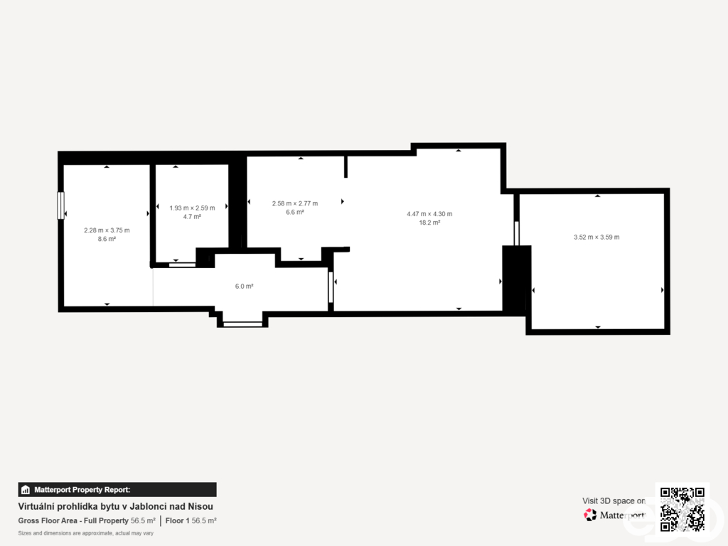
Byt i celý dům prošel nákladnou rekonstrukcí. Je v dispozici 2+kk a má vstup na prostornou terasu, z které se můžete kochat výhledem na krásnou krajinu.
Při vstupu se dostanete do chodby. Do leva se jde do místnosti s kuchyňským koutem a dále tu jsou dveře do koupelny, vpravo od vstupu dojdete do velké napůl přepažené místnosti ( takže byt evokuje spíše rozdělení 3+kk ) z které je vstup na velkou terasu.
K bytu náleží i sklep. Je možnost využívat zahradu za domem například ke grilování a odpočinku. Místo před domem ke snadnému parkování.
Město Jablonec nad Nisou nabízí kompletní občanskou vybavenost - školy, školky, nemocnice, zdravotnická zařízení, sportovní vyžití, obchodní centra...
V blízkém okolí domu vedou cyklotrasy a turistické cesty.
Pro milovníky vody - přehrada Mšeno - "Jablonecká přehrada" nabízí skvělé místo k odpočinku - molo, koupání, pláže, občerstvení i 3km okruh kolem celé přehrady nebo o kousek dále méně využívané Pivovarské rybníky.
Na zimní sporty ideální místo - Bedřichov na běžky, ski areál Tanvaldský špičák na sjezd. Ikonický Ještěd zase na zážitky, výhledy, architektura.
Ale i v průběhu roku spousta dalších aktivit - paragliding, horolezectví.
Jablonec je skvělé místo na bydlení a tak neváhejte a domluvte si s námi prohlídku v tomto příjemném bytě.
Budeme se těšit
| Cena: | 4 099 000 Kč |
| Dispozice/podlahová plocha: | 2+kk/46 m² |
| Číslo zakázky: | REALITYMIX-3698 |
Podrobné informace
- Dispozice bytu: 2+kk
- Číslo podlaží v domě: 1
- Počet podlaží objektu: 2
- Užitná plocha: 46 m²
- Celková podlahová plocha: 46 m²
- Druh objektu: cihlová
- Stav objektu: velmi dobrý
- Vlastnictví: osobní
- Balkon: 12 m²
- Vybaveno: ano
- Umístění objektu: klidná část obce
- Energetický ukazatel podle vyhlášky: č. 264/2020 Sb.
Právní rádce
-
Detail
V tomto článku shrneme nejdůležitější věci, které byste si měli promyslet, pokud se chystáte prodat svou nemovitost a chcete, abyste s kupujícím nemusel následně řešit vzniklé problémy.
Jako prodávající nesete rizika spojená nejen se samotným obchodem, ale i se stavem nemovitosti v době prodeje a pro minimalizaci rizik, je dobré se zamyslet nad uvedenými oblastmi.
-
Detail
Realitní makléř má své nezastupitelné místo v realitním obchodu. Realitním makléřem nemyslím nevzdělané jelito, které absolvovalo dvoudenní školení a ví, jak se nahraje inzerát na inzertní portál.
Realitním makléřem, který se Vám skutečně vyplatí, je zkušený profesionál, který je schopen Vám dobře poradit jak prodat za co nejvíc a s nejmenším rizikem a hlavně je Vás schopen obratně provést celým realitním obchodem.