Prodej bytu, 2+1, 74 m²
Rozvojová zóna, Janovice nad Úhlavou, Klatovy
2 795 400 KčProdej bytu, 2+1, 74 m²
Rozvojová zóna, Janovice nad Úhlavou, Klatovy
Prodej novostavby bytu 2+1 v Janovicích nad Úhlavou
Ucelenou prezentaci domu můžete shlédnout na odkaze, který je součástí video prohlídky.
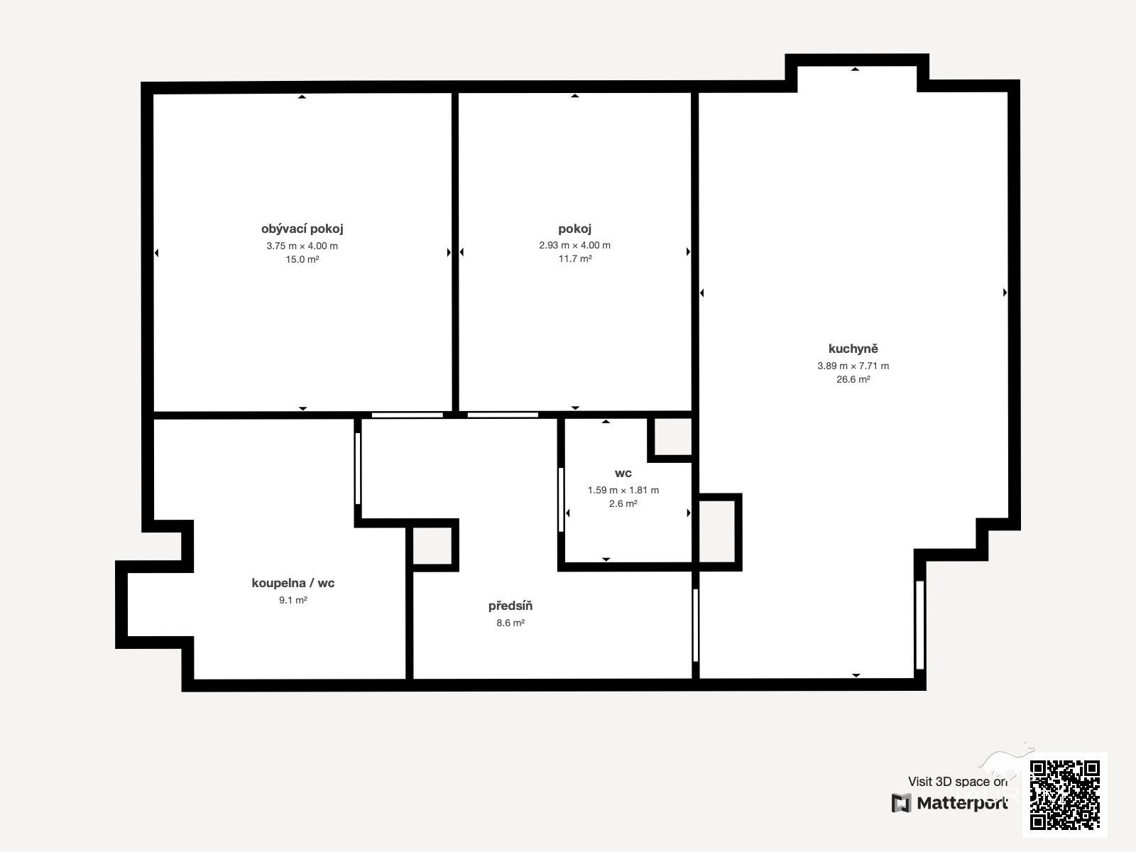
Vybavení dispozice 2+1, 74 m2 2.NP
> neprůchozí místnosti
> kuchyně připravena pro instalaci kuchyňské linky (možnost výběru)
> koupelna vana, sprchový kout, WC, bidet, umyvadlo, topný žebřík, samostatné WC s umyvadlem a bojlerem
> obložky, dveře a vinylová podlahová krytina osazení a dekor dle výběru
> společná komora na patře
> sklep (umístěný a přístupný ve vedlejším vchodu)
Aby Váš nový domov odrážel Vaši osobnost a splňoval Vaše představy o ideálním bydlení, připravili jsme pro Vás následující možnosti výběru, které jsou zahrnuty v ceně bytu:
> Každý kupující má možnost vybrat si kuchyňskou linku z naší nabídky, která je zahrnuta v ceně bytu. Pokud byste měli zájem o nadstandardní řešení, je samozřejmě možné za příplatek vybrat z širší nabídky. Tímto způsobem si můžete přizpůsobit kuchyň přesně podle Vašich představ.
> Nabízíme Vám možnost zvolit si dekor vinylové podlahy, který nejlépe vyhovuje Vašemu vkusu a stylu. Vyberte si z naší nabídky a vytvořte si tak příjemné prostředí, ve kterém se budete cítit jako doma.
> Vaše volba dekoru dveří a obložek je dalším způsobem, jak přizpůsobit interiér Vašim preferencím. Nabízíme možnosti, které se harmonicky sladí s ostatními prvky Vašeho nového bytu.
Dům informace:
V roce 2007 proběhla revitalizace domu zateplení, nová střecha, plastová okna s 2 skly. Kompletní rekonstrukce jednotlivých bytů proběhla 2018 2024. PENB "C".
Dům napojen na sítě:
> voda (v plastu, ohřev přes moderní bojler)
> elektřina (v mědi)
> topení dálkově (radiátory, topný žebřík)
Uvedené výměry jsou orientační.
Lokalita:
Janovice nad Úhlavou jsou vzdáleny přibližně 8 km jihozápadně od Klatov. Nabízí dostatečnou základní infrastrukturou pro pohodlné bydlení.
Byty se nacházejí v části zvané Rozvojová zóna, která vznikla v prostoru bývalých kasáren. Nacházejí se nedaleko od centra města, což umožňuje pohodlný přístup k městské infrastruktuře, včetně obchodů, školy a zdravotnických zařízení. Autobusem, jehož zastávka je v bezprostřední blízkosti, jste na náměstí za 8 minut.
Pokud hledáte cenově dostupné bydlení s rychlou dostupností do centra, může být tento byt pro Vás zajímavou volbou.
Pro koupi bytu Vám zajistím kompletní realitní a právní servis a v případě potřeby i výhodné financování hypotečním úvěrem.
| Cena: | 2 795 400 Kč |
| Datum k nastěhování: | 05.12.2025 |
| Dispozice/podlahová plocha: | 2+1/74 m² |
| Číslo zakázky: | REALITYMIX-250031 |
Podrobné informace
- Dispozice bytu: 2+1
- Číslo podlaží v domě: 2
- Počet podlaží objektu: 3
- Celková podlahová plocha: 74 m²
- Druh objektu: cihlová
- Stav objektu: novostavba
- Vlastnictví: osobní
- Sklep: 3 m²
- Vybaveno: ano
- Doprava: silnice
- Elektřina: Elektro - 230 V
- Voda: Zdroj pro celý objekt, Voda - dálkový vodovod
- Odpad: Kanalizace
- Energetická náročnost budovy: C - Úsporná
- Energetický ukazatel podle vyhlášky: č. 78/2013 Sb.
- Popis vybavení: .
Právní rádce
-
Detail
V tomto článku shrneme nejdůležitější věci, které byste si měli promyslet, pokud se chystáte prodat svou nemovitost a chcete, abyste s kupujícím nemusel následně řešit vzniklé problémy.
Jako prodávající nesete rizika spojená nejen se samotným obchodem, ale i se stavem nemovitosti v době prodeje a pro minimalizaci rizik, je dobré se zamyslet nad uvedenými oblastmi.
-
Detail
Realitní makléř má své nezastupitelné místo v realitním obchodu. Realitním makléřem nemyslím nevzdělané jelito, které absolvovalo dvoudenní školení a ví, jak se nahraje inzerát na inzertní portál.
Realitním makléřem, který se Vám skutečně vyplatí, je zkušený profesionál, který je schopen Vám dobře poradit jak prodat za co nejvíc a s nejmenším rizikem a hlavně je Vás schopen obratně provést celým realitním obchodem.
Prodáváte nemovitost a potřebujete zjistit její reálnou hodnotu?
Zjistit reálnou cenuVývoj průměrné ceny za m2 v lokalitě Plzeňský kraj
Prodáváte nemovitost a potřebujete zjistit její reálnou hodnotu?
Zjistit reálnou cenuMapa
Podobné nemovitosti
Prodej bytu, 2+1, 69 m²
Rozvojová zóna, Janovice nad Úhlavou, Klatovy
2 650 000 Kč
Prodej bytu, 2+1, 74 m²
Rozvojová zóna, Janovice nad Úhlavou, Klatovy
2 795 400 Kč
Prodej bytu, 2+1, 74 m²
Rozvojová zóna, Janovice nad Úhlavou, Klatovy
2 795 400 Kč
Prodej bytu, 2+1, 59 m²
Sídliště, Janovice nad Úhlavou, Klatovy
2 750 000 Kč