Prodej - jiné, 500 m²
Stará cesta, Jindřichův Hradec II, Jindřichův Hradec
12 900 000 KčProdej - jiné, 500 m²
Stará cesta, Jindřichův Hradec II, Jindřichův Hradec
K prodeji, zrekonstruovaný komerční objekt s občanským využitím, Jindřichův Hradec
m2, na adrese Stará cesta č.p. 728, Jindřichův Hradec.
Objekt je katastrálně rozdělen a prodává se jako samostatná část nemovitosti. Druhou část objektu vlastní
jiný majitel, který zde buduje dlouhodobou zubní ordinaci. Dle platného územního plánu města
Jindřichův Hradec je objekt veden v ploše občanského vybavení, která umožňuje využití pro zdravotnické
služby, administrativu, kanceláře a další nerušící provozy, v souladu s charakterem okolní zástavby.
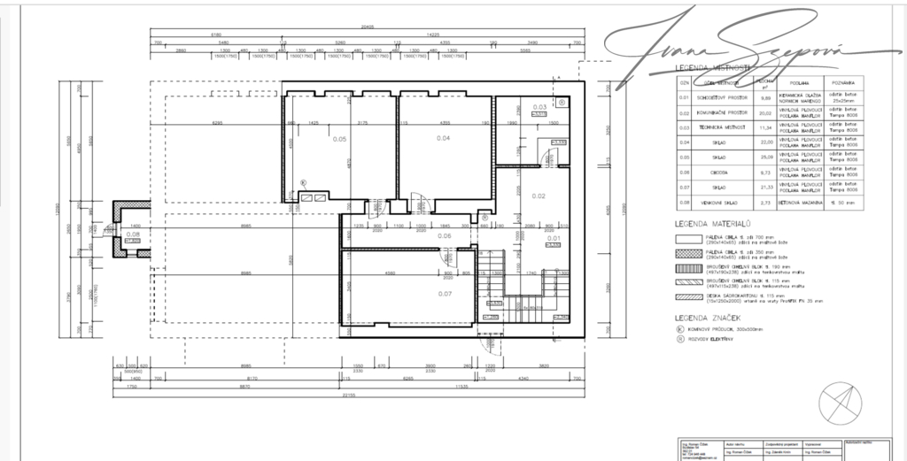
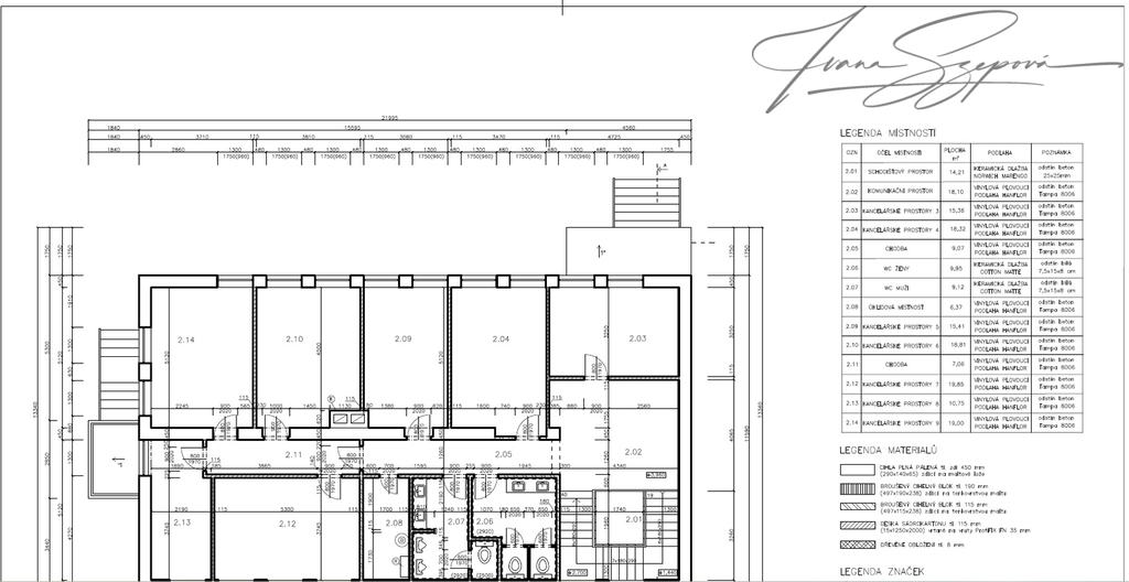
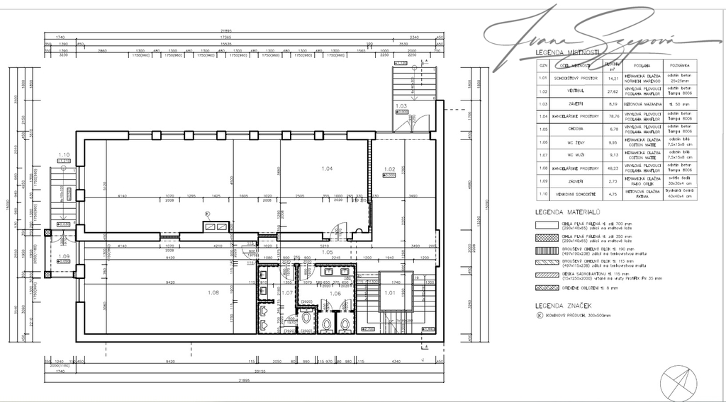
Budova je rozdělena do tří podlaží (1. PP, 1. NP a 2. NP) s užitnou plochou cca 500 m2 a byla
nově zrekonstruována v roce 2025. Jedná se o bývalou vodárnu se železobetonovou konstrukcí.
Dispoziční řešení umožňuje variabilní využití, jak pro vlastní provoz, tak pro kombinaci více provozů či
investiční záměr. Více informací v projektové dokumentaci mezi fotografiemi. Mezi fotografiemi je
rovněž zařazena vizualizace, která znázorňuje finální podobu celého objektu po celkové rekonstrukci a
sjednocení fasády. Díky svému technickému řešení je objekt vhodný zejména pro zdravotnická zařízení,
ordinace, kliniky, rehabilitační centra, administrativu nebo jiné nerušící provozy. Významnou výhodou je
pevná železobetonová konstrukce původní vodárenské stavby, která zajišťuje dlouhodobou stabilitu
objektu. Nemovitost se nachází v zavedené lokalitě služeb v rámci města Jindřichův Hradec s dobrou
dopravní dostupností. Více informací Vám poskytne realitní makléřka Ivana Szepová.
| Cena: | 12 900 000 Kč |
| Číslo zakázky: | REALITYMIX-0012 |
Podrobné informace
- Plocha kanceláří: 500 m²
- Plocha parcely: 260 m²
- Druh objektu: cihlová
- Stav objektu: velmi dobrý
- Druh prostor: Jiné
- Umístění objektu: centrum obce
- Doprava: silnice, autobus
- Komunikace: asfaltová
- Elektřina: Elektro - 230 V
- Voda: Voda - dálkový vodovod
- Plyn: Plynovod
- Odpad: Kanalizace
- Energetická náročnost budovy: C - Úsporná
- Energetický ukazatel podle vyhlášky: č. 264/2020 Sb.
Právní rádce
-
Detail
V tomto článku shrneme nejdůležitější věci, které byste si měli promyslet, pokud se chystáte prodat svou nemovitost a chcete, abyste s kupujícím nemusel následně řešit vzniklé problémy.
Jako prodávající nesete rizika spojená nejen se samotným obchodem, ale i se stavem nemovitosti v době prodeje a pro minimalizaci rizik, je dobré se zamyslet nad uvedenými oblastmi.
-
Detail
Realitní makléř má své nezastupitelné místo v realitním obchodu. Realitním makléřem nemyslím nevzdělané jelito, které absolvovalo dvoudenní školení a ví, jak se nahraje inzerát na inzertní portál.
Realitním makléřem, který se Vám skutečně vyplatí, je zkušený profesionál, který je schopen Vám dobře poradit jak prodat za co nejvíc a s nejmenším rizikem a hlavně je Vás schopen obratně provést celým realitním obchodem.
Mapa
Podobné nemovitosti
Prodej - jiné
Ratiboř, Jindřichův Hradec
9 900 000 Kč
Prodej - obchodní prostor, 78 m²
Svobody, Třeboň II, Jindřichův Hradec
Cena na vyžádání
Prodej - jiné, 682 m²
Valtínov, Jindřichův Hradec
Cena na vyžádání
Prodej - obchodní prostor, 1 020 m²
Klášterská, Jindřichův Hradec II, Jindřichův Hradec
Cena na vyžádání