Prodej bytu, 2+kk, 60 m²
Sedlecká, okr.Karlovy Vary
5 250 000 KčProdej bytu, 2+kk, 60 m²
Sedlecká, okr.Karlovy Vary
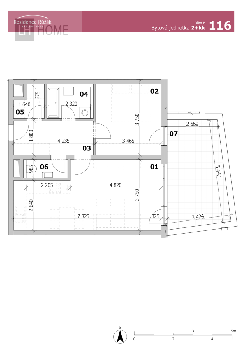
Byt 2+kk, 60,64 m2 + terasa 17,14 m2, Residence Růžák budova B
Byt bude situovaný na východní stranu.
| Cena: | 5 250 000 Kč |
| Datum k nastěhování: | 14.01.2023 |
| Dispozice/podlahová plocha: | 2+kk/60 m² |
| Číslo zakázky: | REALITYMIX-1244 |
| Součástí developerského projektu: | Detail projektu |
| Zobrazit všechny jednotky z projektu: | Zobrazit |
Podrobné informace
- Dispozice bytu: 2+kk
- Číslo podlaží v domě: 1
- Počet podlaží objektu: 4
- Užitná plocha: 60 m²
- Celková podlahová plocha: 60 m²
- Druh objektu: cihlová
- Stav objektu: projekt
- Vlastnictví: osobní
- Sklep: 2 m²
- Terasa: 17 m²
- Vybaveno: ano
- Umístění objektu: klidná část obce
- Doprava: silnice, MHD, autobus
- Elektřina: Elektro - 230 V
- Telekomunikace: Telefon, Internet
- Topení: Ústřední - dálkové
- Odpad: Kanalizace
- Ostatní rozvody: Kabelové rozvody
- Energetická náročnost budovy: B - Velmi úsporná
- Energetický ukazatel podle vyhlášky: č. 264/2020 Sb.
Právní rádce
-
Detail
V tomto článku shrneme nejdůležitější věci, které byste si měli promyslet, pokud se chystáte prodat svou nemovitost a chcete, abyste s kupujícím nemusel následně řešit vzniklé problémy.
Jako prodávající nesete rizika spojená nejen se samotným obchodem, ale i se stavem nemovitosti v době prodeje a pro minimalizaci rizik, je dobré se zamyslet nad uvedenými oblastmi.
-
Detail
Realitní makléř má své nezastupitelné místo v realitním obchodu. Realitním makléřem nemyslím nevzdělané jelito, které absolvovalo dvoudenní školení a ví, jak se nahraje inzerát na inzertní portál.
Realitním makléřem, který se Vám skutečně vyplatí, je zkušený profesionál, který je schopen Vám dobře poradit jak prodat za co nejvíc a s nejmenším rizikem a hlavně je Vás schopen obratně provést celým realitním obchodem.