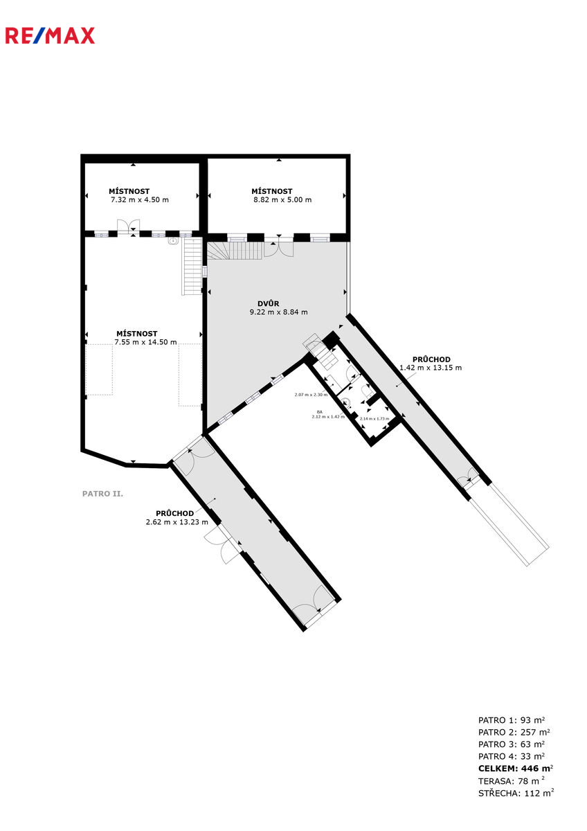
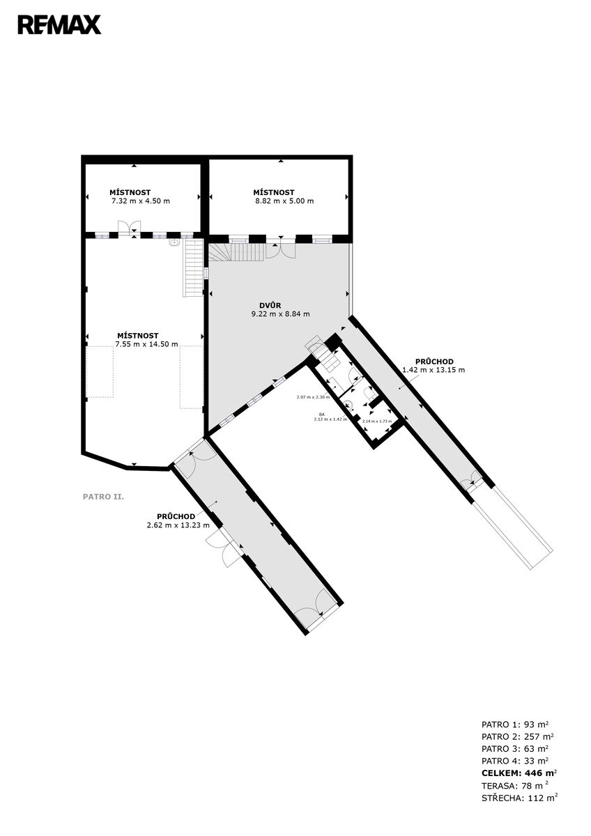
Prodej - obchodní prostor, 446 m²
Svahová, Karlovy Vary
4 399 000 KčProdej - obchodní prostor, 446 m²
Svahová, Karlovy Vary
Prodej komerčních prostor 446 m2 v centru Karlových Varů
Hledáte komerční prostory na exkluzivním místě s vysokým provozem? Nabízíme k prodeji 446 m² v samém srdci Karlových Varů, v oblasti s neustálým tokem turistů i místních obyvatel. Díky své poloze v těsné blízkosti lázeňské zóny, hotelů a obchodních center je tato nemovitost ideální volbou pro podnikání i dlouhodobou investici.
Tento prostor lze využít jako obchodní jednotku, restauraci, showroom, kancelářské prostory nebo loftové bydlení. Součástí objektu jsou také dvě menší bytové jednotky, které lze využít k pronájmu nebo propojit do jednoho většího apartmánu.
Proč investovat právě zde?
✔ TOP lokalita – centrum Karlových Varů, lázeňská čtvrť, blízko hlavních turistických tras
✔ Vysoká frekvence návštěvníků – ideální pro podnikání závislé na zákaznickém provozu
✔ Možnost přizpůsobení – prostor je před rekonstrukcí, což umožňuje vlastní úpravy podle podnikatelského záměru
✔ Velký investiční potenciál – vhodné pro dlouhodobý pronájem nebo rozvoj vlastního podnikání
✔ Dostupnost služeb – výborná občanská vybavenost, snadná dopravní dostupnost
Tato nemovitost nabízí unikátní kombinaci lokality, flexibility a investičního potenciálu. Nezmeškejte možnost vlastnit prostor v jednom z nejnavštěvovanějších měst České republiky!
Pro více informací a prohlídku nás neváhejte kontaktovat Prodávající si vyhrazuje právo vybrat kupujícího na základě jím zvolených kritérií.
| Cena: | 4 399 000 Kč |
| Datum k nastěhování: | 09.08.2024 |
| Číslo zakázky: | REALITYMIX-395183 |
Podrobné informace
- Plocha kanceláří: 446 m²
- Plocha parcely: 636 m²
- Druh objektu: smíšená
- Stav objektu: před rekonstrukcí
- Druh prostor: Obchodní
- Umístění objektu: centrum obce
- Doprava: silnice, MHD, autobus
- Komunikace: asfaltová
- Voda: Voda - dálkový vodovod
- Plyn: Plynovod
- Odpad: Kanalizace
- Energetická náročnost budovy: G - Mimořádně nehospodárná
- Energetický ukazatel podle vyhlášky: č. 264/2020 Sb.
Právní rádce
-
Detail
V tomto článku shrneme nejdůležitější věci, které byste si měli promyslet, pokud se chystáte prodat svou nemovitost a chcete, abyste s kupujícím nemusel následně řešit vzniklé problémy.
Jako prodávající nesete rizika spojená nejen se samotným obchodem, ale i se stavem nemovitosti v době prodeje a pro minimalizaci rizik, je dobré se zamyslet nad uvedenými oblastmi.
-
Detail
Realitní makléř má své nezastupitelné místo v realitním obchodu. Realitním makléřem nemyslím nevzdělané jelito, které absolvovalo dvoudenní školení a ví, jak se nahraje inzerát na inzertní portál.
Realitním makléřem, který se Vám skutečně vyplatí, je zkušený profesionál, který je schopen Vám dobře poradit jak prodat za co nejvíc a s nejmenším rizikem a hlavně je Vás schopen obratně provést celým realitním obchodem.