Prodej bytu, 2+kk, 43 m²
Česká, Kašperské Hory, Klatovy
Cena na vyžádáníProdej bytu, 2+kk, 43 m²
Česká, Kašperské Hory, Klatovy
MODERNÍ 2+KK S VELKÝM BALKONEM A VÝHLEDEM NA ŠUMAVU, PARKOVÁNÍ V DOMĚ, NOVOSTAVBA SE ZÁRUKOU,
Kašperské Hory jsou krásné historické město s rozvinutou infrastrukturou.
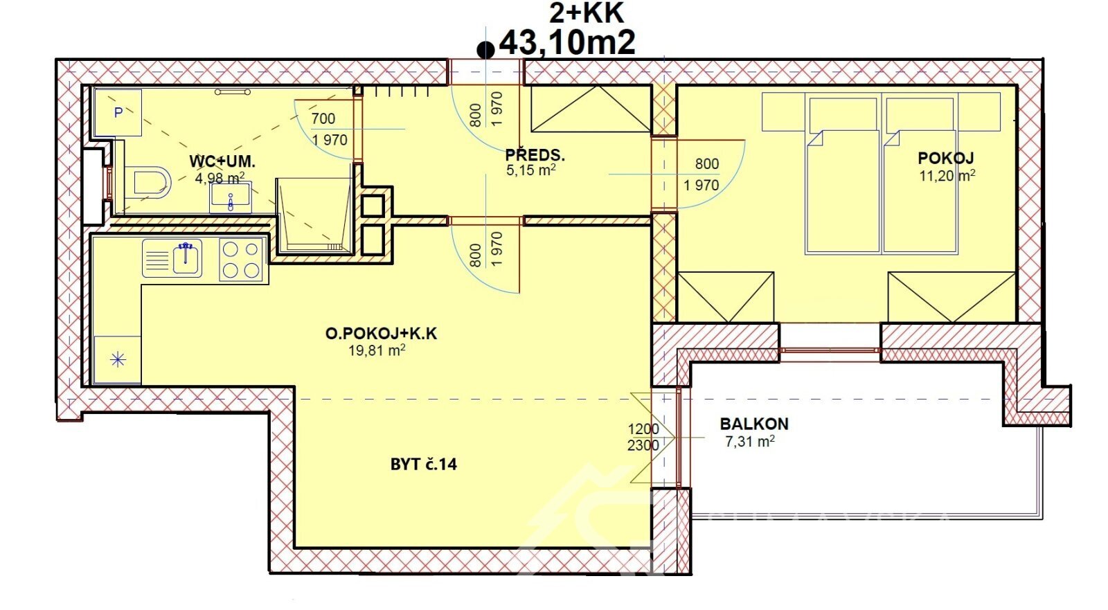
Nabízíme zde k prodeji světlý a moderní byt o dispozici 2+kk a výměře 43 m², situovaný ve 2. nadzemním podlaží právě dokončeného bytového domu s výtahem (celkem 24 bytů).
Dominantou bytu je prostorný balkon o velikosti 7,3 m² orientovaný na jihozápad, který nabízí krásný výhled na Šumavu a dostatek slunce po většinu dne. Obývací pokoj s francouzskými dveřmi na balkon plynule navazuje na kuchyňský kout umístěný v praktickém zálivu. Ložnice má vlastní okno směrem na balkon, což zajišťuje příjemnou atmosféru i dostatek světla.
Koupelna je vybavena sprchovým koutem, závěsným WC, umyvadlem a vyhřívaným žebříkem. Vše v bytě je zcela nové a vztahuje se na něj záruka 5 let.
Velkou výhodou je kryté parkovací stání v suterénu domu, kam pohodlně dojedete výtahem přímo z patra bytu. K bytu je samozřejmě i sklep.
Dům je napojen na ekologické městské vytápění na biomasu, které představuje velmi úsporný a šetrný způsob vytápění s nízkými provozními náklady.
Ideální volba jak pro vlastní bydlení, tak i jako investice. Cenu vám rádi sdělíme.
| Cena: | Cena na vyžádání |
| Poznámka: | informace o ceně v RK |
| Dispozice/podlahová plocha: | 2+kk/43 m² |
| Číslo zakázky: | REALITYMIX-2026019 |
Podrobné informace
- Dispozice bytu: 2+kk
- Číslo podlaží v domě: 2
- Počet podlaží objektu: 1
- Užitná plocha: 43 m²
- Celková podlahová plocha: 43 m²
- Druh objektu: cihlová
- Stav objektu: novostavba
- Vlastnictví: osobní
- Umístění objektu: klidná část obce
- Elektřina: Elektro - 230 V
- Voda: Voda - dálkový vodovod
- Topení: Ústřední - dálkové
- Odpad: Kanalizace
- Energetická náročnost budovy: B - Velmi úsporná
- Energetický ukazatel podle vyhlášky: č. 264/2020 Sb.
Právní rádce
-
Detail
V tomto článku shrneme nejdůležitější věci, které byste si měli promyslet, pokud se chystáte prodat svou nemovitost a chcete, abyste s kupujícím nemusel následně řešit vzniklé problémy.
Jako prodávající nesete rizika spojená nejen se samotným obchodem, ale i se stavem nemovitosti v době prodeje a pro minimalizaci rizik, je dobré se zamyslet nad uvedenými oblastmi.
-
Detail
Realitní makléř má své nezastupitelné místo v realitním obchodu. Realitním makléřem nemyslím nevzdělané jelito, které absolvovalo dvoudenní školení a ví, jak se nahraje inzerát na inzertní portál.
Realitním makléřem, který se Vám skutečně vyplatí, je zkušený profesionál, který je schopen Vám dobře poradit jak prodat za co nejvíc a s nejmenším rizikem a hlavně je Vás schopen obratně provést celým realitním obchodem.
Prodáváte nemovitost a potřebujete zjistit její reálnou hodnotu?
Zjistit reálnou cenuVývoj průměrné ceny za m2 v lokalitě Plzeňský kraj
Prodáváte nemovitost a potřebujete zjistit její reálnou hodnotu?
Zjistit reálnou cenuMapa
Podobné nemovitosti
Prodej bytu, 2+1, 65 m²
U Řezné, Železná Ruda, Klatovy
5 300 000 Kč
Prodej bytu, 2+kk, 49 m²
Alžbětín, Železná Ruda, Klatovy
5 090 000 Kč
Prodej bytu, 2+kk, 143 m²
Rozvojová zóna, Janovice nad Úhlavou, Klatovy
3 678 000 Kč
Prodej bytu, 1+kk, 73 m²
Rozvojová zóna, Janovice nad Úhlavou, Klatovy
1 790 000 Kč