Prodej bytu, 2+kk, 45 m²
Lesní, Kašperské Hory, Klatovy
RezervovánoProdej bytu, 2+kk, 45 m²
Lesní, Kašperské Hory, Klatovy
SLUNNÝ BYT 2+KK V NOVÉM BYTOVÉM DOMĚ V KAŠPERSKÝCH HORÁCH. REZERVOVÁNO
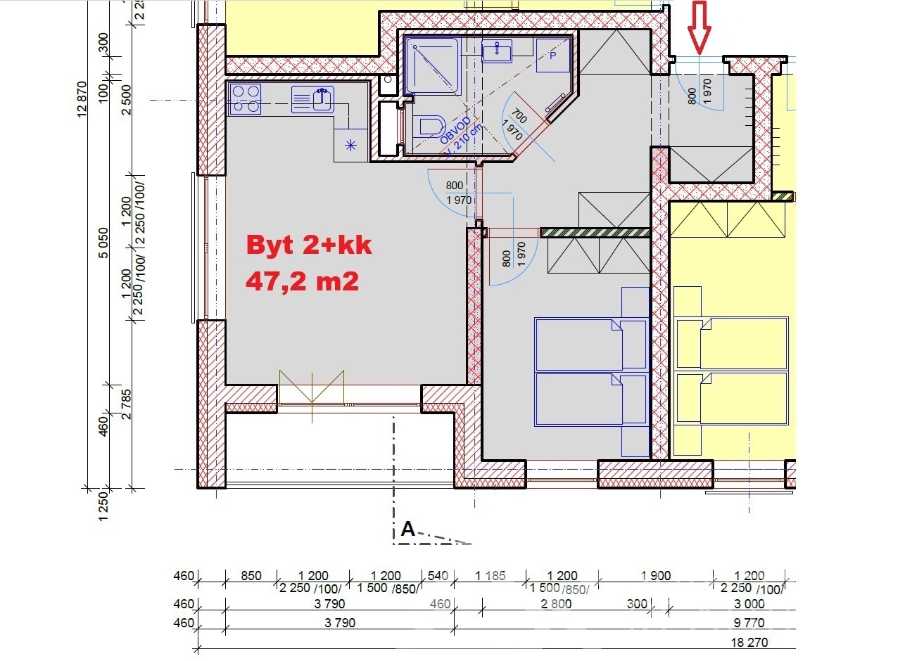
Popis: klasicky zděný bytový dům o 13 bytech byl realizovaný podle kvalitního autorského projektu arch. Radima Hucla. Je vybavený výtahem, v krásné poloze s výhledem na šumavská panoramata v jižně orientovaném pozemku, cca 2 min. pěší chůze od náměstí. Součástí bytu je i venkovní parkovacího stání. Komfortní byt je vybaven kvalitními standardy a výhodou je jižní balkón. Dům je připojen na městskou výtopnu biomasou, byt má samostatné měření tepla, vody a elektřiny. Jedná se o byt ve 2.NP o dispozici 2+kk a podlahové ploše 47 m2. Z chodby vybavené skříní a botníkem jsou vstupy do prostorného a prosvětleného obývacího pokuje s velkou kuchyňskou linkou, jídelním stolem a sedací soupravou. Lodžie s orientací na jih poskytuje výhled na lyžařský areál i možnost pobytu na čerstvém šumavském vzduchu. Samostatná ložnice s jižním oknem může sloužit i jako dětský pokoj. Velkorysá je i koupelna se sprchovým koutem, závěsným WC a pračkou. K bytu je sklepní kóje v přízemí, společná kolárna a jedno soukromé parkovací stání u domu. Objekt je dokonale zateplen a s okny s izolačními trojskly poskytuje perfektní tepelnou pohodu s minimálními náklady na vytápění.
| Cena: | Rezervováno |
| Dispozice/podlahová plocha: | 2+kk/45 m² |
| Číslo zakázky: | REALITYMIX-2026007 |
Podrobné informace
- Dispozice bytu: 2+kk
- Číslo podlaží v domě: 2
- Počet podlaží objektu: 1
- Užitná plocha: 47 m²
- Celková podlahová plocha: 45 m²
- Druh objektu: cihlová
- Stav objektu: novostavba
- Vlastnictví: osobní
- Umístění objektu: klidná část obce
- Elektřina: Elektro - 230 V
- Voda: Voda - dálkový vodovod
- Topení: Ústřední - dálkové
- Odpad: Kanalizace
- Energetická náročnost budovy: B - Velmi úsporná
- Energetický ukazatel podle vyhlášky: č. 264/2020 Sb.
Právní rádce
-
Detail
V tomto článku shrneme nejdůležitější věci, které byste si měli promyslet, pokud se chystáte prodat svou nemovitost a chcete, abyste s kupujícím nemusel následně řešit vzniklé problémy.
Jako prodávající nesete rizika spojená nejen se samotným obchodem, ale i se stavem nemovitosti v době prodeje a pro minimalizaci rizik, je dobré se zamyslet nad uvedenými oblastmi.
-
Detail
Realitní makléř má své nezastupitelné místo v realitním obchodu. Realitním makléřem nemyslím nevzdělané jelito, které absolvovalo dvoudenní školení a ví, jak se nahraje inzerát na inzertní portál.
Realitním makléřem, který se Vám skutečně vyplatí, je zkušený profesionál, který je schopen Vám dobře poradit jak prodat za co nejvíc a s nejmenším rizikem a hlavně je Vás schopen obratně provést celým realitním obchodem.