Prodej - komerční objekt, jiný, 544 m²
Kmochova, Kolín II, Kolín
8 800 000 KčProdej - komerční objekt, jiný, 544 m²
Kmochova, Kolín II, Kolín
Prodej komerčních prostor 544 m2, Kmochova 561, Kolín
pokud jste investor, podnikatel nebo developer hledající výjimečný projekt v centru města, zbystřete.
Nabízím k prodeji jedinečnou nemovitost přímo v centru města Kolína, na adrese Kmochova 561. Jedná se o známý objekt s výraznou historií a silným investičním potenciálem. Budova není památkově chráněna, což umožňuje široké možnosti budoucího využití či přestavby.
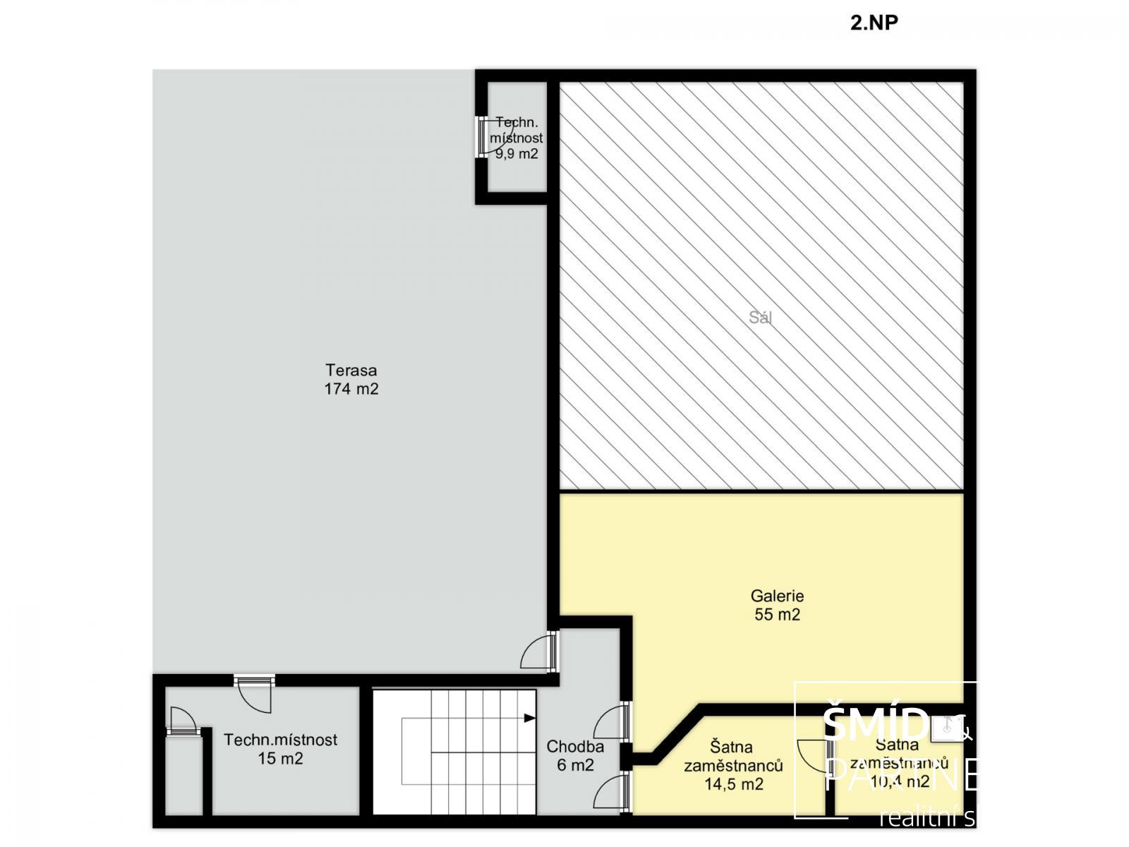
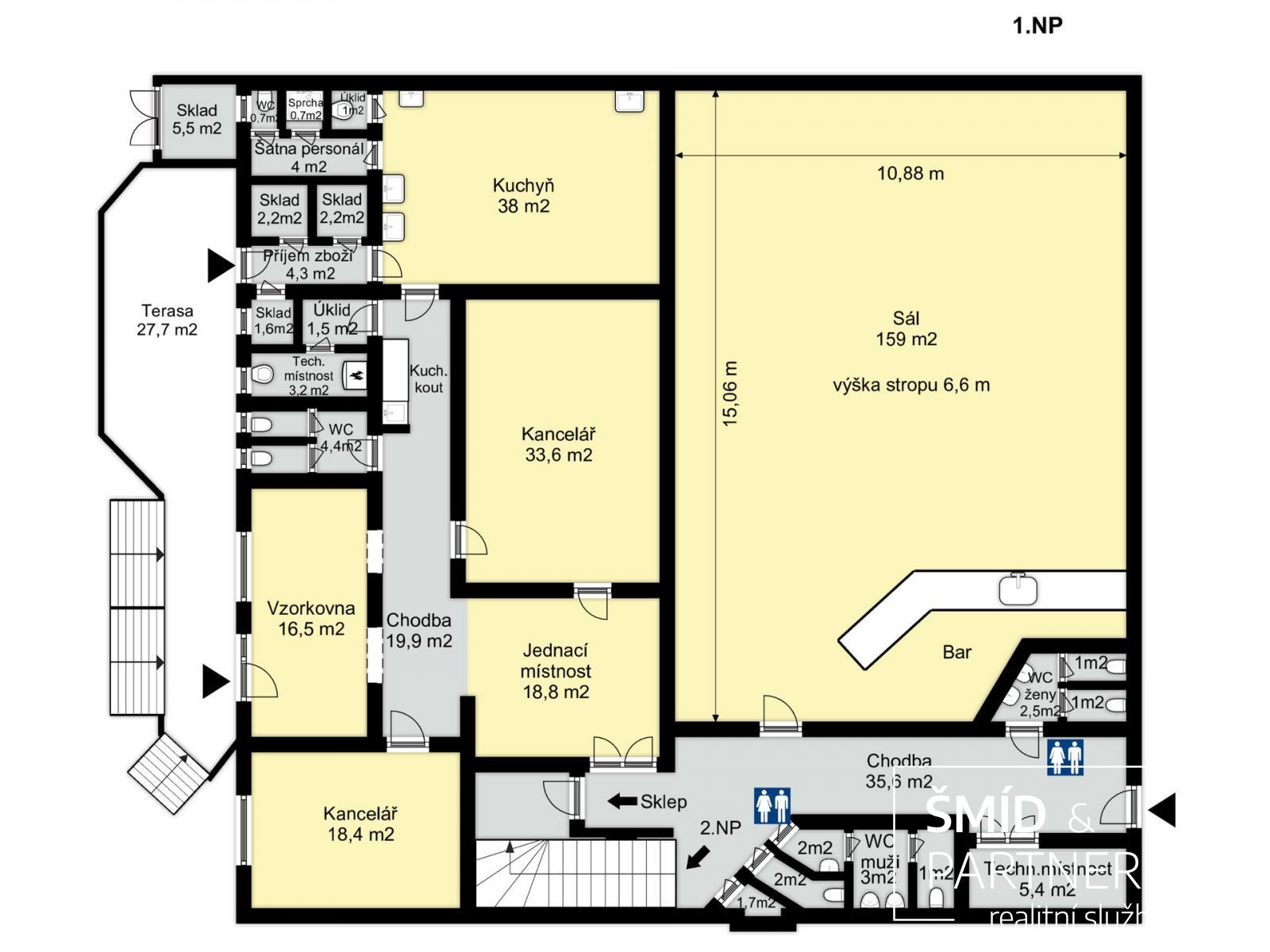
Hlavní objekt bývalého Francova kina byl postaven v roce 1912, ve 40. letech přejmenován na kino Oko a v 90. letech využíván jako diskoklub. Aktuálně se zde nachází prostorný sál s balkonem, dva bary a kancelářské zázemí. Elektroinstalace je částečně v mědi a částečně v hliníku.
Zadní část objektu, původně sloužící mimo jiné jako restaurace, má dva samostatné vstupy z ulice Politických vězňů. Část této přístavby byla v roce 2020 upravena pro kancelářské využití, zbývající část zůstává v původním technickém stavu.
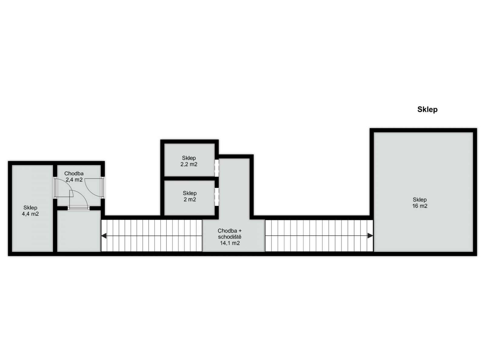
Objekt je rozdělen na dvě funkční části, které jsou napojeny na ústřední plynové vytápění. Každá část má vlastní měření spotřeby vody a elektřiny. Celková užitná plocha činí 544 m a k dispozici je také větší množství sociálních zařízení.
Zadní přístavba bývalé restaurace byla zkolaudována, ale bohužel nedošlo k jejímu zákresu na katastrálním úřadě. S ohledem na možné budoucí stavební úpravy či změnu využití objektu je tato skutečnost řešitelná v návaznosti na záměr budoucího vlastníka.
Vzhledem ke stáří objektu je nutné počítat s technickým stavem odpovídajícím jeho věku, včetně výskytu lokální vlhkosti.
Dle územního plánu se nemovitost nachází v ploše smíšeného městského území (SO2).
Celková plocha pozemku činí 573 m.
Vzhledem k rozsahu a potenciálu objektu doporučuji osobní prohlídku, případně Vám rád poskytnu podrobnější informace na vyžádání.
V případě zájmu mě neváhejte kontaktovat.
| Cena: | 8 800 000 Kč |
| Plocha: | 544 m² |
| Číslo zakázky: | REALITYMIX-695 |
Podrobné informace
- Celková plocha: 544 m²
- Druh objektu: cihlová
- Stav objektu: dobrý
- Účel budovy: Jiný
- Umístění objektu: centrum obce
- Doprava: vlak, dálnice, silnice, MHD, autobus
- Topení: Ústřední - plynové
- Odpad: Kanalizace
- Energetická náročnost budovy: G - Mimořádně nehospodárná
Právní rádce
-
Detail
V tomto článku shrneme nejdůležitější věci, které byste si měli promyslet, pokud se chystáte prodat svou nemovitost a chcete, abyste s kupujícím nemusel následně řešit vzniklé problémy.
Jako prodávající nesete rizika spojená nejen se samotným obchodem, ale i se stavem nemovitosti v době prodeje a pro minimalizaci rizik, je dobré se zamyslet nad uvedenými oblastmi.
-
Detail
Realitní makléř má své nezastupitelné místo v realitním obchodu. Realitním makléřem nemyslím nevzdělané jelito, které absolvovalo dvoudenní školení a ví, jak se nahraje inzerát na inzertní portál.
Realitním makléřem, který se Vám skutečně vyplatí, je zkušený profesionál, který je schopen Vám dobře poradit jak prodat za co nejvíc a s nejmenším rizikem a hlavně je Vás schopen obratně provést celým realitním obchodem.