Prodej - penzion, 743 m²
Lidická, Kunovice, Uherské Hradiště
7 000 000 KčProdej - penzion, 743 m²
Lidická, Kunovice, Uherské Hradiště
Prodej, Pension 747 m2, Kunovice
Okamžitý start - 14 ubytovacích jednotek - 743 m and sup2; užitné plochy
PŘIPRAVENÝ INVESTIČNÍ PROJEKT
Výjimečná příležitost pro investory! Nabízíme kompletně připravený projekt výstavby penzionu v Kunovicích s platným stavebním povolením a hotovou projektovou dokumentací. Začněte stavět prakticky ihned!
KLÍČOVÉ PARAMETRY INVESTICE
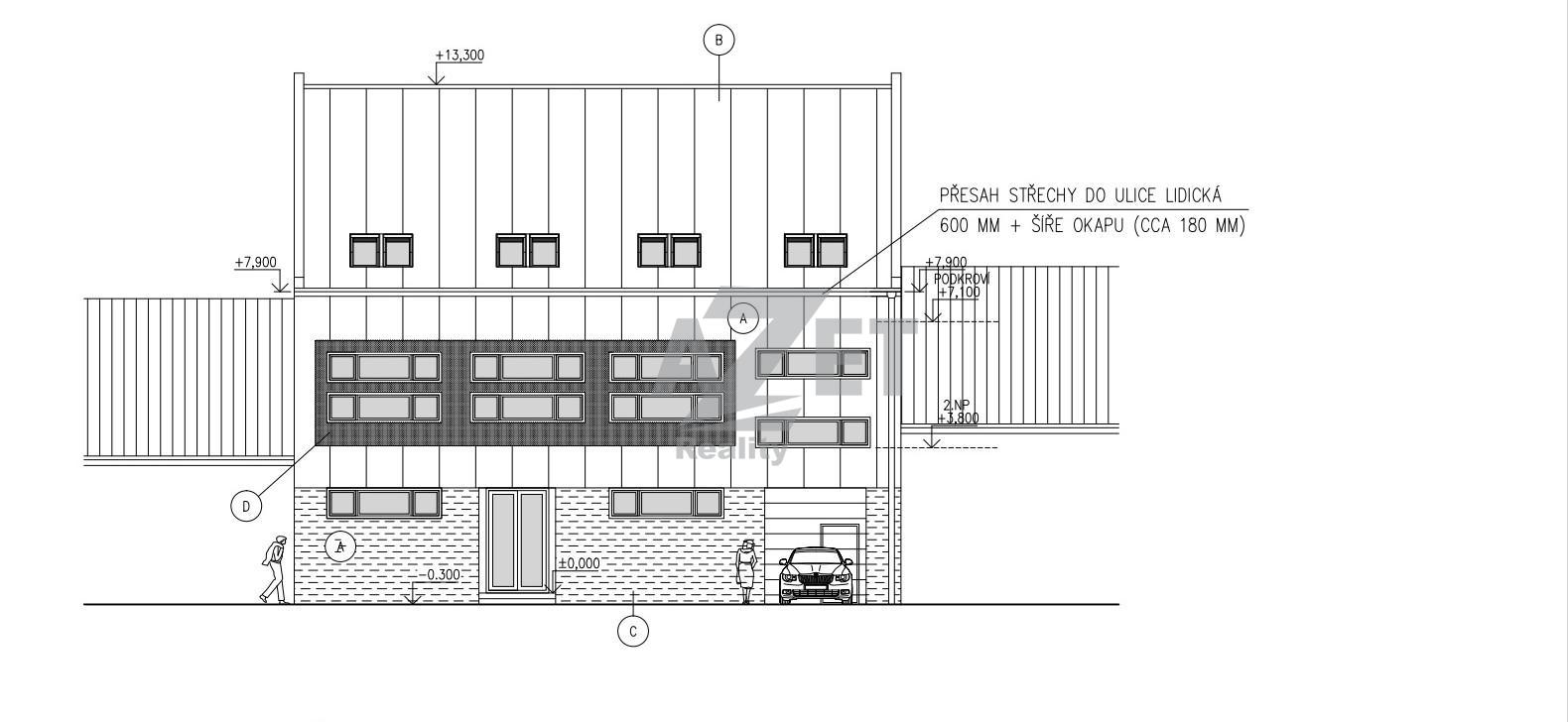
Užitná plocha: 743,60 m and sup2; na třech podlažích
Kapacita: 14 ubytovacích jednotek + wellness zázemí
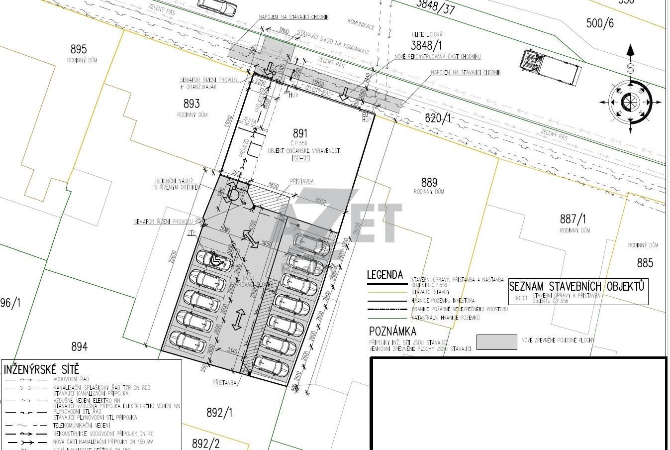
Parkování: 12 stání na vlastním pozemku (včetně ZTP)
Lokalita: Kunovice, ul. Lidická - výborná dostupnost
Stav: platné stavební povolení, okamžitý start možný
Klíčové výhody investice: platné stavební povolení umožňuje okamžitý start bez zbytečného zdržení, atraktivní lokalita v zavedené zástavbě s výbornou dostupností a strategická poloha u hlavní komunikace podporují vysoký potenciál vytíženosti, v objektu je zároveň možné vybudovat menší bytové jednotky pro dlouhodobé nájemní bydlení. K dispozici je velkorysá užitná plocha 743,60 m and sup2; na třech podlažích.
DISPOZICE PENZIONU
Podlaží Plocha Pobytová plocha Jednotky
1.NP 188 m and sup2; 58 m and sup2; 3 jednotky
2.NP 277 m and sup2; 103 m and sup2; 6 jednotek
Podkroví 278 m and sup2; 67 m and sup2; 5 jednotek
CELKEM 743 m and sup2; 28 m and sup2; 14 jednotek
TECHNICKÉ ŘEŠENÍ
Konstrukce: Nové nosné zdivo Ytong, příčky SDK
Kontaktní zateplení 150 mm
Nové stropy (ocelové profily + ŽB deska)
Krov a krytina Prefa Prefalz
Plastová okna s trojsklem
Vytápění a TUV:
Elektrické podlahové vytápění
Elektrické bojlery 100 l
Sítě:
Vodovod, kanalizace, elektřina - připojeno
Retenční nádrž pro dešťové vody
LOKALITA A DOSTUPNOST
Kunovice - ulice Lidická
Strategická poloha u hlavní komunikace
Zavedená zástavba rodinných domů
Výborné dopravní napojení
Blízkost městské infrastruktury
Vlastní dvůr s parkováním
FLEXIBILNÍ MOŽNOSTI
Územní plán umožňuje změnu záměru na:
Dům s nájemními byty
Apartmánový dům
Firemní ubytování
Kombinace bydlení a služeb
VHODNÉ PRO
Investory hledající okamžitý start projektu
Developery se zaměřením na ubytovací služby
Podnikatele v cestovním ruchu
Firmy řešící ubytování zaměstnanců
STAVEBNÍ ÚDAJE
Zastavěná plocha: 362 m and sup2;
Obestavěný prostor: 3.868 m and sup3;
Pozemek: s vlastním dvorem a parkováním
Stav objektu: připraven k rekonstrukci dle PD
CO ZÍSKÁTE
Platné stavební povolení
Kompletní projektovou dokumentaci
Připravený pozemek se sítěmi
Možnost okamžitého startu
Flexibilní využití objektu
Garantovanou návratnost investice
UPOZORNĚNÍ
Vizualizace jsou ilustrativní a slouží k lepší představě o potenciálu projektu. Závazné jsou údaje z projektové dokumentace.
KONTAKT
Maximalizujte potenciál této investice! Pro kompletní projektovou dokumentaci, finanční analýzu projektu, domluvení prohlídky nebo individuální investiční scénář mě kontaktujte.
Připraven k okamžitému startu Platné povolení Výnosná investice
Investiční projekt s garantovaným potenciálem v atraktivní lokalitě Kunovic
| Cena: | 7 000 000 Kč |
| Poznámka: | Konečná cena včetně právního servisu a provize RK. |
| Číslo zakázky: | REALITYMIX-1733 |
Podrobné informace
- Zastavěná plocha: 362 m²
- Užitná plocha: 743 m²
- Plocha parcely: 564 m²
- Počet podlaží objektu: 3
- Druh objektu: cihlová
- Stav objektu: před rekonstrukcí
- Typ zařízení: Penzion
- Umístění objektu: klidná část obce
- Doprava: vlak, dálnice, silnice, MHD, autobus
- Elektřina: Elektro - 230 V, Elektro - 400 V
- Voda: Zdroj pro celý objekt
- Telekomunikace: Internet
- Topení: Lokální - elektrické
- Odpad: Kanalizace
Právní rádce
-
Detail
V tomto článku shrneme nejdůležitější věci, které byste si měli promyslet, pokud se chystáte prodat svou nemovitost a chcete, abyste s kupujícím nemusel následně řešit vzniklé problémy.
Jako prodávající nesete rizika spojená nejen se samotným obchodem, ale i se stavem nemovitosti v době prodeje a pro minimalizaci rizik, je dobré se zamyslet nad uvedenými oblastmi.
-
Detail
Realitní makléř má své nezastupitelné místo v realitním obchodu. Realitním makléřem nemyslím nevzdělané jelito, které absolvovalo dvoudenní školení a ví, jak se nahraje inzerát na inzertní portál.
Realitním makléřem, který se Vám skutečně vyplatí, je zkušený profesionál, který je schopen Vám dobře poradit jak prodat za co nejvíc a s nejmenším rizikem a hlavně je Vás schopen obratně provést celým realitním obchodem.