Prodej bytu, 2+1, 47 m²
Na Sibiři, Ledeč nad Sázavou, Havlíčkův Brod
3 490 000 KčProdej bytu, 2+1, 47 m²
Na Sibiři, Ledeč nad Sázavou, Havlíčkův Brod
Prodej bytu 2+1, Na Sibiři, Ledeč nad Sázavou
Nabízíme k prodeji byt o dispozici 2+1 v ulici Na Sibiři v Ledči nad Sázavou, který nabízí příjemné a prakticky řešené bydlení.
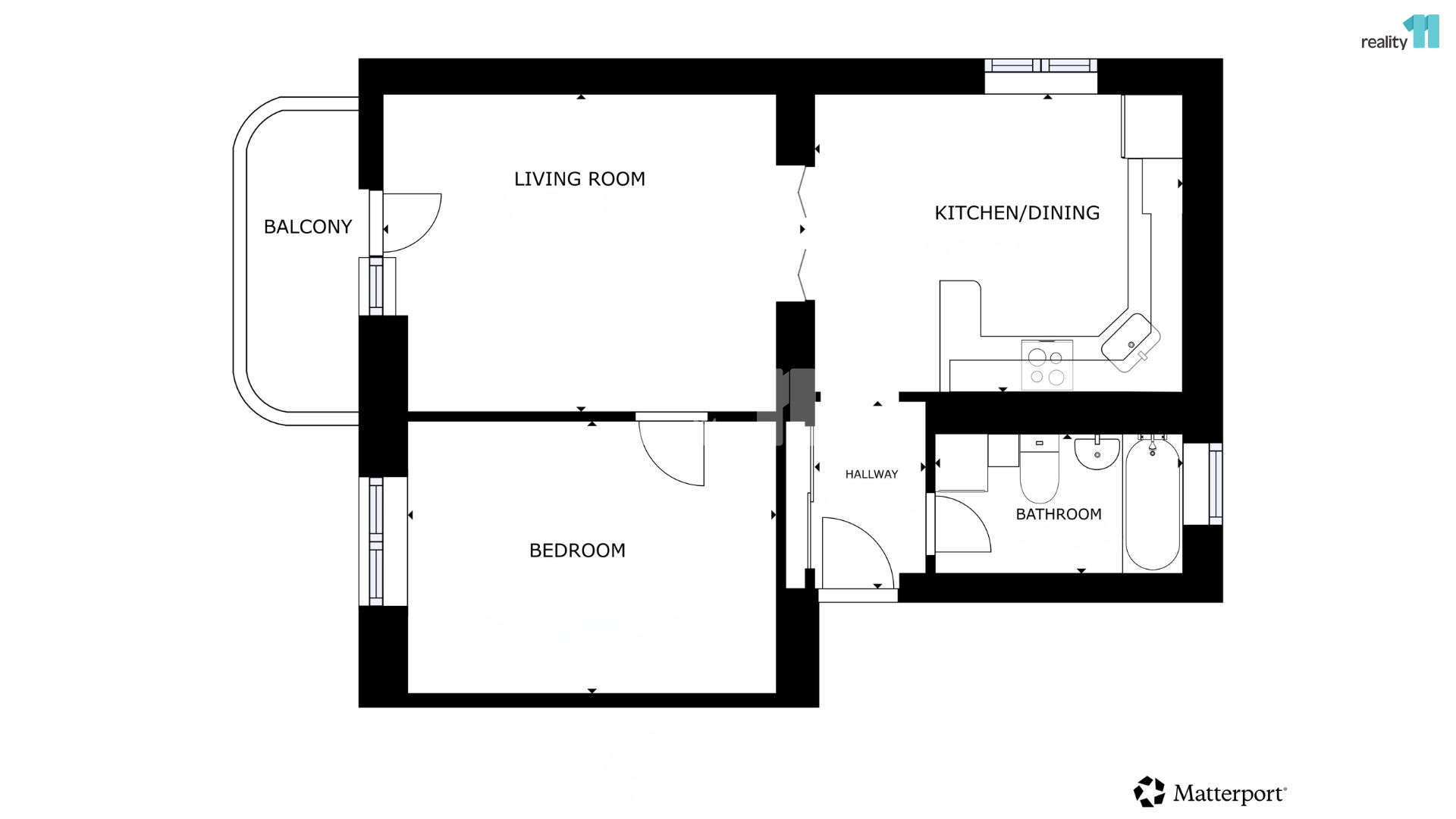
Dispozice bytu je navržena tak, aby nabídla pohodlné a praktické bydlení na užitné ploše 47,3 m². Najdete zde vstupní chodbu, koupelnu s WC, prostornou kuchyni, obývací pokoj i samostatnou ložnici, takže každý prostor má své jasné využití. Příjemným benefitem je také balkón o velikosti 4 m², kde si můžete dopřát čerstvý vzduch a chvíle klidu kdykoliv během dne. K bytu dále náleží dva sklepy o velikosti 5,05 m² a 1,40 m², které nabídnou dostatek úložného prostoru pro všechny vaše potřeby. Za domem navíc najdete dostatek parkovacích míst, což vám výrazně usnadní každodenní fungování.
Ledeč nad Sázavou leží v srdci Vysočiny a nabízí ideální kombinaci klidného bydlení a kompletní občanské vybavenosti. Najdete zde mateřské i základní školy, obchody, lékaře, restaurace i sportovní zázemí. Okolí města je doslova protkané krásnou přírodou – ať už se vydáte na cyklostezku podél řeky Sázavy, vyrazíte na procházku do přírodní rezervace Stvořidla, nebo se projdete na vrchol Melechov, vždy budete mít přírodu na dosah ruky. Dominantou města je navíc hrad, který dotváří jedinečnou atmosféru celého místa.
K dispozici máme také 3D virtuální prohlídku, díky které si můžete byt projít z pohodlí domova. Na vyžádání ji velmi rádi zašleme.
Zaujal vás tento byt?
Neváhejte mě kontaktovat. Ev. číslo: 28122.
| Cena: | 3 490 000 Kč |
| Dispozice/podlahová plocha: | 2+1/47 m² |
| Číslo zakázky: | REALITYMIX-28122 |
Podrobné informace
- Dispozice bytu: 2+1
- Číslo podlaží v domě: 1
- Počet podlaží objektu: 3
- Celková podlahová plocha: 47 m²
- Druh objektu: cihlová
- Stav objektu: velmi dobrý
- Vlastnictví: osobní
- Umístění objektu: klidná část obce
- Voda: Voda - dálkový vodovod
- Topení: Ústřední - dálkové
- Odpad: Kanalizace
- Energetická náročnost budovy: D - Méně úsporná
- Energetický ukazatel podle vyhlášky: č. 78/2013 Sb.
- Popis vybavení: ...
Právní rádce
-
Detail
V tomto článku shrneme nejdůležitější věci, které byste si měli promyslet, pokud se chystáte prodat svou nemovitost a chcete, abyste s kupujícím nemusel následně řešit vzniklé problémy.
Jako prodávající nesete rizika spojená nejen se samotným obchodem, ale i se stavem nemovitosti v době prodeje a pro minimalizaci rizik, je dobré se zamyslet nad uvedenými oblastmi.
-
Detail
Realitní makléř má své nezastupitelné místo v realitním obchodu. Realitním makléřem nemyslím nevzdělané jelito, které absolvovalo dvoudenní školení a ví, jak se nahraje inzerát na inzertní portál.
Realitním makléřem, který se Vám skutečně vyplatí, je zkušený profesionál, který je schopen Vám dobře poradit jak prodat za co nejvíc a s nejmenším rizikem a hlavně je Vás schopen obratně provést celým realitním obchodem.
Prodáváte nemovitost a potřebujete zjistit její reálnou hodnotu?
Zjistit reálnou cenuVývoj průměrné ceny za m2 v lokalitě Kraj Vysočina
Prodáváte nemovitost a potřebujete zjistit její reálnou hodnotu?
Zjistit reálnou cenuPodobné nemovitosti
Prodej bytu, 2+1, 55 m²
Jiskrova, Havlíčkův Brod
Prodáno
Prodej bytu, 3+kk, 73 m²
Na Bradle, Světlá nad Sázavou, Havlíčkův Brod
5 890 000 Kč
Prodej bytu, 3+kk, 99 m²
Na Bradle, Světlá nad Sázavou, Havlíčkův Brod
5 890 000 Kč
Prodej bytu, 3+kk, 73 m²
Na Bradle, Světlá nad Sázavou, Havlíčkův Brod
5 290 000 Kč