Prodej bytu, 1+kk, 40 m²
1. máje, okr.Liberec
4 100 000 KčProdej bytu, 1+kk, 40 m²
1. máje, okr.Liberec
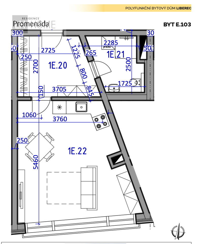
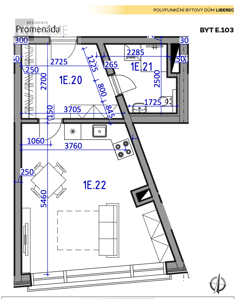
Prodej bytu 1+kk, Residence Promenáda
Byt se bude nacházet ve 3. nadzemním podlaží. Byt bude orientovaný na jižní stranu.
Celkem bude v budově B 9. nadzemních podlaží a 3. podzemní podlaží, kde budou garážová stání.
V 1. a 2. nadzemním patře budou komerční prostory.
Součástí kupní ceny jsou vinylové podlahy, keramické obklady a dlažby v koupelně a na wc. Vana, skříňka s umyvadlem a zrcadlem, topný žebřík, oddělená toaleta s umyvadélkem, Interiérové dveře s obložkami - bílé.
Součástí každého bytu bude videotelefon.
Ke každé bytové jednotce je nutné zakoupit garážové stání a sklep.
Nízké provozní náklady garantuje energetický štítek B.
Předpokládaný termín zahájení výstavby 3Q 2024, předpokládaný termín dokončení 4Q 2027.
Byt je možné zakoupit do osobního nebo družstevního vlastnictví.
Všechny naše projekty je možné vidět na našich webových stránkách.
Celkem bude v tomto novém projektu 247 nových bytů o dispozicích 1+kk, 2+kk a 3+kk.
Na prvních 50 bytů bude poskytnuta sleva ve výši 10%. Nabídková cena je před uplatněním slevy.
Více informací již brzy na našich webových stránkách.
V případě bližších informací jsme k dispozici.
Parcelní číslo 4064/3
| Cena: | 4 100 000 Kč |
| Poznámka: | cena je uvedena vč. DPH a před uplatněním slevy |
| Dispozice/podlahová plocha: | 1+kk/40 m² |
| Číslo zakázky: | REALITYMIX-1598 |
Podrobné informace
- Dispozice bytu: 1+kk
- Číslo podlaží v domě: 1
- Počet podlaží objektu: 7
- Užitná plocha: 40 m²
- Celková podlahová plocha: 40 m²
- Druh objektu: cihlová
- Stav objektu: ve výstavbě (hrubá stavba)
- Vlastnictví: osobní
- Vybaveno: ano
- Umístění objektu: centrum obce
- Doprava: MHD
- Elektřina: Elektro - 120 V, Elektro - 230 V, Elektro - 400 V
- Topení: Ústřední - dálkové
- Odpad: Kanalizace
- Ostatní rozvody: Kabelové rozvody
- Energetická náročnost budovy: A - Mimořádně úsporná
- Energetický ukazatel podle vyhlášky: č. 264/2020 Sb.
Právní rádce
-
Detail
V tomto článku shrneme nejdůležitější věci, které byste si měli promyslet, pokud se chystáte prodat svou nemovitost a chcete, abyste s kupujícím nemusel následně řešit vzniklé problémy.
Jako prodávající nesete rizika spojená nejen se samotným obchodem, ale i se stavem nemovitosti v době prodeje a pro minimalizaci rizik, je dobré se zamyslet nad uvedenými oblastmi.
-
Detail
Realitní makléř má své nezastupitelné místo v realitním obchodu. Realitním makléřem nemyslím nevzdělané jelito, které absolvovalo dvoudenní školení a ví, jak se nahraje inzerát na inzertní portál.
Realitním makléřem, který se Vám skutečně vyplatí, je zkušený profesionál, který je schopen Vám dobře poradit jak prodat za co nejvíc a s nejmenším rizikem a hlavně je Vás schopen obratně provést celým realitním obchodem.