Prodej bytu, 3+kk, 101 m²
Jáchymovská, Liberec (nečleněné město), Liberec
10 600 000 KčProdej bytu, 3+kk, 101 m²
Jáchymovská, Liberec (nečleněné město), Liberec
Prodej bytu 3+kk 97 m² Jáchymovská, Liberec - Liberec X-Františkov
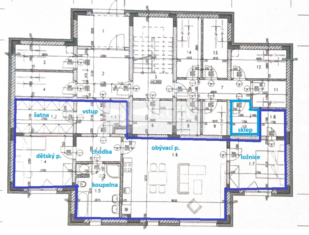
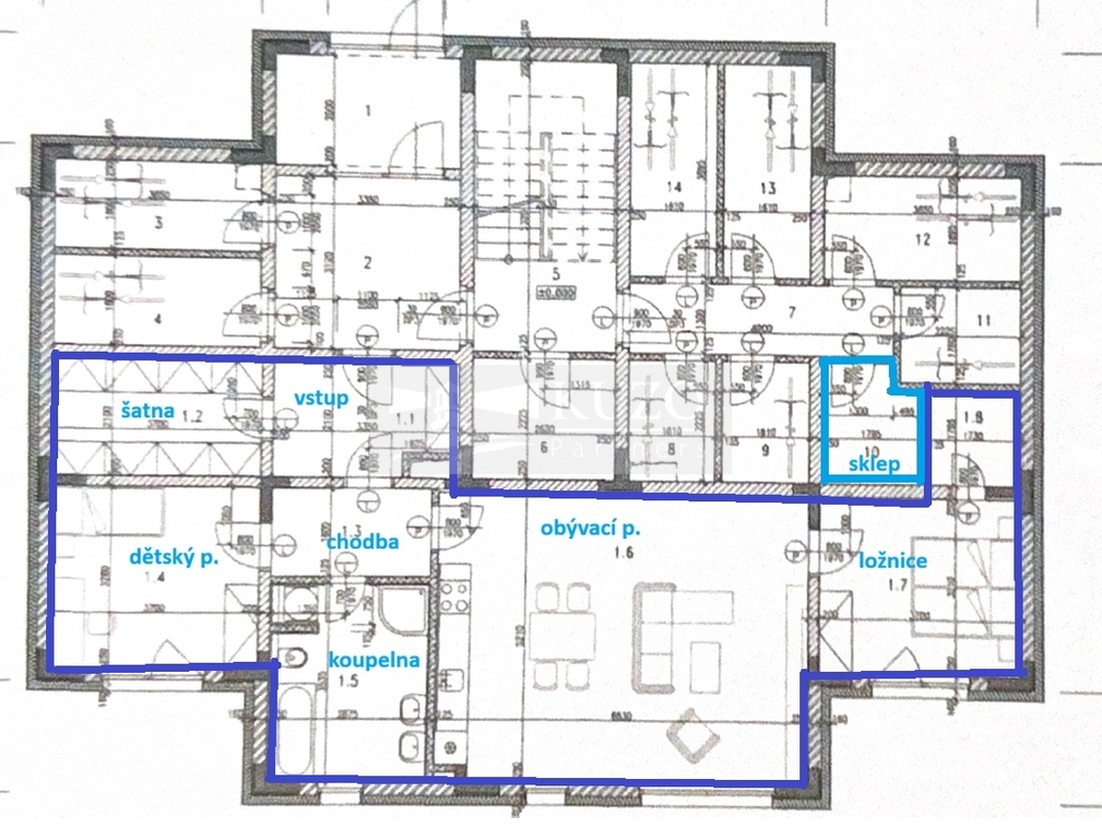
Jednou z předností bytu je přístupná předzahrádka z každé obytné místnosti. Dokončovací práce byly provedeny v nadstandardu (vinylová podlaha, dlažba Piemme - limestone v dekoru kamene, dveře Sapeli). Obývací pokoj je velkoryse navržen, aby bylo možné prostor rozdělit na část kuchyňskou, jídelní a odpočinkovou. Kuchyně byla navržena do tvaru L a je vybavena vestavěnými spotřebiči AEG. V bytě naleznete dostatek úložných ploch, které nijak nezasahují do obytných místností. První úložný prostor je ve vstupní chodbě v podobě vestavěné skříně. Další již samostatná šatna s vestavěným úložným systémem je přístupná taktéž z chodby a poslední šatní prostor patří k ložnici. Dalším bonusem je rozvedený internet do každé místnosti, optický kabel zavedený do bytu a pro venkovní prostor jsou umístěny rozvody na kamerový systém.
Tento prostorný byt má výhled pouze do vlastní zahrady a na nejbližší okolí. Příjezdová místní komunikace je na opačné straně, do bytu tak nezasahuje ruch okolní komunikace.
Zahradu tvoří částečně travnatá plocha a částečně dlažba v prostoru terasy a zpevněný chodník, vedoucí až k vstupní brance k parkovišti. Pozemek je kompletně oplocen. Je možné používat hlavní vchod, ale i soukromý vstup z parkoviště.
Koupelna byla vybavena špičkovými podomítkovými zařizovací předměty Hans Grohe. Najdete tu vanu i sprchový kout, dále WC a místo pro pračku i sušičku. I přes to vše, je zde stále dost volného prostoru a místnost nepůsobí přeplněně.
Byt je velmi praktický, bezbariérový a poskytuje dostatečné soukromí a klid od ruchu města. Orientovaný je převážně západním směrem.
Na daném patře je k dispozici sklep vel. 3,8 m2 a na parkovišti jedno parkovací místo. Vjezd je umožněn pouze uživatelům bytového domu.
Kolaudace domu proběhla v roce 2021.
Jednotka je ve vynikajícím technickém stavu a není třeba očekávat žádné investice z důvodu potřeby okamžité údržby ani oprav.
Vytápění pro celý objekt zajišťují tepelná čerpadla. Byty mají podlahové vytápění, teplotu je možné nastavit na dálku přes aplikaci. En. náročnost objektu je třída A. Je zde velice nízká spotřeba na energie, vyúčtování za minulý rok je pro budoucí zájemce k dispozici. Bydlení uspokojí i náročnější uživatele, rodinu i osobu s omezenou pohyblivostí.
V těsné blízkosti najdete kompletní občanskou vybavenost (obchod, škola, školka, zastávka MHD, tramvaj, restaurace i přímé napojení na hlavní tah Libercem). V blízkém okolí je dostatek přírody a možnosti k procházkám (např. blízký Ještěd – cca 10 minut, okolí letiště). Více informací i prohlídku nemovitosti rádi zajistíme.
| Cena: | 10 600 000 Kč |
| Datum k nastěhování: | 26.02.2026 |
| Dispozice/podlahová plocha: | 3+kk/101 m² |
| Číslo zakázky: | REALITYMIX-22221 |
Podrobné informace
- Dispozice bytu: 3+kk
- Číslo podlaží v domě: 1
- Počet podlaží objektu: 4
- Užitná plocha: 97 m²
- Celková podlahová plocha: 101 m²
- Druh objektu: skeletová
- Stav objektu: novostavba
- Vlastnictví: osobní
- Sklep: 4 m²
- Vybaveno: ano
- Umístění objektu: okraj obce
- Doprava: vlak, silnice, MHD, autobus
- Elektřina: Elektro - 230 V, Elektro - 400 V
- Voda: Voda - dálkový vodovod
- Telekomunikace: Internet
- Odpad: Kanalizace
- Energetická náročnost budovy: B - Velmi úsporná
- Ukazatel energetické náročnosti budovy: 55 kWh/m²
- Energetický ukazatel podle vyhlášky: č. 78/2013 Sb.
Právní rádce
-
Detail
V tomto článku shrneme nejdůležitější věci, které byste si měli promyslet, pokud se chystáte prodat svou nemovitost a chcete, abyste s kupujícím nemusel následně řešit vzniklé problémy.
Jako prodávající nesete rizika spojená nejen se samotným obchodem, ale i se stavem nemovitosti v době prodeje a pro minimalizaci rizik, je dobré se zamyslet nad uvedenými oblastmi.
-
Detail
Realitní makléř má své nezastupitelné místo v realitním obchodu. Realitním makléřem nemyslím nevzdělané jelito, které absolvovalo dvoudenní školení a ví, jak se nahraje inzerát na inzertní portál.
Realitním makléřem, který se Vám skutečně vyplatí, je zkušený profesionál, který je schopen Vám dobře poradit jak prodat za co nejvíc a s nejmenším rizikem a hlavně je Vás schopen obratně provést celým realitním obchodem.
Prodáváte nemovitost a potřebujete zjistit její reálnou hodnotu?
Zjistit reálnou cenuVývoj průměrné ceny za m2 v lokalitě Liberec
Prodáváte nemovitost a potřebujete zjistit její reálnou hodnotu?
Zjistit reálnou cenuMapa
Podobné nemovitosti
Prodej bytu, 3+kk, 88 m²
Švermova, Liberec (nečleněné město), Liberec
8 895 200 Kč
Prodej bytu, 3+kk, 88 m²
Švermova, Liberec (nečleněné město), Liberec
8 863 200 Kč
Prodej bytu, 3+kk, 119 m²
Tovární, Liberec (nečleněné město), Liberec
8 826 400 Kč
Prodej bytu, 3+kk, 72 m²
Na Perštýně, Liberec (nečleněné město), Liberec
8 630 000 Kč