Prodej - chata/rekreační objekt, 178 m²
Březka, Jičín
Cena na vyžádáníProdej - chata/rekreační objekt, 178 m²
Březka, Jičín
Investiční příležitost v Českém ráji – tři samostatné chaty s výnosem
Každá chata disponuje vlastní kuchyní, koupelnou, obytnou částí, ložnicemi a zastřešenou terasou. Standard vybavení zahrnuje podlahové vytápění, krbová kamna, Wi-Fi, TV a plně vybavenou kuchyni (včetně varné desky, mikrovlnky, lednice, rychlovarné konvice a Nespresso kávovaru). V exteriéru nechybí slaný bazén, solární sprcha, gril a kolárna.
Celý areál je navržen s důrazem na maximální soukromí, komfort a přírodní atmosféru. Umístění na konci vesnice, obklopené stromy a s výhledem na vodní plochu, nabízí výjimečný klid bez jakéhokoliv rušení.
Areál se nachází v turisticky nejatraktivnější části Českého ráje, v těsné blízkosti hlavních přírodních a kulturních cílů.
Hlavní investiční parametry
• atraktivní turistická lokalita v srdci Českého ráje
• žádané místo s vysokou poptávkou po krátkodobém pronájmu
• tři samostatné novostavby zkolaudované v roce 2019
• celková kapacita 10+1 lůžek (4, 4, 2+1)
• celková užitná plocha 178 m²
• pozemek o výměře 2 455 m² s výhledem na rybník a les
• bazény se slanou vodou
• značka Apardo.cz včetně profesionální prezentace: www.apardo.cz, Instagram, Facebook
• zpevněné parkování až pro 9 vozidel přímo na pozemku
• možnost okamžitého převzetí zavedeného provozu se stálou klientelou
• lokalita ideální i pro další rozvoj – přístavba, glamping, wellness
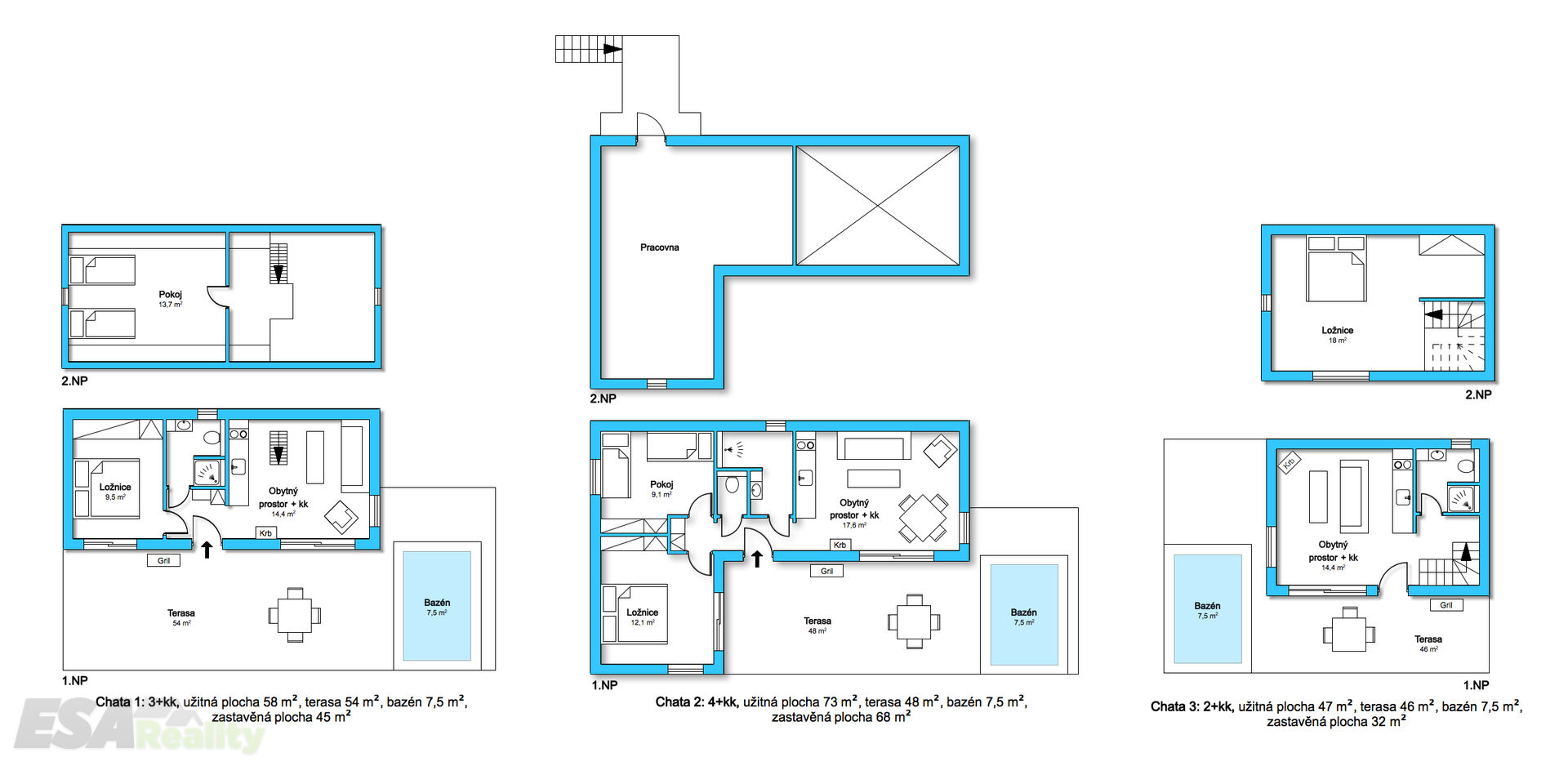
Specifikace jednotlivých chat
Chata 1 má dispozici 3+kk a nabízí užitnou plochu 58 m². K chatě náleží prostorná terasa o velikosti 54 m² a zapuštěný bazén se slanou vodou o ploše 7,5 m². Zastavěná plocha činí 45 m².
Chata 2 je největší z celého areálu, má dispozici 4+kk a užitnou plochu 73 m². Terasa o velikosti 48 m² plynule navazuje na obytnou část a nabízí výhled do zahrady. Také zde se nachází vlastní bazén o ploše 7,5 m². Zastavěná plocha objektu je 68 m².
Chata 3 je nejkompaktnější, s dispozicí 2+kk a užitnou plochou 47 m². Součástí je terasa o výměře 46 m², stejně jako bazén o velikosti 7,5 m². Zastavěná plocha této jednotky činí 32 m². Díky menší kapacitě je ideální například pro rodiny s dětmi, páry nebo jednotlivce hledající klid a soukromí.
Turisticky zajímavá místa v okolí
• Prachovské skály – 2 km
• Jinolické rybníky – 1 km
• Město Jičín – 8 km (plná občanská vybavenost)
• Hrad Trosky – 11 km
• Zámky a památky: Hrubá Skála, Kost, Valdštejn, Dětenice
• Turistika, cyklotrasy, rybaření, houbaření, přírodní koupaliště
• Zábava pro děti: Šťastná země v Radvánovicích, Rumcajsův Jičín
Lokalita a dostupnost
Březka je malebná obec na úpatí Prachovských skal, obklopená lesy a rybníky, s výbornou dostupností.
• Praha, Liberec, Hradec Králové 60–90 minut jízdy
• V místě: restaurace 200 m, obchod COOP 3 km
• Kompletní občanská vybavenost v Jičíně (lékaři, školy, kultura, sport)
Doplňující informace
Provoz je plně funkční, s možností okamžitého převzetí bez dalších investic. Vhodné jako rodinné podnikání, investice nebo víkendový retreat s podnikatelským přesahem. Na koupi lze čerpat klasickou hypotéku.
Podrobné informace o nájemních výnosech, nákladech, technickém stavu poskytneme výhradně vážným zájemcům.
| Cena: | Cena na vyžádání |
| Plocha: | 178 m² |
| Číslo zakázky: | REALITYMIX-N00034 |
Podrobné informace
- Celková plocha: 178 m²
- Zastavěná plocha: 145 m²
- Užitná plocha: 178 m²
- Plocha parcely: 2455 m²
- Druh objektu: cihlová
- Stav objektu: novostavba
- Počet podlaží objektu: 2
- Umístění objektu: klidná část obce
- Elektřina: Elektro - 230 V
- Voda: Zdroj pro celý objekt
- Telekomunikace: Internet
- Topení: Lokální - elektrické
- Odpad: ČOV pro celý objekt
- Energetická náročnost budovy: E - Nehospodárná
- Energetický ukazatel podle vyhlášky: č. 264/2020 Sb.
Právní rádce
-
Detail
V tomto článku shrneme nejdůležitější věci, které byste si měli promyslet, pokud se chystáte prodat svou nemovitost a chcete, abyste s kupujícím nemusel následně řešit vzniklé problémy.
Jako prodávající nesete rizika spojená nejen se samotným obchodem, ale i se stavem nemovitosti v době prodeje a pro minimalizaci rizik, je dobré se zamyslet nad uvedenými oblastmi.
-
Detail
Realitní makléř má své nezastupitelné místo v realitním obchodu. Realitním makléřem nemyslím nevzdělané jelito, které absolvovalo dvoudenní školení a ví, jak se nahraje inzerát na inzertní portál.
Realitním makléřem, který se Vám skutečně vyplatí, je zkušený profesionál, který je schopen Vám dobře poradit jak prodat za co nejvíc a s nejmenším rizikem a hlavně je Vás schopen obratně provést celým realitním obchodem.