Prodej - chata/rekreační objekt, 112 m²
Slupečná, Lipno nad Vltavou, okr.Český Krumlov
21 960 000 KčProdej - chata/rekreační objekt, 112 m²
Slupečná, Lipno nad Vltavou, okr.Český Krumlov
Lipno Forest Rezidence - luxusní apartmánová vila
V srdci přírody, v klidné části Lipna nad Vltavou - Plískově, se nachází apartmán v projektu Lipn o Forest Rezidence, kde se v přirozené harmonii propojuje klid lesa, čistý horský vzduch a nadčasová moderní architektura. Každý den vás zde bude provázet panoramatický výhled na Lipenskou přehradu a nádhernou okolní přírodu. Díky nadmořské výšce 870 m n. m. a jižní orientaci nabízí apartmán dostatek slunečního světla po celý rok. Rezidence se nachází jen několik minut od Lipna nad Vltavou, kde jsou promenády, pláže, kavárny.
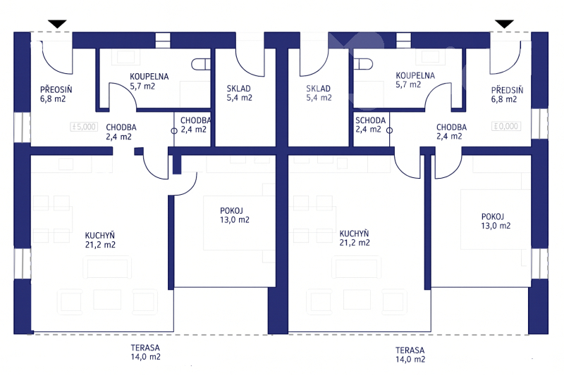
Apartmán o dispozici 4kk je situován v dolní části domu a nabízí užitnou plochu cca 112 m2 + terasa 74 m2. Dispozice je navržena s důrazem na vzdušnost, funkčnost a maximální pohodlí a je doplněna o panoramatickou saunu s výhledem na Lipno, která podtrhuje prémiový charakter prostoru. Apartmán je ideální jak pro vlastní rekreaci, tak pro investiční využití s vysokým potenciálem krátkodobých i dlouhodobých pronájmů.
Parkovací místo je zahrnuto v ceně apartmánu.
Moderní skandinávská architektura podtrhuje nadčasový charakter celého projektu. Velkoformátová okna přirozeně propojují interiér s okolní krajinou a umožňují nerušený výhled na jezero. Venkovní žaluzie zajišťují komfort a soukromí, zatímco terasa poskytuje ideální prostor pro relaxaci s jedinečným výhledem do krajiny.
Lokalita Lipna nabízí celoroční vyžití. V letních měsících koupání, jachting, cykloturistiku či rybaření, v zimě lyžování ve skiareálech Kramolín, Sternstein a Hochficht, bruslení na zamrzlé hladině Lipna nebo běžkařské tratě v okolí.
Tento apartmán představuje ideální volbu pro ty, kteří hledají kombinaci luxusu, přírody a dlouhodobé hodnoty v jedné z nejžádanějších lokalit jižních Čech.
Zaujala vás tato příležitost? Zanechte nám kontakt a rádi vám apartmán osobně představíme.
| Cena: | 21 960 000 Kč |
| Datum k nastěhování: | 31.05.2026 |
| Číslo zakázky: | REALITYMIX-233178 |
Podrobné informace
- Zastavěná plocha: 198 m²
- Užitná plocha: 112 m²
- Plocha parcely: 310 m²
- Druh objektu: cihlová
- Stav objektu: ve výstavbě (hrubá stavba)
- Počet podlaží objektu: 2
- Umístění objektu: samota
- Doprava: silnice
- Elektřina: Elektro - 230 V, Elektro - 380 V
- Voda: Voda - dálkový vodovod
- Odpad: Kanalizace
- Energetická náročnost budovy: A - Mimořádně úsporná
Právní rádce
-
Detail
V tomto článku shrneme nejdůležitější věci, které byste si měli promyslet, pokud se chystáte prodat svou nemovitost a chcete, abyste s kupujícím nemusel následně řešit vzniklé problémy.
Jako prodávající nesete rizika spojená nejen se samotným obchodem, ale i se stavem nemovitosti v době prodeje a pro minimalizaci rizik, je dobré se zamyslet nad uvedenými oblastmi.
-
Detail
Realitní makléř má své nezastupitelné místo v realitním obchodu. Realitním makléřem nemyslím nevzdělané jelito, které absolvovalo dvoudenní školení a ví, jak se nahraje inzerát na inzertní portál.
Realitním makléřem, který se Vám skutečně vyplatí, je zkušený profesionál, který je schopen Vám dobře poradit jak prodat za co nejvíc a s nejmenším rizikem a hlavně je Vás schopen obratně provést celým realitním obchodem.
Mapa
Podobné nemovitosti
Prodej - chata/rekreační objekt, 395 m²
Luční, Plešivec, Český Krumlov
1 000 000 Kč
Prodej - chata/rekreační objekt, 80 m²
Pod Kaštany, Plešivec, Český Krumlov
4 500 000 Kč
Prodej - chata/rekreační objekt, 140 m²
Nové Domky, Loučovice, Český Krumlov
19 900 000 Kč
Prodej - chata/rekreační objekt, 156 m²
Pernek, Horní Planá, Český Krumlov
15 900 000 Kč