Prodej - obchodní prostor, 1 080 m²
Benátecká Vrutice, Nymburk
10 990 000 KčProdej - obchodní prostor, 1 080 m²
Benátecká Vrutice, Nymburk
Prodej multifunkční nemovitosti, 1080 m2, Benátecká Vrutice, Milovice
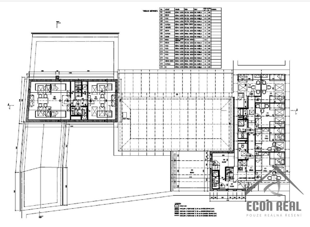
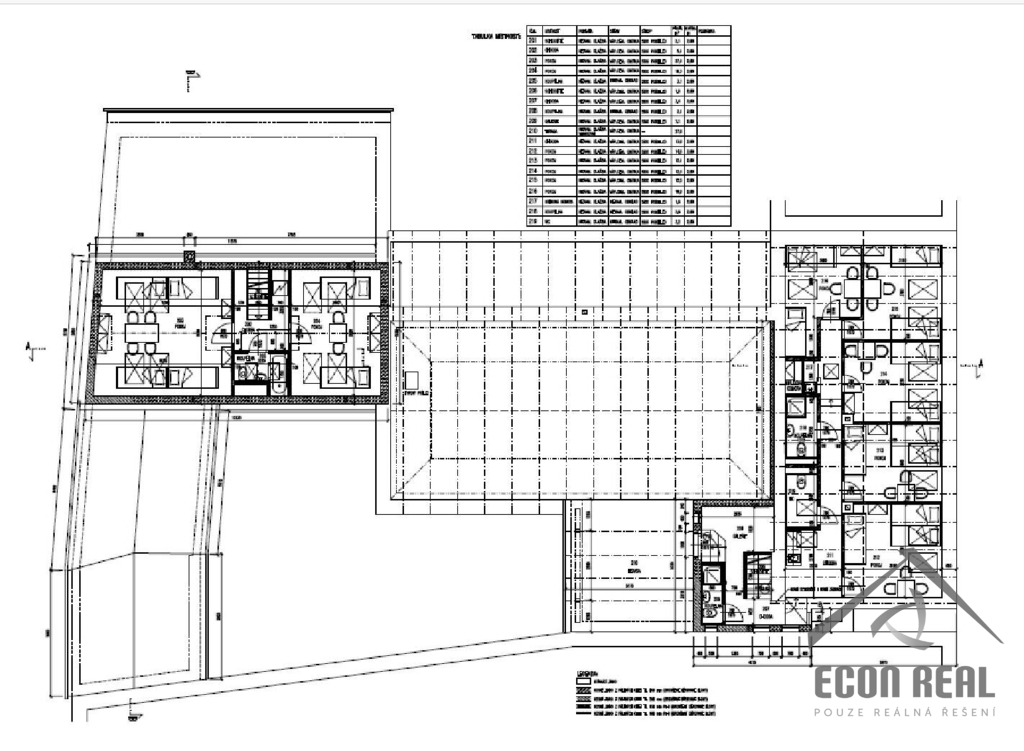
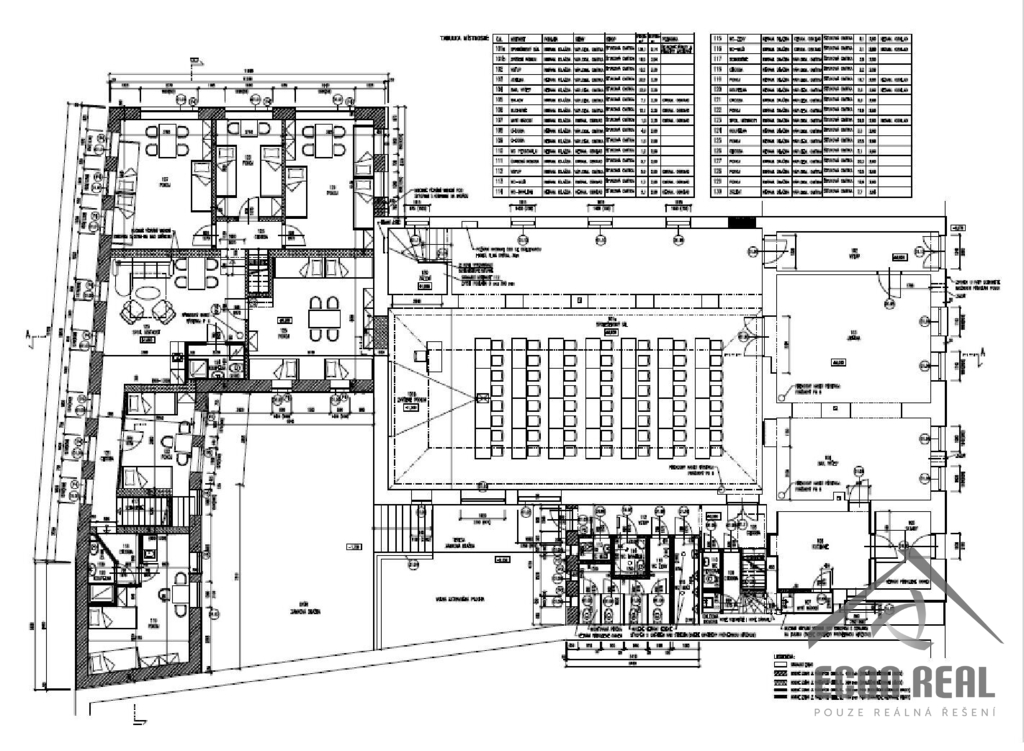
Dominantou vnitřních prostor objektu je prostorný, gotický sál s pódiem, jako stvořený pro organizování svateb, meetingů, kongresů, plesů i společenských akcí. Součástí objektu je i gastro příprava v zázemí tak, aby byl objekt soběstačný, možnost tedy vybudovat restauraci s kuchyní s kapacitou až 100 lidí. Ubytovací části jsou řešeny jak v pravém traktu v přízemí, tak vestavbou v podkroví (třináct čtyřlůžkových a dva trojlůžkové pokoje) s možností až 58 lůžek a s výstupem na terasu. V přízemí, v pravém traktu objektu, se nachází bezbariérově dostupný obchodní prostor s velkými výlohami, využitelný jako prodejna, výrobna, pekárna apod. Vnitroblok skýtá možnost realizace chráněného posezení nebo parkovacích míst. Celková užitná plocha objektu činí 1080 m2. Objekt je napojen na inženýrské sítě (voda, elektrika, kanalizace). Plyn je k dispozici, není však aktuálně napojen do domu. Vedle objektu nevyužívaná studna na pozemku obce. Parkování je možné přímo u nemovitosti na obecních pozemcích, stavba se nachází na pozemku vlastním. Nemovitosti má výhodnou, strategickou polohu - nachází se cca 20 km od Mladé Boleslavi, 30 km od Prahy, 6 km od Benátek nad Jizerou, 11 km od Nymburka....
Technické parametry:
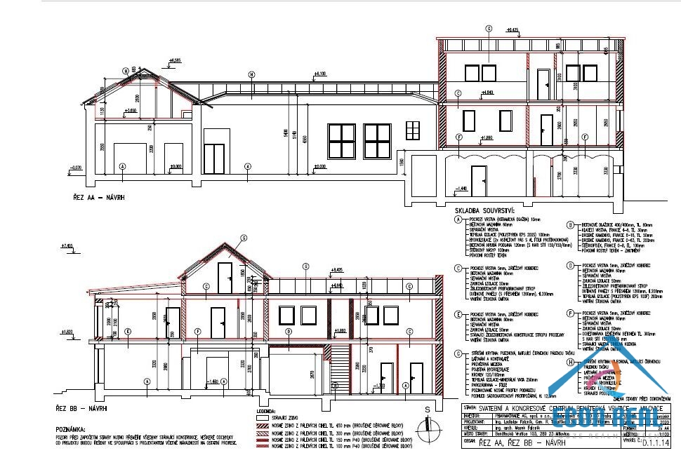
1.PP - sklep
1.NP - gotický sál, gastro provoz s přípravnou, sociální zázemí, obchod se zázemím a vstupem pro zaměstnance, vstup do sklepa, byt správce, vnitroblok
Podkroví - ubytovací kapacity na obou stranách objektu, krytá terasa
Stavební pozemek: 618 m²
Zastavěná plocha: 526,92 m²
IS: obecní vodovod, elektro, obecní kanalizace, plyn
Klimatizační jednotky
Rekonstrukce není dokončená.
| Cena: | 10 990 000 Kč |
| Poznámka: | pro více informací kontaktujte makléře |
| Číslo zakázky: | REALITYMIX-0683 |
Podrobné informace
- Plocha kanceláří: 1080 m²
- Plocha parcely: 527 m²
- Druh objektu: cihlová
- Stav objektu: před rekonstrukcí
- Druh prostor: Obchodní
- Ostatní: Bezbarierový přístup
- Umístění objektu: centrum obce
- Doprava: dálnice, silnice, MHD, autobus
- Komunikace: dlážděná
- Elektřina: Elektro - 230 V, Elektro - 400 V
- Voda: Zdroj pro celý objekt
- Plyn: Plynovod
- Topení: Lokální - elektrické
- Odpad: Kanalizace
- Energetická náročnost budovy: G - Mimořádně nehospodárná
- Energetický ukazatel podle vyhlášky: č. 264/2020 Sb.
Právní rádce
-
Detail
V tomto článku shrneme nejdůležitější věci, které byste si měli promyslet, pokud se chystáte prodat svou nemovitost a chcete, abyste s kupujícím nemusel následně řešit vzniklé problémy.
Jako prodávající nesete rizika spojená nejen se samotným obchodem, ale i se stavem nemovitosti v době prodeje a pro minimalizaci rizik, je dobré se zamyslet nad uvedenými oblastmi.
-
Detail
Realitní makléř má své nezastupitelné místo v realitním obchodu. Realitním makléřem nemyslím nevzdělané jelito, které absolvovalo dvoudenní školení a ví, jak se nahraje inzerát na inzertní portál.
Realitním makléřem, který se Vám skutečně vyplatí, je zkušený profesionál, který je schopen Vám dobře poradit jak prodat za co nejvíc a s nejmenším rizikem a hlavně je Vás schopen obratně provést celým realitním obchodem.