Prodej - nájemní dům, 555 m²
Krnovská, Opava (nečleněná část města), Opava
10 500 000 KčProdej - nájemní dům, 555 m²
Krnovská, Opava (nečleněná část města), Opava
Rezidence Krnovská 9
Projektová dokumentace je detailně zpracovaná studiem ARCHE’S a obsahuje všechny části nutné pro realizaci stavby. Projekt je připraven k okamžitému zahájení výstavby.
Základní informace o projektu:
– Adresa: Krnovská 12/9, Opava - Předměstí
– Parcelní číslo: st. 199/1
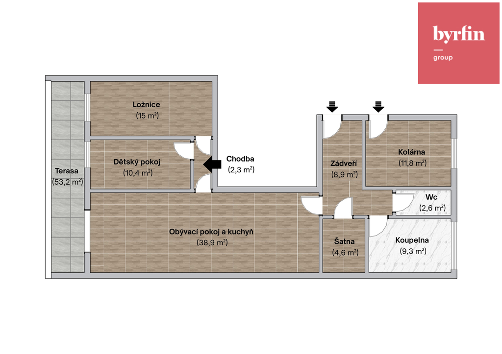
– Celkový počet bytů: 9
– Dispozice: 8× byt 3+kk, 1× byt 2+kk
– Celková plocha bytů: 555 m²
– Podlaží: 1.PP + 1.NP + 2.-5.NP
– Zastavěná plocha objektu: 180 m²
– Výmera pozemku: 229 m²
– Parkovací místa: 9 (z toho 1 místo ZTP)
– Objekt není památkově chráněn
– Projekt je v souladu s územním plánem (zóna UA - smíšené obytné)
Technické zázemí domu:
V 1. podzemním podlaží se nachází technická místnost a sklepní koje určené pro jednotlivé byty. V přízemí je k dispozici kolárna pro bezpečné uložení kol a kočárků.
Dispozice a struktura bytů:
1. NP: Jeden prostorný byt 3+kk o velikosti 96 m² se soukromou zahradou 49 m² a vlastní terasou.
2.-4. NP: Každé patro obsahuje dva byty 3+kk, každý o velikosti 59 m². Byty jsou doplněny balkonem o velikosti 14-16 m².
5. NP: Jeden byt 2+kk o velikosti 46 m² s balkonem 16 m² a jeden byt 3+kk o velikosti 59 m² s balkonem 14 m².
Architektonické řešení:
Projekt počítá s demolicí stávajícího objektu a následnou výstavbou nového moderního pětipodlažního bytového domu. Návrh zahrnuje současnou architekturu se skleněnými fasádními prvky orientovanými do ulice Krnovská, které dodají budově čistý a reprezentativní vzhled. Na straně do vnitrobloku jsou navrženy balkony a v 1. NP také soukromá zahrada zajišťující klidné rezidenční prostředí. Nový objekt je navržen tak, aby citlivě doplnil okolní zástavbu a přinesl do lokality kvalitní moderní bydlení.
Lokalita:
Projekt se nachází v zastavěné části města Opavy, v docházkové vzdálenosti od centra. Lokalita nabízí kompletní občanskou vybavenost, přímé napojení na MHD, obchody, služby, školy a dobré dopravní spojení díky blízkosti městského obchvatu. Pozemek je plně napojen na veškeré inženýrské sítě.
Pro koho je projekt vhodný:
Projekt je ideální pro developera, investora nebo stavební společnost, která hledá plně připravený záměr se stavebním povolením. Díky dispozičnímu řešení, balkonům, zahradě a lokalitě je projekt vhodný jak pro následný prodej bytů, tak i pro dlouhodobý nájemní model.
V případě zájmu o detailní dokumentaci, osobní schůzku nebo další informace mě neváhejte kontaktovat.
S vyřízením financování tohoto projektu vám rádi pomůžeme.
| Cena: | 10 500 000 Kč |
| Poznámka: | Včetně provize, včetně právního servisu |
| Datum k nastěhování: | 28.11.2025 |
| Číslo zakázky: | REALITYMIX-1622 |
Podrobné informace
- Plocha parcely: 180 m²
- Umístění objektu: centrum obce
- Komunikace: asfaltová
- Elektřina: Elektro - 230 V
- Voda: Voda - dálkový vodovod
- Plyn: Plynovod
- Odpad: Kanalizace
- Energetická náročnost budovy: G - Mimořádně nehospodárná
- Energetický ukazatel podle vyhlášky: č. 264/2020 Sb.
Právní rádce
-
Detail
V tomto článku shrneme nejdůležitější věci, které byste si měli promyslet, pokud se chystáte prodat svou nemovitost a chcete, abyste s kupujícím nemusel následně řešit vzniklé problémy.
Jako prodávající nesete rizika spojená nejen se samotným obchodem, ale i se stavem nemovitosti v době prodeje a pro minimalizaci rizik, je dobré se zamyslet nad uvedenými oblastmi.
-
Detail
Realitní makléř má své nezastupitelné místo v realitním obchodu. Realitním makléřem nemyslím nevzdělané jelito, které absolvovalo dvoudenní školení a ví, jak se nahraje inzerát na inzertní portál.
Realitním makléřem, který se Vám skutečně vyplatí, je zkušený profesionál, který je schopen Vám dobře poradit jak prodat za co nejvíc a s nejmenším rizikem a hlavně je Vás schopen obratně provést celým realitním obchodem.
Mapa
Podobné nemovitosti
Prodej - nájemní dům, 223 m²
K Točně, Kozmice, Opava
7 500 000 Kč
Prodej - nájemní dům, 1 250 m²
Hany Kvapilové, Opava (nečleněná část města), Opava
43 000 000 Kč
Prodej - nájemní dům, 223 m²
K Točně, Kozmice, Opava
7 500 000 Kč
Prodej - nájemní dům, 500 m²
Křivá, Budišov nad Budišovkou, Opava
1 250 000 Kč