Prodej bytu, 2+kk, 42 m²
U Oblouku, Poruba, Ostrava, Ostrava-město
3 250 000 KčProdej bytu, 2+kk, 42 m²
U Oblouku, Poruba, Ostrava, Ostrava-město
Ostrava Poruba byt 2+kk 42m2
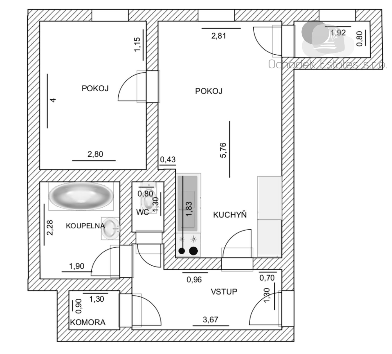
Byt o dispozici 2kk o výměře 42 m2 se nachází v šestém nadzemním podlaží bytového domu. První důležitou výhodou je výtah. Nebudete mít tedy problém se ke svému bytu pohodlně dostat. Je však nutno zmínit, že dům není bezbariérový. Byt se prodává v původním plně funkčním stavu. Ovšem rekonstrukce by mu jistě slušela. Otevírá se zde tedy možnost upustit uzdu fantazie nového majitele a přizpůsobit si byt dle svých představ.
Po vstupu do bytu se ocitnete v malé, ale praktické chodbě. Z chodby již vstupujete do hlavní obytné místnosti, ve které vás ihned zaujme velkorysý kuchyňský kout a zároveň dostatek místa na vytvoření vaší odpočinkové zóny. Hnedle dveře do komory, dveře do koupelny a na samostatnou toaletu. Důležitou místností je neprůchozí ložnice. A i když byt není nafukovací, nachází se v něm malá místnůstka, která čeká na uplatnění nového majitele, třeba k vytvoření “zašívárny”.
Nachází se v lokalitě Ostrava – Poruba. Je to velmi příjemná lokalita disponující nejen spousty relaxačních míst v zeleni pro trávení volného času, ale hlavně veškerou občanskou vybaveností.
Pozn: Uvedená cena je BEZ zprostředkovatelského poplatku ve výší 150.000 Kč vč DPH pro RK. Financování pomůžeme zajistit. Energetický štítek prozatím uvádíme G
| Cena: | 3 250 000 Kč |
| Poznámka: | Měsíční náklady 4.794Kč + elektřina + plyn |
| Dispozice/podlahová plocha: | 2+kk/42 m² |
| Číslo zakázky: | REALITYMIX-25-06-003 |
Podrobné informace
- Dispozice bytu: 2+kk
- Číslo podlaží v domě: 3
- Počet podlaží objektu: 1
- Užitná plocha: 42 m²
- Celková podlahová plocha: 42 m²
- Druh objektu: cihlová
- Stav objektu: dobrý
- Vlastnictví: osobní
- Umístění objektu: centrum obce
- Elektřina: Elektro - 230 V
- Voda: Voda - dálkový vodovod
- Plyn: Plynovod
- Topení: Ústřední - dálkové
- Odpad: Kanalizace
- Energetická náročnost budovy: G - Mimořádně nehospodárná
- Energetický ukazatel podle vyhlášky: č. 264/2020 Sb.
Právní rádce
-
Detail
V tomto článku shrneme nejdůležitější věci, které byste si měli promyslet, pokud se chystáte prodat svou nemovitost a chcete, abyste s kupujícím nemusel následně řešit vzniklé problémy.
Jako prodávající nesete rizika spojená nejen se samotným obchodem, ale i se stavem nemovitosti v době prodeje a pro minimalizaci rizik, je dobré se zamyslet nad uvedenými oblastmi.
-
Detail
Realitní makléř má své nezastupitelné místo v realitním obchodu. Realitním makléřem nemyslím nevzdělané jelito, které absolvovalo dvoudenní školení a ví, jak se nahraje inzerát na inzertní portál.
Realitním makléřem, který se Vám skutečně vyplatí, je zkušený profesionál, který je schopen Vám dobře poradit jak prodat za co nejvíc a s nejmenším rizikem a hlavně je Vás schopen obratně provést celým realitním obchodem.
Prodáváte nemovitost a potřebujete zjistit její reálnou hodnotu?
Zjistit reálnou cenuVývoj průměrné ceny za m2 v lokalitě Ostrava-město
Prodáváte nemovitost a potřebujete zjistit její reálnou hodnotu?
Zjistit reálnou cenuMapa
Podobné nemovitosti
Prodej bytu, 2+kk, 47 m²
Myslbekova, Moravská Ostrava a Přívoz, Ostrava, Ostrava-město
3 200 000 Kč
Prodej bytu, 2+kk, 42 m²
U Oblouku, Poruba, Ostrava, Ostrava-město
3 400 000 Kč
Prodej bytu, 2+kk, 42 m²
U Oblouku, Poruba, Ostrava, Ostrava-město
3 400 000 Kč
Prodej bytu, 2+kk, 58 m²
Kubínova, Slezská Ostrava, Ostrava, Ostrava-město
Cena na vyžádání