Prodej bytu, 2+kk, 104 m²
Dolní, Písek
5 200 000 KčProdej bytu, 2+kk, 104 m²
Dolní, Písek
Prodej 2+kk 60 m² + zahrádka 91 m² + terasa 10 m² + parkování
V zastoupení developera nabízíme k prodeji moderní bytovou jednotku o dispozici 2+kk, která vzniká v rámci projektu Terasy Písek – II. etapa (Putimská Vysoká).
Byt se nachází v 1. nadzemním podlaží domu, vstup do domu je z úrovně 2. nadzemního podlaží, do bytu tedy vedou jedny schody dolů.
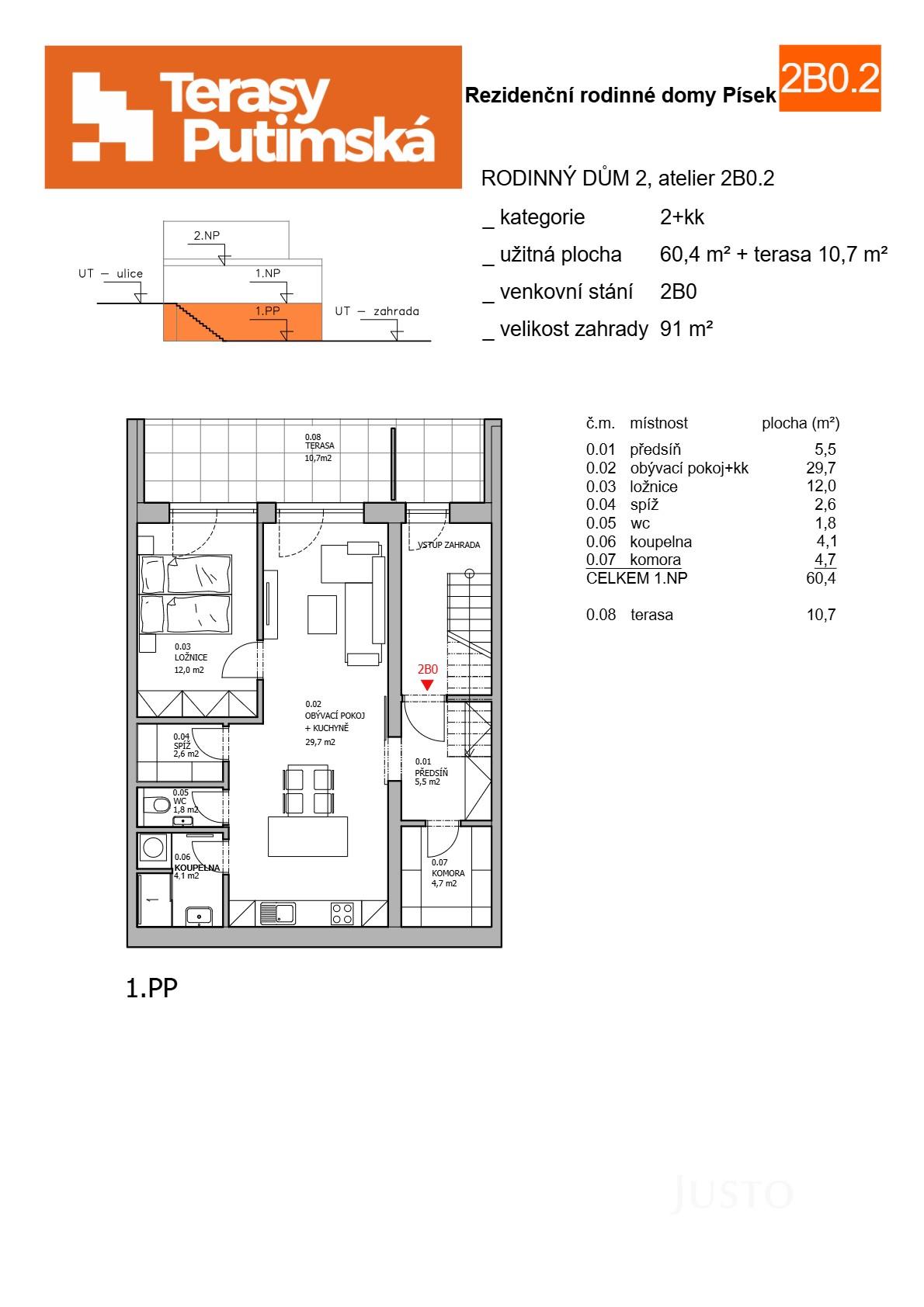
Dispozice a výměry:
podlahová plocha bytu: 60,4 m²
terasa: 10,7 m²
zahrada: 91 m²
venkovní parkovací stání v ceně
Architekt navrhl dvě různá uspořádání dispoziční řešení 2+kk.
Z obývací části je vstup na prostornou terasu orientovanou do zelně, která dál navazuje na vlastní zahradu.
Standard zahrnuje moderní provedení koupelny, přípravu pro kuchyňskou linku dle výběru budoucího vlastníka, podlahové vytápění a kvalitní stavební materiály odpovídající současným energetickým a technickým požadavkům.
Lokalita – Putimská Vysoká:
Putimská Vysoká představuje jednu z nejžádanějších rezidenčních částí Písku – tiché, bezpečné a plně etablované místo pro klidné rodinné bydlení.
Zástavbu zde tvoří převážně nízkopodlažní rodinné domy a menší bytové domy, které jsou obklopeny vzrostlou zelení.
Lokalita nabízí výjimečnou kombinaci klidu, soukromí a dostupnosti města – do centra Písku se dostanete autem během pár minut, v pěší či cyklistické vzdálenosti se nachází supermarkety, zastávky MHD, vlakové i autobusové nádraží, školy i příroda.
Projekt Terasy Písek – kvalita s lokálním podpisem:
Projekt navazuje na úspěšnou první etapu Terasy K Lipám, která byla dokončená v roce 2022 na Hradišti. Za výstavbou stojí renomovaná písecká stavební společnost, která klade důraz na precizní zpracování, kvalitní materiály a dlouhodobou hodnotu nemovitostí.
Byty jsou navrženy tak, aby spojovaly moderní architekturu s příjemnou městskou atmosférou a blízkostí přírody.
Shrnutí hlavních výhod:
novostavba ve výstavbě, možnost úprav dle přání klienta
prostorná terasa s přímou návazností na zahradu, na zahradě je možné zbudovat zahradní domek, pro uložení všeho potřebného
parkovací stání v ceně
moderní energeticky úsporné bydlení
oblíbená a klidná lokalita Putimská Vysoká
| Cena: | 5 200 000 Kč |
| Dispozice/podlahová plocha: | 2+kk/104 m² |
| Číslo zakázky: | REALITYMIX-J12092 |
Podrobné informace
- Dispozice bytu: 2+kk
- Číslo podlaží v domě: 1
- Počet podlaží objektu: 3
- Užitná plocha: 60 m²
- Celková podlahová plocha: 104 m²
- Druh objektu: cihlová
- Stav objektu: ve výstavbě (hrubá stavba)
- Vlastnictví: osobní
- Terasa: 10 m²
- Umístění objektu: klidná část obce
- Voda: Voda - dálkový vodovod
- Plyn: Plynovod
- Topení: Ústřední - plynové
- Odpad: Kanalizace
- Energetická náročnost budovy: B - Velmi úsporná
- Ukazatel energetické náročnosti budovy: 69 kWh/m²
- Energetický ukazatel podle vyhlášky: č. 264/2020 Sb.
Právní rádce
-
Detail
V tomto článku shrneme nejdůležitější věci, které byste si měli promyslet, pokud se chystáte prodat svou nemovitost a chcete, abyste s kupujícím nemusel následně řešit vzniklé problémy.
Jako prodávající nesete rizika spojená nejen se samotným obchodem, ale i se stavem nemovitosti v době prodeje a pro minimalizaci rizik, je dobré se zamyslet nad uvedenými oblastmi.
-
Detail
Realitní makléř má své nezastupitelné místo v realitním obchodu. Realitním makléřem nemyslím nevzdělané jelito, které absolvovalo dvoudenní školení a ví, jak se nahraje inzerát na inzertní portál.
Realitním makléřem, který se Vám skutečně vyplatí, je zkušený profesionál, který je schopen Vám dobře poradit jak prodat za co nejvíc a s nejmenším rizikem a hlavně je Vás schopen obratně provést celým realitním obchodem.
Prodáváte nemovitost a potřebujete zjistit její reálnou hodnotu?
Zjistit reálnou cenuVývoj průměrné ceny za m2 v lokalitě Jihočeský kraj
Prodáváte nemovitost a potřebujete zjistit její reálnou hodnotu?
Zjistit reálnou cenuMapa
Podobné nemovitosti
Prodej bytu, atypický, 110 m²
Pražská, Pražské Předměstí, Písek
Cena na vyžádání
Prodej bytu, atypický, 110 m²
Pražská, Pražské Předměstí, Písek
4 490 000 Kč
Prodej bytu, 3+1, 63 m²
V zahrádce, Bernartice, Písek
Cena na vyžádání
Prodej bytu, 3+1, 94 m²
Lipová alej, Budějovické Předměstí, Písek
4 990 000 Kč