Prodej bytu, 3+1, 72 m²
Jablonského, Pražské Předměstí, Písek
5 350 000 KčProdej bytu, 3+1, 72 m²
Jablonského, Pražské Předměstí, Písek
Prodej světlého bytu po kompletní rekonstrukci, Písek
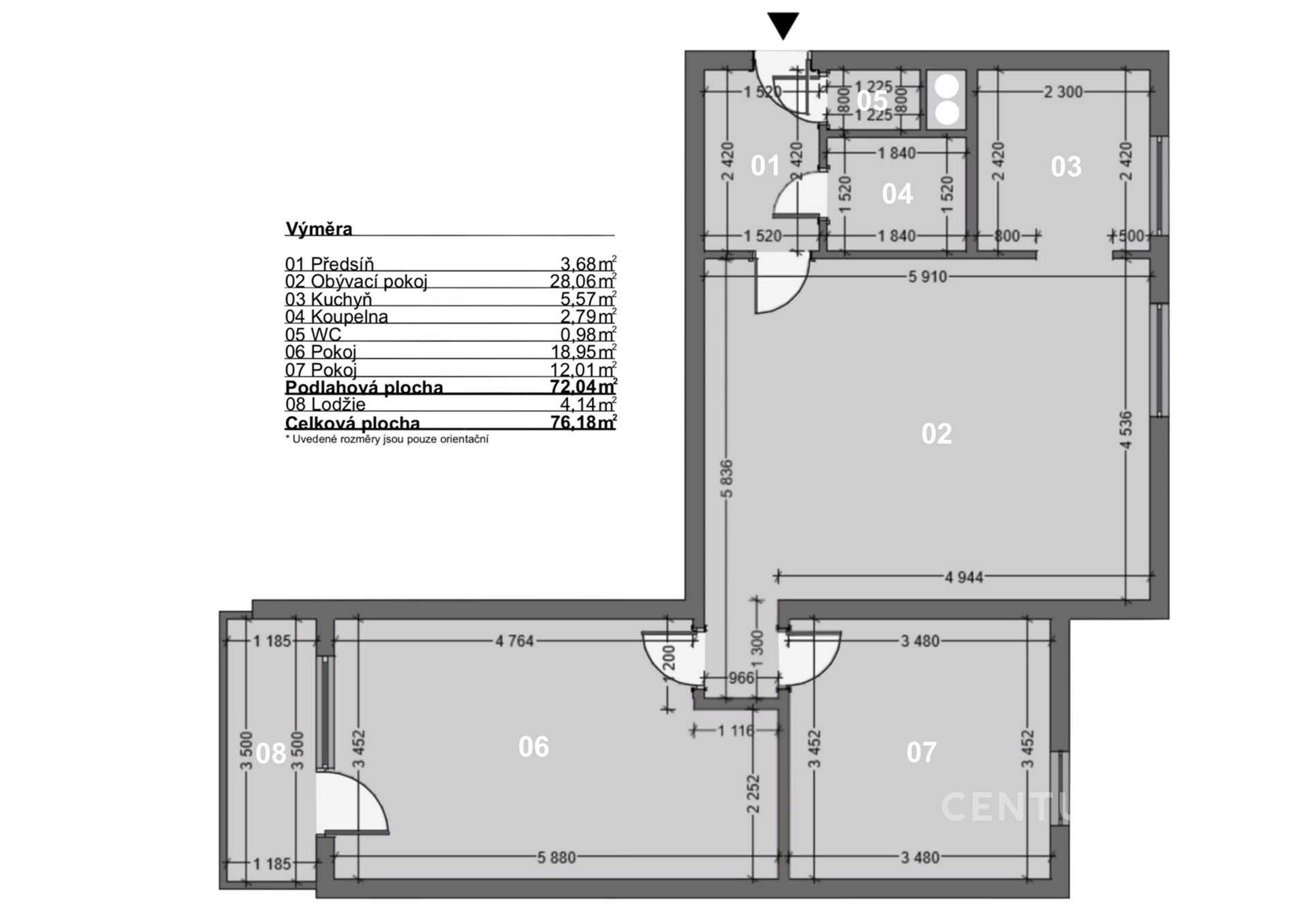
Byt o podlahové ploše 72 m² je velmi dobře dispozičně řešen. Dominantou je prostorný obývací pokoj o velikosti přes 28 m², který působí vzdušně a nabízí dostatek místa pro rodinné bydlení i relaxaci. Samostatná kuchyň je vybavena moderní kuchyňskou linkou s vestavěnými spotřebiči a praktickým pracovním prostorem.
Dále byt disponuje dvěma samostatnými pokoji, které lze využít jako ložnici, dětský pokoj nebo pracovnu. Koupelna je laděna do nadčasových tónů a je vybavena vanou, samostatné WC je samozřejmostí. Příjemným benefitem je lodžie o velikosti 4 m², která poskytuje prostor pro odpočinek.
Celý byt prošel rekonstrukcí a je připraven k okamžitému nastěhování bez nutnosti dalších investic. Díky neutrálním barvám a čistému designu si jej nový majitel snadno přizpůsobí dle vlastního stylu.
Dům je udržovaný a nachází se v lokalitě s kompletní občanskou vybaveností – v docházkové vzdálenosti jsou školy, školky, obchody i další služby. Parkování je možné v okolí domu.
Velkou výhodou je, že byt není zatížen nájemním vztahem, a je tak vhodný jak pro vlastní bydlení, tak i jako investiční příležitost s možností okamžitého pronájmu.
Pro více informací nebo domluvení prohlídky mě neváhejte kontaktovat.
| Cena: | 5 350 000 Kč |
| Datum k nastěhování: | 12.05.2026 |
| Dispozice/podlahová plocha: | 3+1/72 m² |
| Číslo zakázky: | REALITYMIX-980041 |
Podrobné informace
- Dispozice bytu: 3+1
- Číslo podlaží v domě: 8
- Počet podlaží objektu: 9
- Celková podlahová plocha: 72 m²
- Druh objektu: panelová
- Stav objektu: velmi dobrý
- Vlastnictví: osobní
- Lodžie: 4 m²
- Vybaveno: ano
- Elektřina: Elektro - 230 V, Elektro - 380 V
- Voda: Zdroj pro celý objekt, Voda - dálkový vodovod
- Odpad: Kanalizace
- Energetická náročnost budovy: G - Mimořádně nehospodárná
- Popis vybavení: .
Právní rádce
-
Detail
V tomto článku shrneme nejdůležitější věci, které byste si měli promyslet, pokud se chystáte prodat svou nemovitost a chcete, abyste s kupujícím nemusel následně řešit vzniklé problémy.
Jako prodávající nesete rizika spojená nejen se samotným obchodem, ale i se stavem nemovitosti v době prodeje a pro minimalizaci rizik, je dobré se zamyslet nad uvedenými oblastmi.
-
Detail
Realitní makléř má své nezastupitelné místo v realitním obchodu. Realitním makléřem nemyslím nevzdělané jelito, které absolvovalo dvoudenní školení a ví, jak se nahraje inzerát na inzertní portál.
Realitním makléřem, který se Vám skutečně vyplatí, je zkušený profesionál, který je schopen Vám dobře poradit jak prodat za co nejvíc a s nejmenším rizikem a hlavně je Vás schopen obratně provést celým realitním obchodem.
Prodáváte nemovitost a potřebujete zjistit její reálnou hodnotu?
Zjistit reálnou cenuVývoj průměrné ceny za m2 v lokalitě Jihočeský kraj
Prodáváte nemovitost a potřebujete zjistit její reálnou hodnotu?
Zjistit reálnou cenuMapa
Podobné nemovitosti
Prodej bytu, 3+1, 78 m²
Preslova, Budějovické Předměstí, Písek
4 790 000 Kč
Prodej bytu, 3+1, 65 m²
Jiráskovo nábř, Budějovické Předměstí, Písek
4 200 000 Kč
Prodej bytu, 3+1, 85 m²
Družstevní, Hradiště, Písek
4 590 000 Kč
Prodej bytu, 3+1, 62 m²
třída Přátelství, Budějovické Předměstí, Písek
5 471 000 Kč